Contact Agent
Contact McAfee Properties (Ballymoney)
2 Bed Detached House
30m South West of, 77 Moneybrannon Road
Aghadowey, Coleraine, BT51 3SJ
offers over
£75,000
- Status For Sale
- Property Type Detached
- Bedrooms 2
- Receptions 2
- Heating None
-
Stamp Duty
Higher amount applies when purchasing as buy to let or as an additional property£0 / £3,750*
Key Features & Description
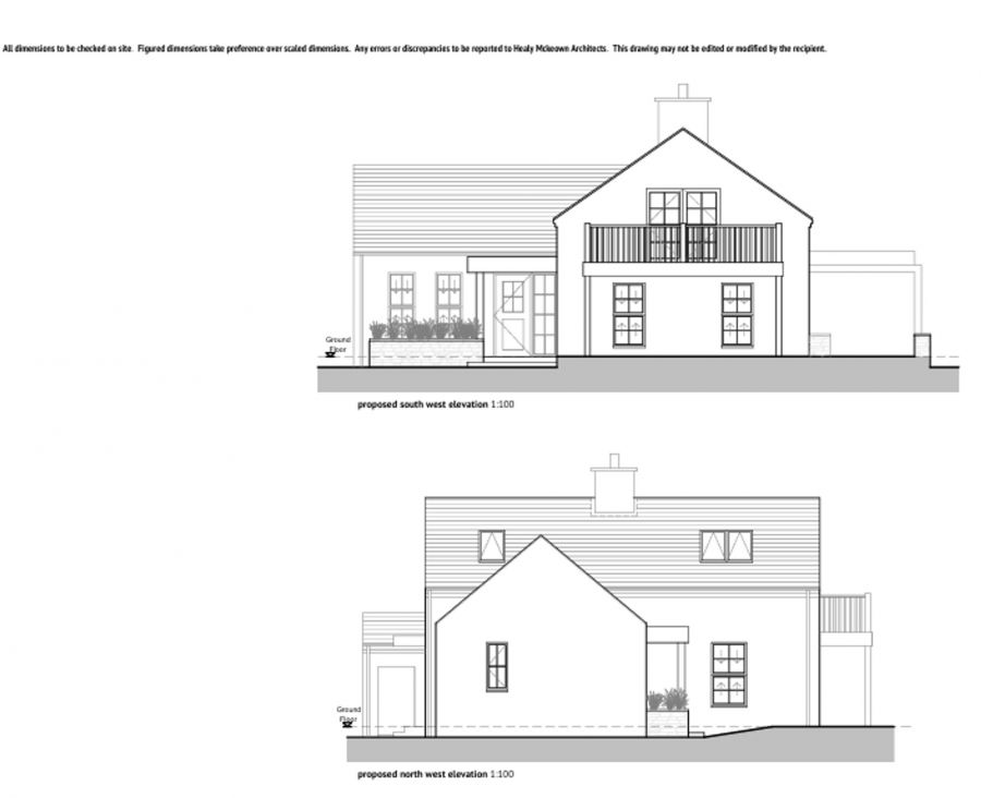
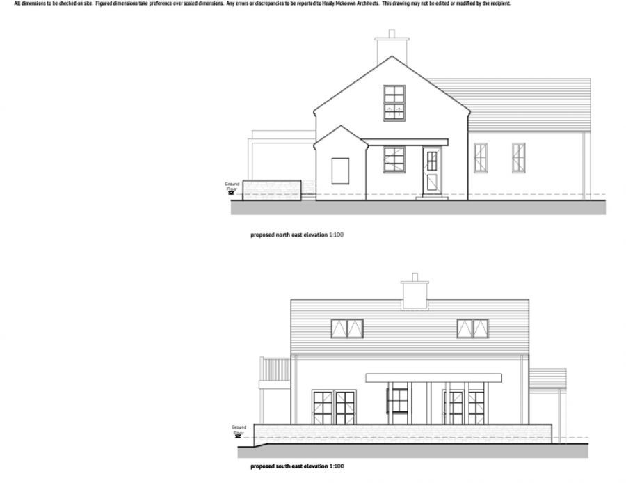
A fantastic opportunity to convert an Old School House into a delightful home.
On a choice semi elevated rural setting.
With views over the rolling surrounding countryside.
Towards the Sperrin Mountains and the Donegal Hills.
With Full Planning Permission to convert the same.
Into a quirky home designed to take in the fantastic outlook.
Planning reference LA01/2023/1290/F
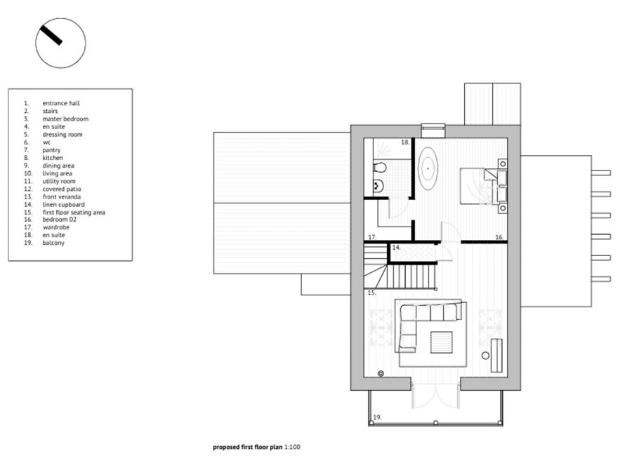
Cleverly designed to offer generously proportioned 2/3 bedroom accommodation.
Including a ground floor ensuite bedroom.
A master upper floor bedroom suite.
Including room for a freestanding bath.
And a dressing room heading into an ensuite.
Large open plan kitchen/dinette.
With a hidden walk in pantry and a separate utility room.
And open plan to the living room area.
In short - a unique opportunity to bring back to life this period property!
And create a fantastic rural retreat, life time home or retirement bliss.
Early viewing recommended to fully appreciate this unique opportunity.
Description
We are delighted to offer for sale this fantastic opportunity to renovate/extend this Old School House which occupies a choice semi elevated rural setting that enjoys panoramic views over the surrounding countryside. Indeed the architect has cleverly designed the same to include 2/3 bedroom accommodation; a ground floor bedroom with an ensuite; an open plan kitchen/dinette with a walk in pantry and a separate utility room; and an upper floor living area with the possibility of a balcony – all orientated to take in the super views. As such this provides a unique chance to create a characterful or contemporary rural retreat, lifetime home or retirement settlement.
Broadband Speed Availability
Potential Speeds for 77 Moneybrannon Road
Max Download
1000
Mbps
Max Upload
1000
MbpsThe speeds indicated represent the maximum estimated fixed-line speeds as predicted by Ofcom. Please note that these are estimates, and actual service availability and speeds may differ.
Property Location
Mortgage Calculator
Directions
The Old School House enjoys a choice slightly elevated rural situation yet conveniently only approximately 5 miles drive to Coleraine or 7 miles to Ballymoney. From the Strand Road roundabout in Coleraine head South West on the Dunhill road continuing through the first roundabout and then after another mile turn left at the roundabout (sign posted to Garvagh). Continue towards Garvagh on the Drumcroon road for 2.3 miles and then left onto the Moneybrannon road - after approximately 1.6 miles the Old School House will be situated on the right hand side - on the junction with the Lisnamuck road.
Contact Agent
Contact McAfee Properties (Ballymoney)
Request More Information
Requesting Info about...
30m South West of, 77 Moneybrannon Road, Aghadowey, Coleraine, BT51 3SJ
By registering your interest, you acknowledge our Privacy Policy
By registering your interest, you acknowledge our Privacy Policy