Contact Agent

Contact Rodgers & Browne

Contact Rodgers & Browne

4 Bed Site

Perceval House, 52 Greystown Road

Annacloy, Downpatrick, BT30 9BJ

offers around £165,000
  • Status For Sale
  • Property Type Site
  • Bedrooms 4
  • Receptions 3
  • Stamp Duty
    Higher amount applies when purchasing as buy to let or as an additional property
    £800 / £9,050*
  • Typical Mortgage
    Click price to use our mortgage calculator

Key Features & Description

The facts you need to know...
Beautifully appointed building site set in a semi rural position with views over the countryside
Extending to 0.8 acres of mature grounds
Designed by the renowned Bowsie Partnership
The property benefits from being c.3,265 sq ft
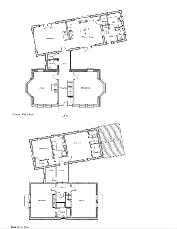
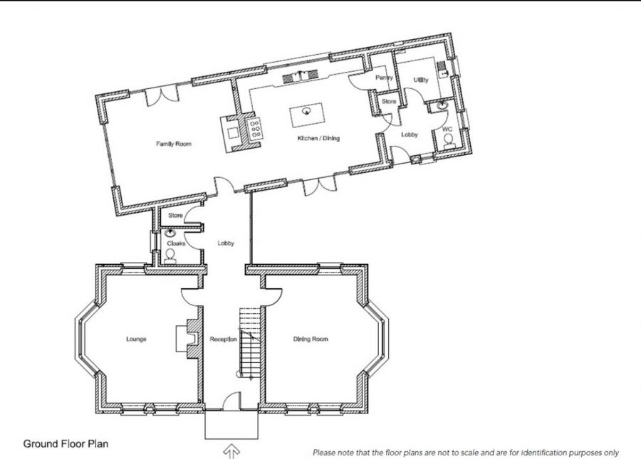
Comprising drawing room, dining room, family room opening to kitchen and casual dining, pantry and utility room
Four well proportioned bedrooms, two with ensuite facilities and walk-in wardrobes.
Spacious bathroom
Planning permission application No R/2012/0226/F
Ground works have commenced on site incorporating the foundations
Mains water, electric and telephone are available on site
Convenient to Crossgar and Downpatrick each within seven minutes drive, 20 minutes from Saintfield and only thirty minutes from Belfast City Centre
For those with a yachting interest there are 3 sailing clubs within a 6 mile radius or for those who enjoy outdoor activities Delamont Country Park is less than 2.5 miles away
Description
The Agents Perspective:
"A superb opportunity to purchase a ready to go building site which benefits from having full planning permission. Set in a private mature site which offers picturesque views both to the front and the rear.
The footprint of the property provides a real sense of the house design and the surrounding views, whilst in a semi-rural position it is within a few miles from amenities within Crossgar, Saintfield and Downpatrick.
An ideal self build or indeed for a private developer"

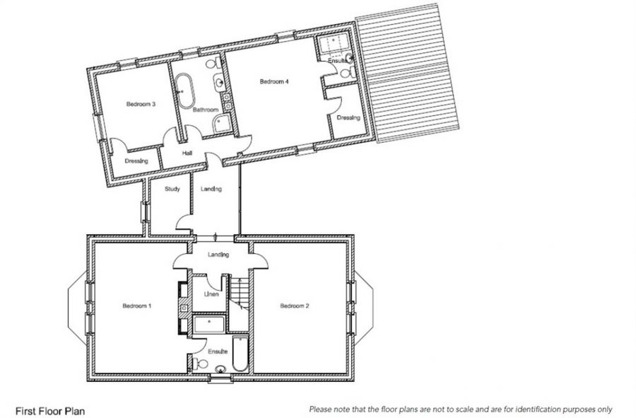
Rooms

ENTRANCE HALL: Staircase to first floor.
CLOAKS CUPBOARD 6' 3" X 5' 6" (1.91m X 1.68m)
Storeroom 3' 0" X 2' 10" (0.92m X 0.86m)
DRAWING ROOM: 19' 8" X 17' 5" (6.00m X 5.30m)
DINING ROOM: 19' 8" X 17' 5" (6.00m X 5.30m)
FAMILY ROOM: 19' 8" X 16' 5" (6.00m X 5.00m) French doors to garden area.
KITCHEN WITH CASUAL DINING 19' 8" X 16' 5" (6.00m X 5.00m) French doors to garden.
PANTRY 5' 11" X 3' 5" (1.80m X 1.05m)
UTILITY ROOM: 7' 10" X 6' 7" (2.40m X 2.00m)
WC 7' 7" X 3' 11" (2.30m X 1.20m)
MAIN BEDROOM 20' 5" X 14' 6" (6.23m X 4.42m)
ENSUITE SHOWER ROOM: 9' 3" X 8' 10" (2.81m X 2.70m)
BEDROOM (2): 20' 5" X 14' 6" (6.23m X 4.42m)
BEDROOM (3): 11' 6" X 11' 5" (3.50m X 3.48m)
ENSUITE SHOWER ROOM: 12' 6" X 7' 10" (3.80m X 2.40m)
DRESSING ROOM: 7' 6" X 3' 7" (2.28m X 1.10m)
BEDROOM (4): 16' 5" X 14' 1" (5.00m X 4.30m)
ENSUITE SHOWER ROOM: 8' 0" X 5' 2" (2.45m X 1.58m)
DRESSING ROOM: 8' 0" X 5' 3" (2.45m X 1.60m)

Video

Property Location

Show Map

Mortgage Calculator

Disclaimer: The following calculations act as a guide only, and are based on a typical repayment mortgage model. Financial decisions should not be made based on these calculations and accuracy is not guaranteed. Always seek professional advice before making any financial decisions.

Directions

From Downpatrick drive out on the Belfast Road for approximately two miles, turn right into the Greystown Road, continue for just over a mile and the site will be on your left.

From Killyleagh drive towards Downpatrick on the Downpatrick Road for 3.9 miles turn right onto Scaddy Road and the first left into Greystown Road and the site will be 800 yards on your right

Contact Agent

Contact Rodgers & Browne

Contact Rodgers & Browne

Request More Information
Requesting Info about...
Perceval House, 52 Greystown Road, Annacloy, Downpatrick, BT30 9BJ Perceval House, 52 Greystown Road, Annacloy, Downpatrick, BT30 9BJ

By registering your interest, you acknowledge our Privacy Policy