Contact Agent

Contact Property People (North Belfast)

Contact Property People (North Belfast)

2 Bed Apartment

1, 6 Brookhill Avenue

Antrim Road, Belfast, BT14 6BS

price £107,500
  • Status For Sale
  • Property Type Apartment
  • Bedrooms 2
  • Receptions 1
  • Bathrooms 1
  • Stamp Duty
    Higher amount applies when purchasing as buy to let or as an additional property
    £0 / £5,375*
  • Typical Mortgage
    Click price to use our mortgage calculator

Key Features & Description

Modern Ground Floor Apartment
Two generous bedrooms
Open Pan Kitchen Living area
Garden to the rear
uPVC double glazing
Gas Fired Central Heating
Travel links to city centre
Close to all amenities
Description

Property People are delighted to bring to the market this modern 2 bedroom ground floor apartment. Situated in the heart of the Antrim Road.

Modern Interior and partly furnished. Easily accessible on the ground floor entrance. The property also comes with a large back garden space, PVC double glazing windows and Gas fried central heating.

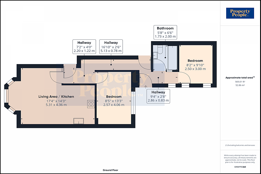
Rooms

Hallway

Carpet flooring

Garden

Fully enclosed rear garden laid in paving flags

Bathroom

Bath with overhead shower, WC, WHB, tiled flooring, double radiator

Bedroom 2

Single bedroom, carpet flooring, double radiator

Bedroom 1

Double bedroom, carpet flooring, double radiator

Reception

Carpet flooring, feature bay window, double radiator

Kitchen

High and low level units, tiled flooring and splash back, extractor fan.

Virtual Tour

Property Location

Show Map

Mortgage Calculator

Disclaimer: The following calculations act as a guide only, and are based on a typical repayment mortgage model. Financial decisions should not be made based on these calculations and accuracy is not guaranteed. Always seek professional advice before making any financial decisions.

Contact Agent

Contact Property People (North Belfast)

Contact Property People (North Belfast)

Request More Information
Requesting Info about...
1, 6 Brookhill Avenue, Antrim Road, Belfast, BT14 6BS 1, 6 Brookhill Avenue, Antrim Road, Belfast, BT14 6BS

By registering your interest, you acknowledge our Privacy Policy