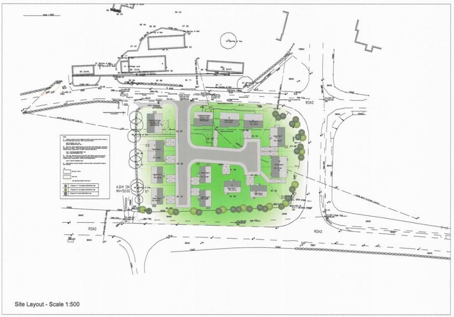
Site
50 Metres West 108, Mullaghbrack Road
Markethill, Armagh
Price on Application
- Status For Sale
- Property Type Site
Property Location
Contact Agent
Contact Redian Real Estate (Armagh)
Request More Information
Requesting Info about...
50 Metres West 108, Mullaghbrack Road, Markethill, Armagh
By registering your interest, you acknowledge our Privacy Policy
By registering your interest, you acknowledge our Privacy Policy