Contact Agent

Contact CPS Armagh

Contact CPS Armagh

Site

Site @ 10M South Of 228 Battleford Road

Armagh, BT61 8BZ

price £90,000
  • Status For Sale
  • Property Type Site
  • Stamp Duty
    Higher amount applies when purchasing as buy to let or as an additional property
    £0 / £4,500*
  • Typical Mortgage
    Click price to use our mortgage calculator

Description

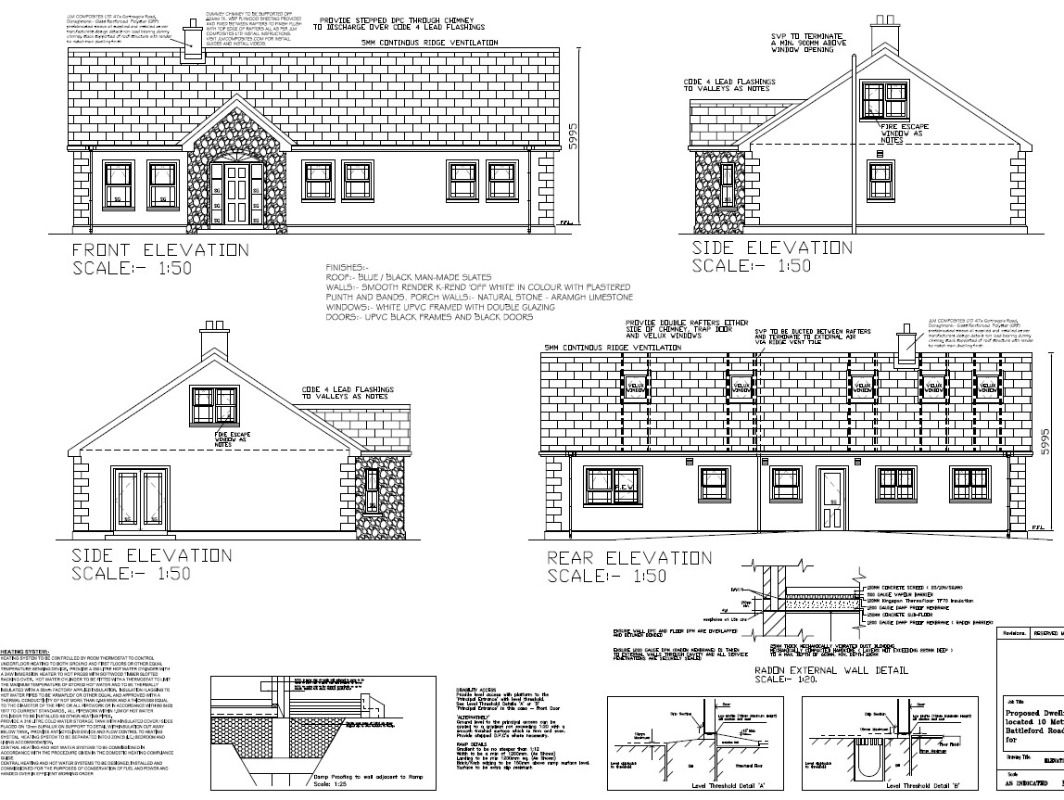
CPS are delighted to have been appointed to list for sale this site for sale with Full Planning Permission, which is circa 0.75 acres located at 10M South of 228 Battleford Road, Armagh, BT61 8BZ.  This site offers an excellent opportunity for someone looking to build a new home. 

LOCATION

The site is located on the main Battleford Road and is accessed off the Cathedral Road via Armagh City and via the Eglish Road from Eglish Village and Dungannon.  The site is ideally located; being in close proximity to local transport roads.

PLANNING

Outline Planning Reference – LA08/2019/0440/O

Site for dwelling

 

Full Planning Reference – LA08/2024/0324/RM

Erection of dwelling with associated access to public road

  • Comprising a 5-bedroom detached bungalow

Planning pack available upon request

SALES PRICE

We have been instructed to seek an asking price of £90,000 (Ninety Thousand Pounds)

VIEWING INFO

It is advised you carry out your own due diligence on this site and for any further information, please contact our Sales Team on 028 3752 8888

 

Property Location

Show Map

Mortgage Calculator

Disclaimer: The following calculations act as a guide only, and are based on a typical repayment mortgage model. Financial decisions should not be made based on these calculations and accuracy is not guaranteed. Always seek professional advice before making any financial decisions.

Contact Agent

Contact CPS Armagh

Contact CPS Armagh

Request More Information
Requesting Info about...
Site @ 10M South Of 228 Battleford Road, Armagh, BT61 8BZ Site @ 10M South Of 228 Battleford Road, Armagh, BT61 8BZ

By registering your interest, you acknowledge our Privacy Policy