Contact Agent
Contact Property People (Clogher Valley)
3 Bed Land
70M N.E. Of 40A Dunroe Road
Augher, BT76 0HP
Price on Application
- Status For Sale
- Property Type Land
- Bedrooms 3
- Receptions 2
- Bathrooms 1
Description
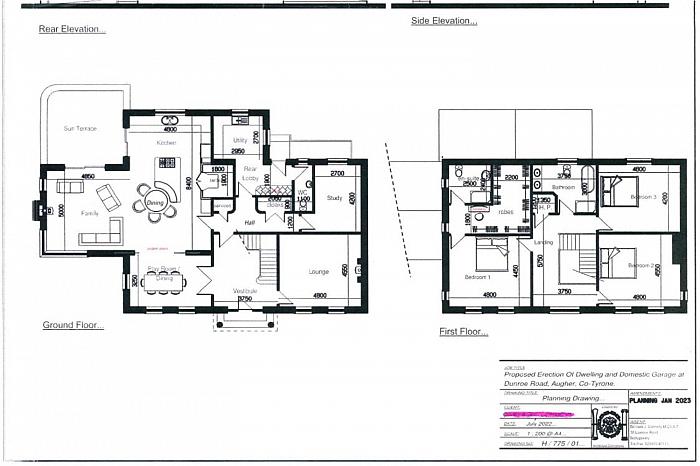
Building site with Full planning permission for a two-storey house. The site is approximately 0.75 acres and offers amazing views across the Clogher Valley. Copies of planning permission, site location maps, and elevations are available on request.
Contact Colin in the Augher office for further details.
Property Location
Contact Agent
Contact Property People (Clogher Valley)
Request More Information
Requesting Info about...
70M N.E. Of 40A Dunroe Road, Augher, BT76 0HP
By registering your interest, you acknowledge our Privacy Policy
By registering your interest, you acknowledge our Privacy Policy