Contact Agent

Contact CPS Armagh

Contact CPS Armagh

Land

6 Whitelough Road

Aughnacloy, Dungannon, BT69 6ES

price £85,000
  • Status For Sale
  • Property Type Land
  • Stamp Duty
    Higher amount applies when purchasing as buy to let or as an additional property
    £0 / £4,250*
  • Typical Mortgage
    Click price to use our mortgage calculator

Description

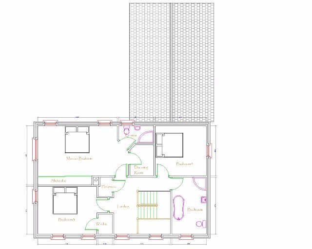
This building site is on  the Whitelough Road making this convenient to Aughnacloy with the site sitting on a C.1.034 Acres. It is also within commuting distance to both Dungannon and Armagh City. This building site has Full Planning   Permission passed for a four bed detached home with three reception rooms and a basement garage.  This is an ideal for a builder or for someone who desires to build their own home.

 

Planning Referance - M/2007/0130/RM

 

Property Location

Show Map

Mortgage Calculator

Disclaimer: The following calculations act as a guide only, and are based on a typical repayment mortgage model. Financial decisions should not be made based on these calculations and accuracy is not guaranteed. Always seek professional advice before making any financial decisions.

Contact Agent

Contact CPS Armagh

Contact CPS Armagh

Request More Information
Requesting Info about...
6 Whitelough Road, Aughnacloy, Dungannon, BT69 6ES 6 Whitelough Road, Aughnacloy, Dungannon, BT69 6ES

By registering your interest, you acknowledge our Privacy Policy