Contact Agent

Contact Stewart Estate Agents

Contact Stewart Estate Agents

5 Bed Detached House

Bracken Hill Lower Ballinderry Road

Ballinderry Upper, BT28 2JB

offers around £998,000
  • Status For Sale
  • Property Type Detached
  • Bedrooms 5
  • Receptions 2
  • Heating Underfloor
  • EPC Rating B81 / B81
  • Stamp Duty
    Higher amount applies when purchasing as buy to let or as an additional property
    £43,550 / £93,450*
  • Typical Mortgage
    Click price to use our mortgage calculator
EPC Rating

Description

www.lennonhomes.com

Arrestingly contemporary yet sympathetic to its pastoral surroundings, this fine modernist home elevates the ultimate living experience to new heights with the latest innovative technologies for maintenance free comfort with great attention to its all important eco credentials and energy efficiency.

Bracken Hill will welcome you home, leading you through the beautiful front door and revealing an impressive entrance hallway and voluminous double height windows allowing the light to flood the very core of the home. A formal drawing room simply invites that rich countryside in from the rear view through the large corner window, whilst the open plan live-in kitchen with dining and family room provides the most extraordinary living experience. A cutting edge kitchen design with an adjoining cooking kitchen compliment the contemporary design and create a calm backdrop at the heart of the home.

The Master suite on the first floor has uninterrupted views of open bucolic surroundings. Three further bedrooms each with their individual features adds further interest to this already intriguing home.

The creative design combined with the latest technologies and landscaped setting creates a feeling of well being and makes for a healthy and sustainable place to call home. 

Viewing strictly by appointment with Nicolas Stewart 028 9261 2121

 

Introducing a rare and timeless contemporary home commissioned by Lennon Homes who have become synonymous with the creation of a bespoke portfolio of extraordinary properties

Grant Air Source Heat Pump in combination with Beam Mechanical Ventilation and Heat Recovery System providing a highly efficient and entirely renewable heat source for all heating and hot water needs, with the added benefit of enhanced indoor air quality and reduced energy consumption

Architecturally striking entrance with bespoke timber detailing leading to the individually designed front door and picture window

Bright and impressive hallway with double height window to allow light to flood through to the striking elevation incorporating an internal first floor gallery bridge. Modernist glass and timber slatted staircase design. Cloak room or plant room

Drawing room to the rear with full height corner window taking into the rear south and westerly facing outlook 

Separate study or guest bedroom adjacent to the downstairs shower room

Downstairs shower room with a full height feature window, contemporary shower area with glass screen and flush floor tiling incorporating concealed drainage. Duravit WC and vanity wash hand basin and an exclusive fitted mirrored cabinet

Sensational open plan living, kitchen and dining design with bi fold patio doors, full height corner windows incorporating a stunning south and west facing rural view, beautiful patio and a split height ceiling

Full range of ‘Alwood’ kitchen cabinetry in a contemporary style and in a bespoke design for Bracken Hill. Large floating style island unit with breakfast area and storage units with fitted Dekton work surfaces. Adjoining and secluded rear food preparation and cooking kitchen with fitted units with Dekton work surfaces and integrated AEG ovens and AEG fridge

Rear hallway with a coordinating contemporary style external door

Downstairs WC and fitted feature vanity wash hand basin

Separate utility room with matching range of fitted ‘Alwood’ high and low level units and larder and cloaks units with cabinetry for concealed washing machine and dryer 

Concrete first floor Bison floors and concrete staircase

Exclusive floor tiling through out with detailing into showers with concealed drainage tiles

Fully bespoke Duravit sanitary fittings to bathroom and all shower rooms with black, copper, chrome or gold coloured bathroom accessories

Four first floor bedrooms, master bedroom with a bespoke fitted dressing room cabinetry and dressing table. Fitted ensuite shower room

Matching detached garaging with an insulated garage door and attractive windows, separate service door and a separate WC with vanity wash hand basin

Anthracite PVC energy efficient triple glazed windows

Outside bin park

Feature entrance pillars with electric gates, remote intercom system with camera

Extensive exterior lighting design

Tarmac driveway

Gardens levelled and seeded

Patio, pathways, some border planting and perimeter hedging

Interior under coated wall painting

 

Smart Phone Controls for:-

Heating and hot water system

Ventilation and heat recovery system

Alarm / security system

CCTV

AEG ovens

Entrance gates with camera

Provision for robotic lawnmower

 

 

 

 

 

 

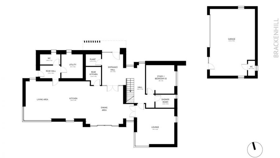
Rooms

Entrance Hall 14' 1" X 9' 10" (4.30m X 3.00m)
Plant room / Cloak room 6' 11" X 5' 7" (2.10m X 1.70m)
Open Plan Kitchen / Dining / Living room 42' 8" X 17' 1" (13.00m X 5.20m)
Rear Kitchen 8' 2" X 6' 11" (2.50m X 2.10m)
Rear Hallway 9' 2" X 5' 11" (2.80m X 1.80m)
WC 9' 2" X 4' 11" (2.80m X 1.50m)
Utility room 9' 10" X 10' 10" (3.00m X 3.30m)
Lounge 17' 1" X 16' 5" (5.20m X 5.00m)
Bedroom 5 / Study 13' 1" X 13' 1" (4.00m X 4.00m)
Shower room 8' 6" X 5' 11" (2.60m X 1.80m)
Bedroom 1 13' 1" X 17' 1" (4.00m X 5.20m)
Dressing room 10' 6" X 7' 10" (3.20m X 2.40m)
Ensuite shower room 9' 2" X 5' 11" (2.80m X 1.80m)
Bedroom 2 17' 1" X 10' 6" (5.20m X 3.20m)
Ensuite 10' 6" X 3' 11" (3.20m X 1.20m)
Bedroom 3 17' 1" X 13' 1" (5.20m X 4.00m)
Bedroom 4 14' 1" X 13' 1" (4.30m X 4.00m)
Garage 30' 6" X 17' 5" (9.30m X 5.30m)

Property Location

Show Map

Mortgage Calculator

Disclaimer: The following calculations act as a guide only, and are based on a typical repayment mortgage model. Financial decisions should not be made based on these calculations and accuracy is not guaranteed. Always seek professional advice before making any financial decisions.

Contact Agent

Contact Stewart Estate Agents

Contact Stewart Estate Agents

Request More Information
Requesting Info about...
Bracken Hill Lower Ballinderry Road, Ballinderry Upper, BT28 2JB Bracken Hill Lower Ballinderry Road, Ballinderry Upper, BT28 2JB

By registering your interest, you acknowledge our Privacy Policy