Contact Agent
Contact Quinn Estate Agents (Downpatrick)
3 Bed Detached House
71 Ballyhornan Road
Ballyalton, Downpatrick, BT30 7AA
offers in the region of
£245,000
Key Features & Description
Detached Family Home
Three Bedrooms, Principle En-Suite
Generous Living Room with Stove
Open Plan Kitchen & Dining Area
Ground Floor WC
Enclosed Rear Garden & Entertaining Area
Ample Off Road Parking
Detached Garage, Utility Area & Store
Beautifully Presented Move In Ready Home
Highly Sought After Neighbourhood
Description
Situated just 2 miles from Downpatrick, this beautifully presented, move in ready detached home is located in the highly sought after village of Ballyalton. Combining rural charm with modern comforts, this property offers an exceptional lifestyle opportunity in a peaceful, community focused setting.
The current owners have thoughtfully cared for their home, showcasing a stylish blend of contemporary design and quality finishes throughout. Flooded with natural light, the spacious interior provides a warm and welcoming atmosphere, ideal for both relaxed living and entertaining.
This home truly needs to be seen to be fully appreciated - early viewing is highly recommended.
Situated just 2 miles from Downpatrick, this beautifully presented, move in ready detached home is located in the highly sought after village of Ballyalton. Combining rural charm with modern comforts, this property offers an exceptional lifestyle opportunity in a peaceful, community focused setting.
The current owners have thoughtfully cared for their home, showcasing a stylish blend of contemporary design and quality finishes throughout. Flooded with natural light, the spacious interior provides a warm and welcoming atmosphere, ideal for both relaxed living and entertaining.
This home truly needs to be seen to be fully appreciated - early viewing is highly recommended.
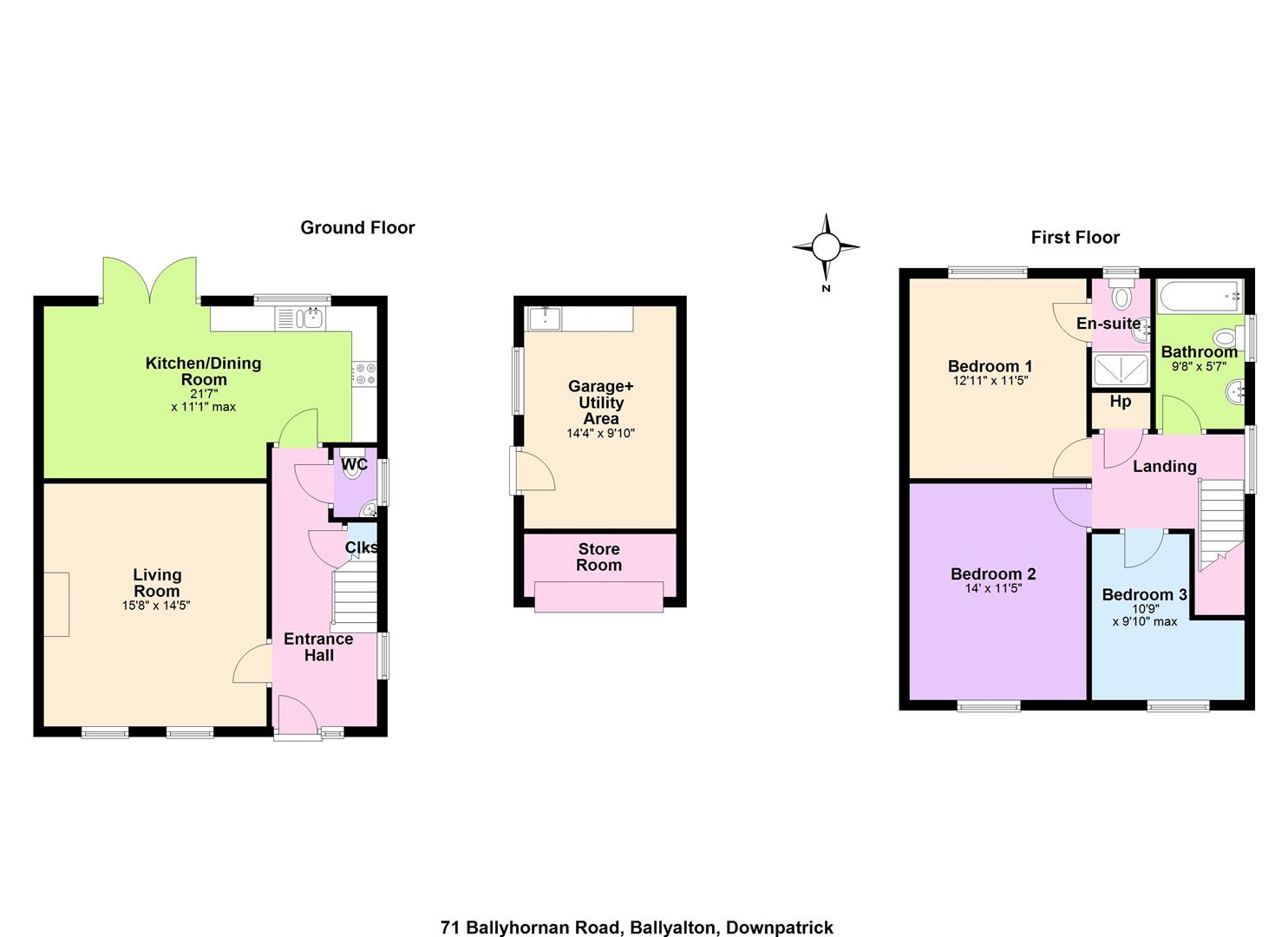
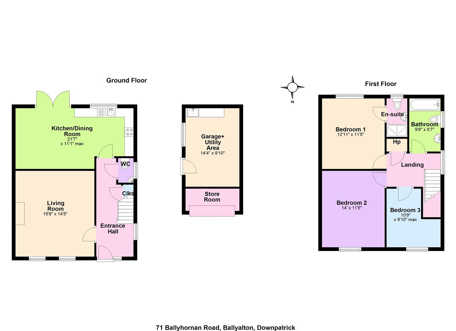
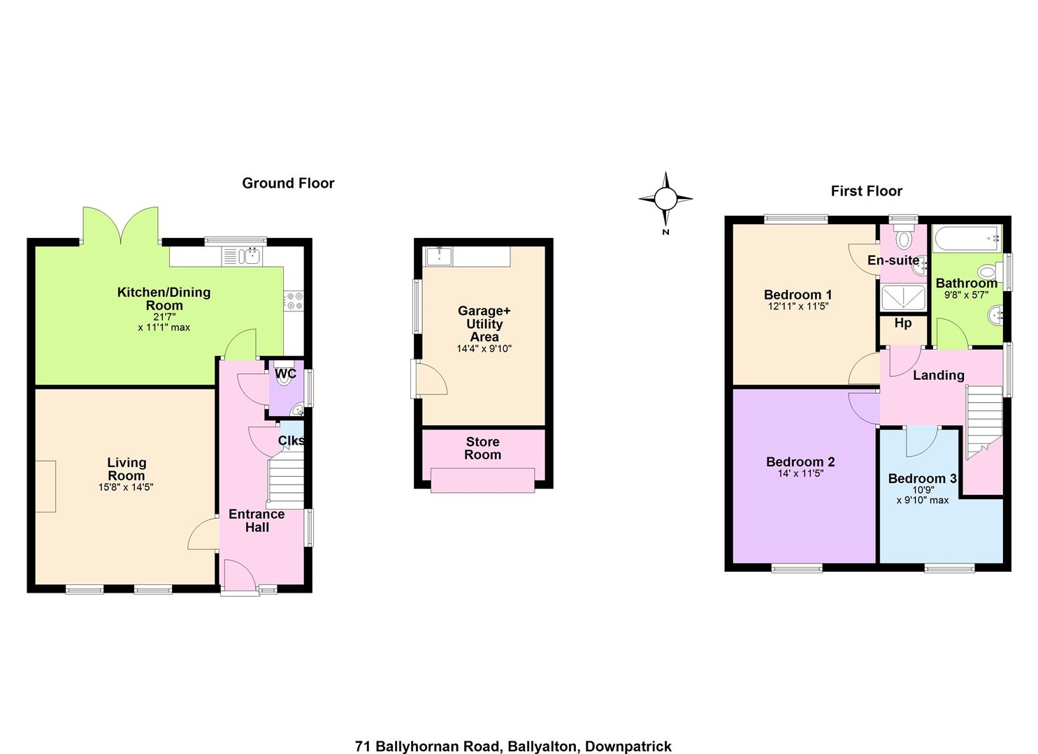
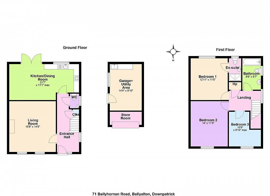
Rooms
ACCOMMODATION
Comprising lounge with stove, spacious open plan kitchen and dining area, this home also boasts a ground floor WC and cloakroom storage.
On the first floor are three well proportioned bedrooms including a the principle bedroom with en-suite as well as a modern family bathroom.
On the first floor are three well proportioned bedrooms including a the principle bedroom with en-suite as well as a modern family bathroom.
OUTSIDE
Externally the property is further enhanced with detached garage, comprising utility area and store, easily maintained rear garden, along with tarmac driveway adding both convenience and curb appeal.
MORTGAGE ADVICE
Please contact our associate, Donnan Ritchie from Ritchie & McLean Mortgage Solutions on 07545 576 819 or email donnan@ritchiemclean.co.uk
Donnan is based in our Downpatrick branch.
Donnan is based in our Downpatrick branch.
ENQUIRIES TO
Edel Curran:
edel@quinnestateagents.com or 07703 612 257
edel@quinnestateagents.com or 07703 612 257
Broadband Speed Availability
Potential Speeds for 71 Ballyhornan Road
Max Download
1800
Mbps
Max Upload
1000
MbpsThe speeds indicated represent the maximum estimated fixed-line speeds as predicted by Ofcom. Please note that these are estimates, and actual service availability and speeds may differ.
Property Location
Mortgage Calculator
Contact Agent
Contact Quinn Estate Agents (Downpatrick)
Request More Information
Requesting Info about...
71 Ballyhornan Road, Ballyalton, Downpatrick, BT30 7AA
By registering your interest, you acknowledge our Privacy Policy
By registering your interest, you acknowledge our Privacy Policy