Contact Agent

Contact McAfee Properties (Ballycastle)

Contact McAfee Properties (Ballycastle)

Land (Single Dwelling)

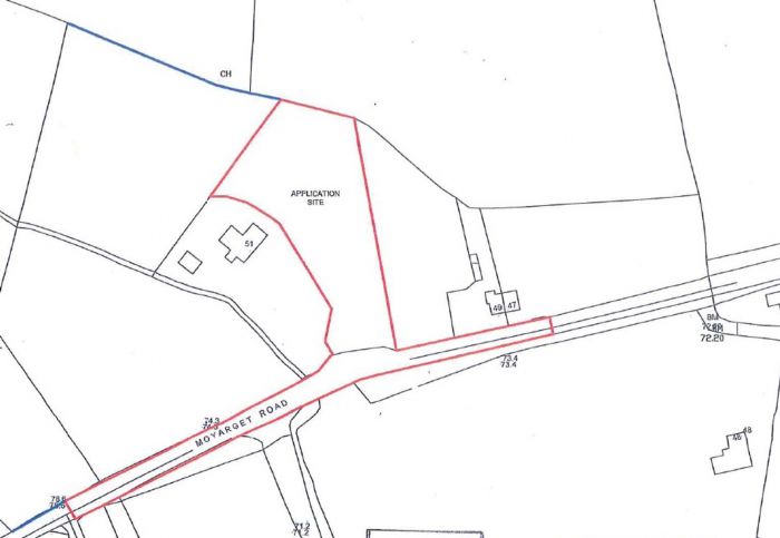
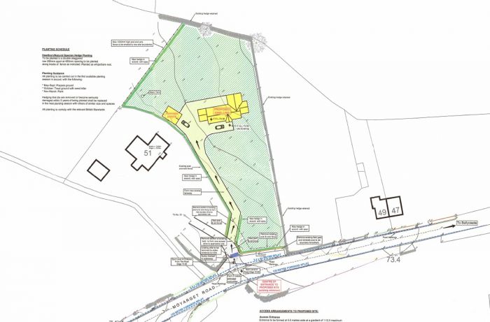
Site Between 49 & 51 Moyarget Road

Ballycastle, BT54 6HL

Price on Application
  • Status For Sale
  • Property Type Land (Single Dwelling)

Description

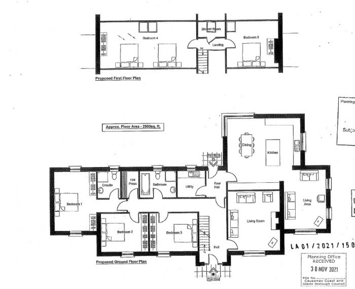
We are delighted to offer for sale a unique opportunity to purchase this rural building site located approximately 1/2 mile from the coastal town of Ballycastle on the Moyarget Road.  The site has full planning permission for a chalet bungalow with all necessary services located nearby and has the additional benefit of having picturesque countryside views of Knocklayde and its surroundings.  Seldom does an opportunity arise to purchase a building site in this location and early viewing is highly recommended to fully appreciate the site and its location.  Please contact us for further details including the planning permission.

Property Location

Show Map

Directions

Leave Ballycastle town centre along Castle Street and continue onto the Coleraine Road. Continue along onto the Moyarget Road and the site is located approximately ½ mile after leaving Ballycastle on the right hand side (across the road from the turn off to the Magheramore Road).

Contact Agent

Contact McAfee Properties (Ballycastle)

Contact McAfee Properties (Ballycastle)

Request More Information
Requesting Info about...
Site Between 49 & 51 Moyarget Road, Ballycastle, BT54 6HL Site Between 49 & 51 Moyarget Road, Ballycastle, BT54 6HL

By registering your interest, you acknowledge our Privacy Policy