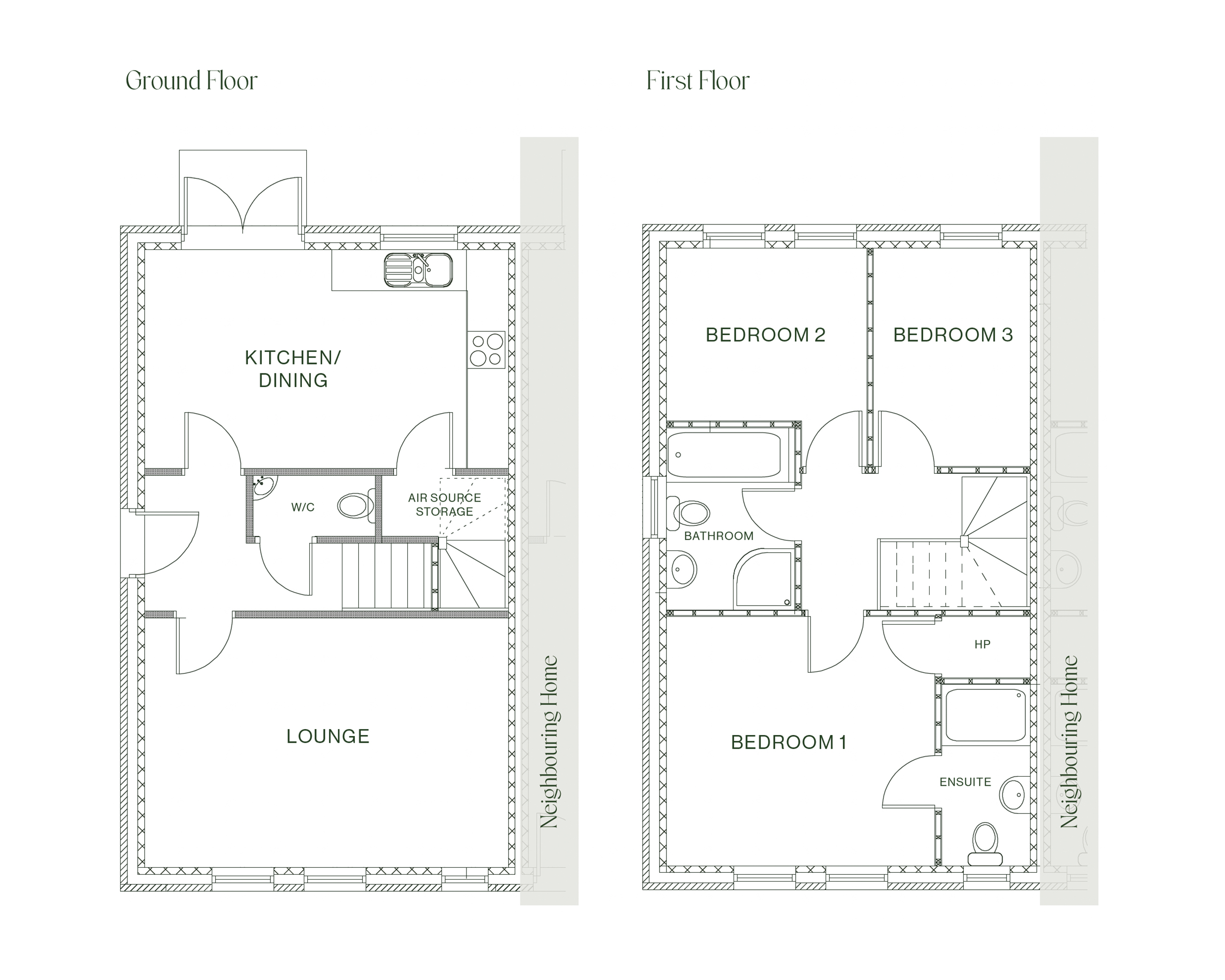
3 Bed End Terrace

Site 91, Type J1, Mossfield

Jubilee Road, Ballyclare, BT39

price £212,500
  • Status For Sale
  • Property Type End Terrace
  • Bedrooms 3
  • Receptions 1
  • Bathrooms 1
  • Stamp Duty
    Higher amount applies when purchasing as buy to let or as an additional property
    £1,750 / £12,375*
  • Typical Mortgage
    Click price to use our mortgage calculator

Key Features & Description

  • SPECIFICATION
  • AIR SOURCE HEAT PUMP
  • KITCHEN
  • Quality kitchen with choice of units, doors, work tops and handles. Appliances to include cooker, hob, extractor hood, dishwasher and fridge freezer. Plumbed for washing machine and tumble dryer in utility room where applicable. Feature downlighters.
  • BATHROOM
  • Designer sanitary ware in all bathrooms and ensuite areas
  • FLOOR COVERING & WALL TILES
  • Bathrooms to include a selection of high quality floor tiling and strategically placed wall tiling.
  • Choice of quality tiling to hallway, W.C, kitchen, dining, sun lounge and utility (If applicable).
  • Choice of quality carpets to lounge, study (if applicable), bedrooms, stairs & landing.
  • INTERNAL FINISHES
  • Moulded skirting & architrave
  • Painted traditional internal doors with quality ironmongery
  • Glazed door to lounge, kitchen and study (if applicable)
  • Stairs will incorporate classic timber stairs, painted newel posts, handrails and balustrades
  • Internal walls, ceilings and woodwork painted in a single colour
  • ELECTRICAL
  • Comprehensive range of electrical sockets incorporating USB charging point (pre-selected points), switches, TV & telephone points
  • Wiring for future satellite points
  • Smoke, heat & carbon monoxide detectors
  • Energy efficient down lighting to kitchen, hall and bathrooms
  • Feature external light to front and rear
  • Fibre to the premises (FT TP) providing ultra-fast broadband speeds subject to the provider you sign up with (broadband service/contract not included)
  • EXTERNAL FEATURES
  • Energy efficient traditional masonry construction with a selection of classic brick & render
  • Classic decorative door surround and sills (depending on house type)
  • Insulated energy saving windows in uPVC frames
  • GRP Composite front door with a 5 point system
  • Black seamless aluminium rainwater goods, with black uPVC Downpipes
  • High standard of floor, wall and loft insulation to ensure minimal heat loss & maximum
  • Front garden landscaped
  • Rear garden top soil and sown out
  • Paved patio to rear
  • Bitmac parking areas & paths
  • Timber fencing to include gate and walling to rear boundaries where appropriate
  • Outside tap provided
  • Video Doorbell
  • Description
    Welcome to Mossfield, where every detail is designed with a commitment to a greener future.

    These exceptional homes redefine modern living by seamlessly integrating cutting-edge sustainability practices with the utmost in comfort and style.

    At Mossfield, we understand that your home is more than just a living space; it is a reflection of your values and aspirations. That's why we've embarked on a journey to create homes that tread lightly on the Earth, while offering an unparalleled living experience for you and your family.

    Join us in exploring how Mossfield is reimagining modern living - a sanctuary where you can relish in the harmony of nature, revel in the embrace of luxury, and embrace a lifestyle that celebrates both you well-being and the well-being of our planet.

    At Mossfield, sustainability meets comfort - this is your invitation to a life enriched by purpose, conscience, and a deep connection to the world around you.

    Property Location

    Show Map

    Mortgage Calculator

    Disclaimer: The following calculations act as a guide only, and are based on a typical repayment mortgage model. Financial decisions should not be made based on these calculations and accuracy is not guaranteed. Always seek professional advice before making any financial decisions.

    Request More Information
    Requesting Info about...
    Site 91, Type J1, Mossfield, Jubilee Road, Ballyclare, BT39 Site 91, Type J1, Mossfield, Jubilee Road, Ballyclare, BT39

    By registering your interest, you acknowledge our Privacy Policy