Contact Agent
Contact John Minnis Estate Agents (Greater Belfast)
4 Bed Semi-Detached House
38 North Road
Ballyhackamore, Belfast, BT5 5NH
offers over
£399,950
Key Features & Description
Driveway to Front for Ample Off-Street Parking Accessed Via Electronically Controlled Gates.
Private Garden to rear In Artificial Grass with Patio Areas
Situated Beside the Comber Greenway with Cycling Commute to City Centre and Comber
Offering Excellent Convenience to Belfast City Centre and a Range of Local Schools
Sought After Location Within Walking Distance to Bustling Ballyhackamore and Belmont Villages
Hive Home Heating System
Attached Garage Partially Converted for Home Office Space
Modern Four Piece White Bathroom Suite
Four Well Proportioned Bedrooms
Modern Downstairs Shower Room and Utility Room
Modern Fully Fitted Kitchen with Casual Dining Area and Snug
Separate Family Room with Open Fire
Living Room with Bay Window and Feature Fireplace
Spacious Entrance Hall with Parquet Flooring
Well-Presented Semi-Detached Property Close to Ballyhackamore Village
Description
An attractive and deceptively spacious four bedroom period style detached home, blending original charm with modern comfort. This well presented property offers generous living spaces, including an elegant lounge with period features, a contemporary open plan kitchen/dining/snug area, and a private garden, perfect for family living. the four well-proportioned bedrooms provide plenty of space. Ideally located in a sought-after area, close to local amenities, schools and transport links, this is an ideal family home for timeless appeal.
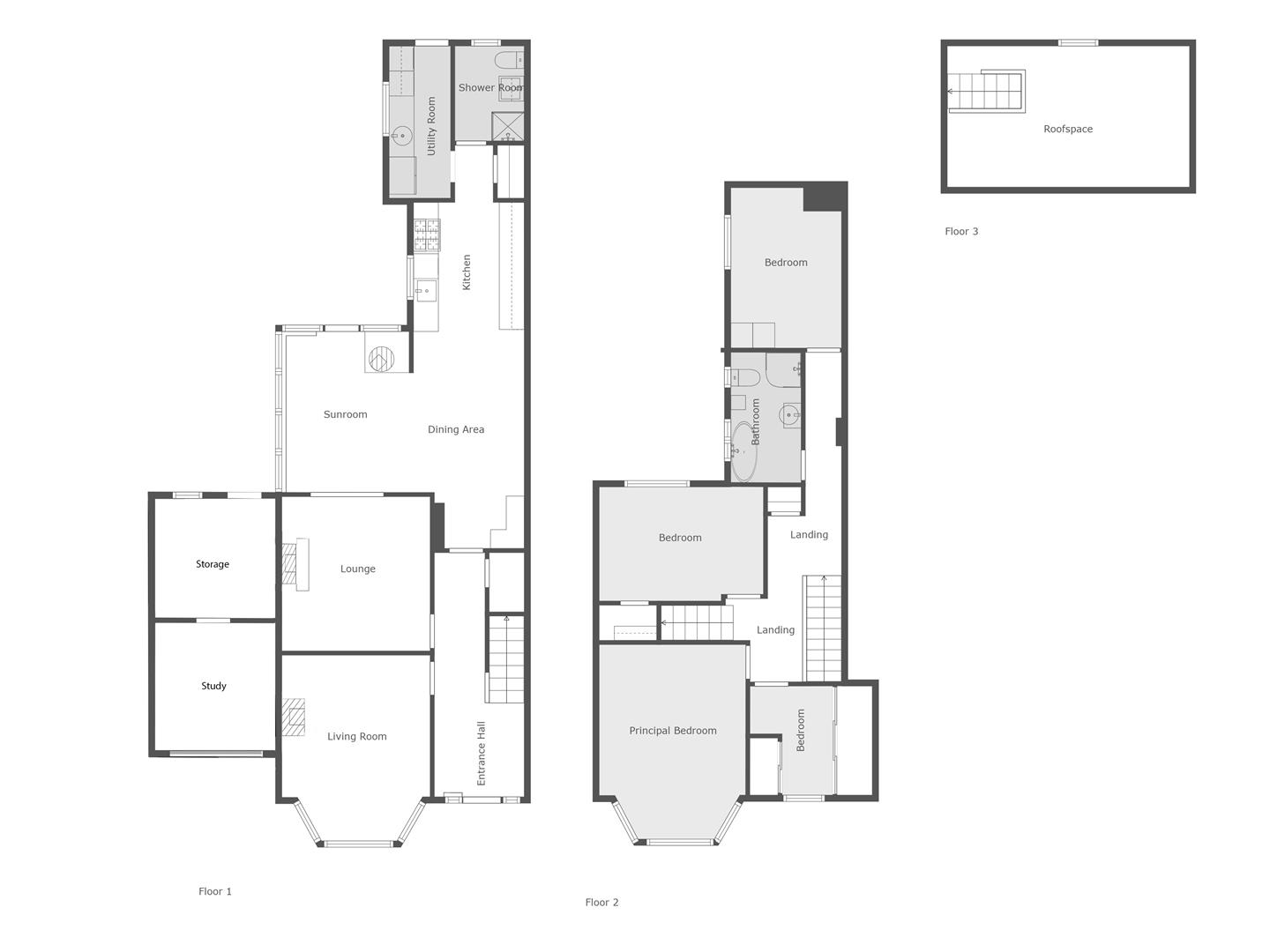
Internally the property comprises; spacious entrance hall with original wood panelling, lounge with bay window and feature fireplace, rear reception with open fire, a modern kitchen/diner/snug area with further utility room and downstairs shower room. Upstairs there are four bedrooms, and a luxury bathroom with four piece suite. A fixed staircase from the landing leads to a fully floored and sheeted roofspace.
Externally the property benefits from electronically controlled gates leading to driveway for ample off street parking and an attached garage, part converted to a home office, and part for storage. To the rear is a private garden in artificial grass with patio areas.
This home is perfectly suited for families or anyone looking to enjoy both classic charm and contemporary living. Don´t miss the opportunity to make this charming property your own.
An attractive and deceptively spacious four bedroom period style detached home, blending original charm with modern comfort. This well presented property offers generous living spaces, including an elegant lounge with period features, a contemporary open plan kitchen/dining/snug area, and a private garden, perfect for family living. the four well-proportioned bedrooms provide plenty of space. Ideally located in a sought-after area, close to local amenities, schools and transport links, this is an ideal family home for timeless appeal.
Internally the property comprises; spacious entrance hall with original wood panelling, lounge with bay window and feature fireplace, rear reception with open fire, a modern kitchen/diner/snug area with further utility room and downstairs shower room. Upstairs there are four bedrooms, and a luxury bathroom with four piece suite. A fixed staircase from the landing leads to a fully floored and sheeted roofspace.
Externally the property benefits from electronically controlled gates leading to driveway for ample off street parking and an attached garage, part converted to a home office, and part for storage. To the rear is a private garden in artificial grass with patio areas.
This home is perfectly suited for families or anyone looking to enjoy both classic charm and contemporary living. Don´t miss the opportunity to make this charming property your own.
Rooms
East Belfast is a dynamic part of the city, full of beautiful residential areas and a wide variety of amenities that make it a wonderful place to live. Bustling villages, beautiful parks, and fantastic local schools are just a few of the reasons why so many wish to call it home
Garage:
Sub-divided into Home Office via crittall-style double doors and electric shutter door.
Outside:
Driveway to front via remote controlled gates for ample off street parking. Garden to rear in artificial grass with composite decking patio area.
OUTSIDE
Attic Room:
Floored and sheeted, light, lower, velux windows.
SECOND FLOOR
Bathroom:
White suite comprising cast iron ball and claw foot bath with mixer taps and telephone shower attachment. Separate shower cubicle, electric shower. Low flush WC. Pedestal wash hand basin, tiled walls, tiled floor.
Bedroom Three: 12'6" X 9'2" (3.81m X 2.79m)
Outlook to rear.
Bedroom Two: 11'9" X 9'7" (3.58m X 2.92m)
Built in storage, outlook to rear.
Bedroom Four: 8'12" X 8'1" (2.74m X 2.46m)
Outlook to front.
Bedroom One: 15'1" X 11'1" (4.60m X 3.38m)
Bay window with outlook to front. Polished wooden flooring.
Landing:
Door to Fixed Staircase with access to roofspace, storage cupboard.
FIRST FLOOR
Downstairs Shower Room:
Modern white suite comprising shower cubicle with electric shower above, low flush wc with push button flush, semi pedestal wash hand basin, chrome mixer tap, tiled floor, tiled walls, extractor fan.
Utility Room:
Fridge/freezer space, range of high and low level units, laminate worktop, single drainer sink unit, plumbed for washing machine, tumber dryer space, Pvc double glazed back door.
Kitchen:
Modern range of high and low level units, laminate worktop, Belfast Sink unit, mixer tap, range cooker space, stainless steel splashback, stainless steel extractor fan, integrated dishwasher, heringbone style tiled floor.
Snug:
Wooden flooring, multi fuel burning stove. Pvc double glazed back door.
Family Room: 12'6" X 12'0" (3.81m X 3.66m)
Open fire, tiled hearth, wooden mantle. Pvc double glazed french doors into:
Lounge: 15'4" X 12'5" (4.67m X 3.78m)
Measurements at widest points. Bay window with outlook to front, open fire with cast iron fireplace.
Entrance Hall:
Parquet flooring,original wall panelling, under stairs storage
ENTRANCE
Composite front door with top light into entrance hall
Broadband Speed Availability
Potential Speeds for 38 North Road
Max Download
1800
Mbps
Max Upload
220
MbpsThe speeds indicated represent the maximum estimated fixed-line speeds as predicted by Ofcom. Please note that these are estimates, and actual service availability and speeds may differ.
Property Location
Mortgage Calculator
Contact Agent
Contact John Minnis Estate Agents (Greater Belfast)
Request More Information
Requesting Info about...
38 North Road, Ballyhackamore, Belfast, BT5 5NH
By registering your interest, you acknowledge our Privacy Policy
By registering your interest, you acknowledge our Privacy Policy