Contact Agent

Contact Lynn and Brewster

Contact Lynn and Brewster

3 Bed Semi-Detached House

80, 10 St Patricks Drive

Ballymena, BT43 7FQ

asking price £187,500
  • Status For Sale
  • Property Type Semi-Detached
  • Bedrooms 3
  • Receptions 1
  • Bathrooms 2
  • Heating Gas
  • EPC Rating B84 / B84
  • Stamp Duty
    Higher amount applies when purchasing as buy to let or as an additional property
    £1,250 / £10,625*
  • Typical Mortgage
    Click price to use our mortgage calculator
EPC Rating

Description

Completed to a full turnkey specification, only 10 properties including 2 detached and 8 semi detached homes positioned within this stylish contemporary scheme being developed by Radius Housing on the former St Patricks Barracks site and located close to the town centre and local amenities.

These homes are only available to buy through Co-Ownership. As these homes are part of an affordable home scheme, you must meet Co-Ownership’s eligibility criteria to purchase one of these properties. We recommend visiting www.co-ownership.org to check if you’re eligible before registering your interest.

Co-Ownership is a not for profit organisation that helps people become homeowners. You buy the share of the home you can afford (between 50% and 90%), and Co-Ownership buys the rest. You then pay a small monthly rent on their share.

CONDITIONS

1. These properties are being offered as affordable homes as part of a mixed tenure development.

2. To be eligible for one of these homes, you must require Co-Ownership’s support to buy a home. More information on Co-Ownership and eligibility criteria can be found at co-ownership.org.

3. To secure one of these homes, purchasers must provide a valid Co-Ownership Approval for at least the value of the home they wish to purchase, and a DIP from a mortgage lender as evidence of their eligibility. For pre-qualification and free in-house mortgage advice, contact our team on 028 2563There will be no holding deposit required for these

4. When selecting a solicitor, purchasers are required to select a solicitor who is on the Co-Ownership and lender solicitor panels.

5. Each property can only be purchased by one applicant (as individual or joint applicants). Applicants cannot be involved in more than one application, or purchase multiple properties

6. Employees and/or relations of employees of Radius Housing are not permitted to purchase properties in this development.

 

 

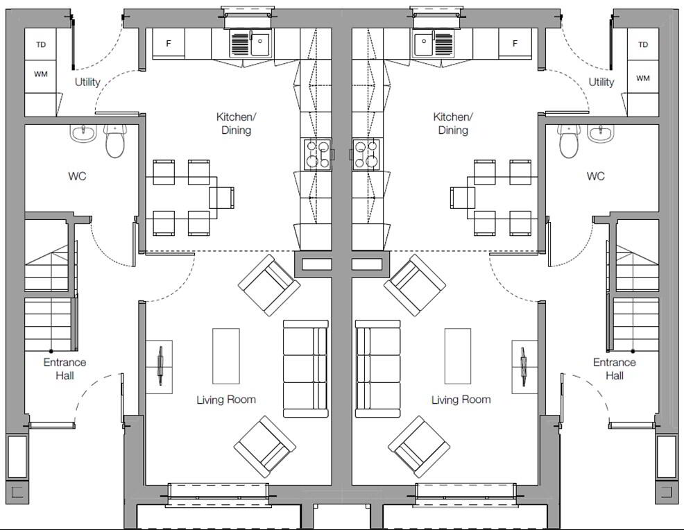
Measurements and details taken from no. 1 (for guidance purposes only) as an example of standard specification (please note some fixtures and appliances may be changed due to supply)

 

No 1:

 

Hallway:

Telephone point, understairs storage with light, tiled flooring extending through

 

Cloaks/wc:

7’3 x 5’5 (2.200m x 1.660m)

Comprising low flush wc, pedestal wash hand basin with mixer tap and splashback tiling, vertical heated towel rail, tiled flooring

 

Kitchen/Dining/Family Area:

28’7 x 11’1 (8.710m x 3.377m)

Featuring shaker style fitted kitchen with brushed chrome effect handles and marble effect worktops. Range of integrated appliances including 4 ring induction hob, overhead extractor and canopy, Indesit low level fan assisted oven and grill, fridge freezer and SIA dishwasher. 1 1/2 bowl stainless steel sink unit with mixer tap and rinse head, tiling between units, integrated spotlights to kitchen area, raised and low level TV point and cat 6 cable and data points, wood plank effect tiled flooring extending through

 

Utility:

7’2 x 5’7 (2.181m x 1.712m)

Complimentary range of units, worktop and wall tiling, freestanding Beko washing machine and TCL tumble dryer (9kg), glazed door opening to rear garden

 

Landing:

Stairs, landing and bedrooms completed in grey carpet, linen cupboard (shelved), insulated loft hatch

 

Bedroom 1:

14’2 x 12’ (4.311m x 3.022m main area)

Telephone point, TV point

 

Ensuite:

7’11 x 3’2 (2.411m x 0.963m max)

Comprising fully tiled shower cubicle with shower unit off mains, wall mounted wash hand basin with mixer tap and splashback tiling, low flush wc, vertical heated towel rail, tiled flooring and skirting, integrated spotlights

 

Bedroom 2:

10’8 x 10’6 (3.250m x 3.187m)

Telephone point & TV point

 

Bedroom 3:

8’11 x 8’5 (2.704m x 2.561m)

Telephone point & TV point

 

Bathroom:

Comprising panelled bath with mixer tap and hand shower attachment, tiled surround, vanity unit with counter top basin, mixer tap and splashback tiling, low flush wc, shaver point, vertical heated towel rail, tiled flooring and skirting, integrated spotlights

 

Specification:

Internal:

Gas fired heating

Wiring left for burglar alarm

Painted vertical panelled internal doors with chrome effect handles

Painted walls, ceiling and joinery

Carpet to stairs, landing and bedrooms

Floor tiling to hall, cloaks/wc, lounge/

dining/kitchen area, utility, bathroom and ensuite

PIV whole house ventilation system

 

External:

Bitmac driveway to side and access pathway to front

Front and rear garden turfed

Enclosed rear garden completed in brick and vertical panelled timber fencing (subject to site location)

Double glazed windows set within anthracite PVC finish frames

Composite framed front door and PVC framed rear door

Brick and through colour acrylic render finish

Seamless aluminium guttering and PVC downpipes

Dry verges

Wall and railing to front and side entrance

External lighting

External power point

Outside tap

 

 

Property Location

Show Map

Mortgage Calculator

Disclaimer: The following calculations act as a guide only, and are based on a typical repayment mortgage model. Financial decisions should not be made based on these calculations and accuracy is not guaranteed. Always seek professional advice before making any financial decisions.

Contact Agent

Contact Lynn and Brewster

Contact Lynn and Brewster

Request More Information
Requesting Info about...
80, 10 St Patricks Drive, Ballymena, BT43 7FQ 80, 10 St Patricks Drive, Ballymena, BT43 7FQ

By registering your interest, you acknowledge our Privacy Policy