Contact Agent

Contact Lynn and Brewster

Contact Lynn and Brewster

Retail

15-17 Castle Street

Ballymena, BT43 7BT

offers around £110,000
  • Status For Sale
  • Property Type Retail
  • Stamp Duty
    Higher amount applies when purchasing as buy to let or as an additional property
    £0 / £5,500*
  • Typical Mortgage
    Click price to use our mortgage calculator
EPC Rating

Description

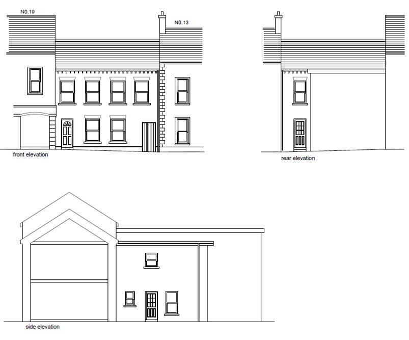
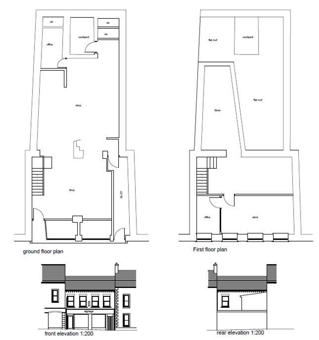
An excellent opportunity to acquire a town centre property with the benefit of full planning permission for change of use from a shop to dwelling (HMO) (application no. LA02/2024/0820/F approved 02/04/2025.

The internal layout provision is for 5 bedrooms with further potential (subject to statutory consents) encompassed with an net internal floor area extending to approximately 1,540 sqft (143.07 sqm).

 

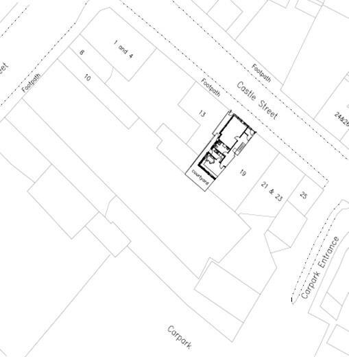
All maps, layouts & plans are for identification purposes only

Land & Property Services Intellectual Property is protected by Crown Copyright and is reproduced with the permission of Land & Property Services under delegated authority from the Controller of Her Majesty’s

Stationery Office,

© Crown Copyright and database right (Licence No.2858 & 2015)

 

Property Location

Show Map

Mortgage Calculator

Disclaimer: The following calculations act as a guide only, and are based on a typical repayment mortgage model. Financial decisions should not be made based on these calculations and accuracy is not guaranteed. Always seek professional advice before making any financial decisions.

Contact Agent

Contact Lynn and Brewster

Contact Lynn and Brewster

Request More Information
Requesting Info about...
15-17 Castle Street, Ballymena, BT43 7BT 15-17 Castle Street, Ballymena, BT43 7BT

By registering your interest, you acknowledge our Privacy Policy