Contact Agent

Contact 360 Properties

Contact 360 Properties

5 Bed Detached Bungalow

15&15A Doctors Road

Ballymena, BT42 4HL

offers in region of £395,000
  • Status For Sale
  • Property Type Detached Bungalow
  • Bedrooms 5
  • Receptions 2
  • Bathrooms 2
  • Heating Oil Central Heating
  • EPC Rating F37 / D59
  • Stamp Duty
    Higher amount applies when purchasing as buy to let or as an additional property
    £9,750 / £29,500*
  • Typical Mortgage
    Click price to use our mortgage calculator
EPC Rating

Key Features & Description

Unique opportunity to purchase bungalow and three bedroom annex.
Situated on a generous 0.75 acre site.
Ideal semi rural location with easy access to A26 & Belfast.
Annex ready for immediate occupancy.
Main bungalow offers fantastic development potential.
Wooden double glazing & oil fired central heating in main bungalow.
uPVC double glazing and LPG fuelled heating in annex.
Description
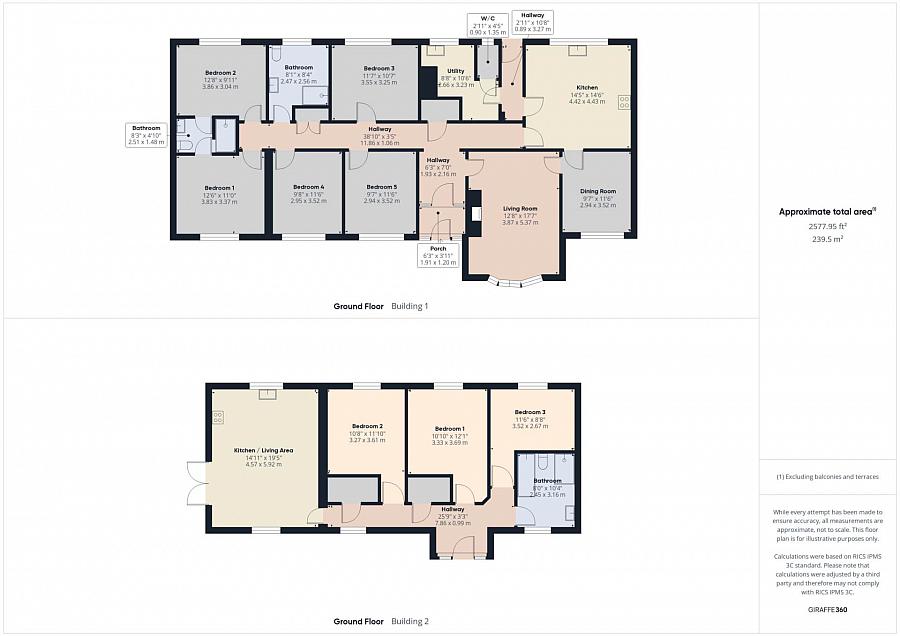
Unique opportunity to purchase a five bedroom detached bungalow, alongside a detached, fully functioning 3 bedroom annex. Situated on a generous 0.75 - acre site, the annex is perfect for extending family living or rental potential, whilst the main bungalow offers the potential to create your dream home. This property is ideal for those wishing to reside in the countryside, whilst only a 5 minute drive to Ballymena town centre, also having access to main commuter links. This property provides both privacy and endless potential for further development. Accommodation includes five bedrooms - with Jack and Jill en-suite, two reception rooms, kitchen, utility and family bathroom. Externally, the property boasts beautiful countryside views, laid in lawns with patio area and mature shrubbery. The main bungalow benefits from Oil fired central heating and annex Bottled LPG, with their own electricity supply respectively. Viewing is essential to appreciate all this property has to offer.

Hall:
56`6` x 12`7`
Cloakroom. With carpet.

Living Room:
17`7`` x 12`8``
Open fire with cast iron inset, tile hearth and Mexican Pine surround. Bay window. Laminate floor.

Dining Room:
11`6`` x 9`7``
Laminate floor.

Kitchen:
14`6` x 14`5`
Range of eye and low level cream shaker style units with beech work top. 1 ½ bowl Stainless Steel sink with drainer bay and mixer tap. Integrated appliances include Hotpoint double oven, gas hob with extractor fan over, fridge/freezer and dishwasher. Partly tiled walls. Linoleum floor.

Utility:
10`6` x 8`8`
Range of eye and low level units with cream work top. Stainless steel sink with drainer bay and mixer tap. Plumbed for washing machine and space for tumble dryer. Linoleum floor.

Bedroom 1:
12`6`` x 11`0``
Built in wardrobe. With carpet.

Jack & Jill En-suite:
9`6` x 6`9`
Three piece suite comprising of built in w/c, vanity wash hand basin, storage and mirror. Heatstore electric shower. Fully tiled walls and linoleum floor.

Bedroom 2:
12`8`` x 9`11``
With carpet.

Bedroom 3:
11`7`` x 10`7``
With carpet.

Bedroom 4:
11`6`` x 9`8``
With laminate floor.

Bedroom 5:
11`6`` x 9`7``
With carpet.

Bathroom:
8`4`` x 8`1``
Four piece suite comprising of low flush w/c,vanity wash hand basin, corner bath and Redring electric shower. Fully tiled walls and linoleum floor.

EXTERNAL

Front: Tarmac driveway with ample space for parking. Laid in lawn with paved patio area and mature shrubbery.

Rear: Annex - see additional brochure.

FREEHOLD

Rates: Approx £2,300 per annum

ANNEX

Hall:
25`9`` x 3`3``
Cloakroom. With carpet.

Kitchen/Living/Diner:
19`5`` x 14`11``
Range of eye and low level cream units with black speckled marble effect worktop. 1 ½ bowl Stainless Steel Sink with drainer bay and mixer tap. Integrated appliances include fridge freezer, Hotpoint oven, microwave and gas hob with Stainless Steel extractor fan over. Linoleum floor.

Bedroom 1:
12`1`` x 10`10``
With carpet.

Bedroom 2:
11`10`` x 10`8``
With carpet.

Bedroom 3:
11`6`` x 8`8``
With carpet.

Bathroom:
10`4`` x 8`0``
Four piece suite comprising of low flush w/c, floating vanity wash hand basin, corner bath with mixer taps and mains shower. Towel radiator. Mermaid board to walls. Waterproof laminate floor.

EXTERNAL

Garden Shed.


what3words /// lamppost.corrode.installs

Notice
Please note we have not tested any apparatus, fixtures, fittings, or services. Interested parties must undertake their own investigation into the working order of these items. All measurements are approximate and photographs provided for guidance only.

Utilities
Electric: Unknown
Gas: Unknown
Water: Unknown
Sewerage: Unknown
Broadband: Unknown
Telephone: Unknown

Other Items
Heating: Oil Central Heating
Garden/Outside Space: Yes
Parking: Yes
Garage: No

Property Location

Show Map

Mortgage Calculator

Disclaimer: The following calculations act as a guide only, and are based on a typical repayment mortgage model. Financial decisions should not be made based on these calculations and accuracy is not guaranteed. Always seek professional advice before making any financial decisions.

Contact Agent

Contact 360 Properties

Contact 360 Properties

Request More Information
Requesting Info about...
15&15A Doctors Road, Ballymena, BT42 4HL 15&15A Doctors Road, Ballymena, BT42 4HL

By registering your interest, you acknowledge our Privacy Policy