Contact Agent

Contact 360 Properties

Contact 360 Properties

3 Bed Townhouse

25 Rosses Meadow

Ballymena, BT42 2SD

offers over £160,000
  • Status For Sale
  • Property Type Townhouse
  • Bedrooms 3
  • Receptions 1
  • Bathrooms 3
  • Heating Oil Central Heating
  • EPC Rating D57 / D68
  • Stamp Duty
    Higher amount applies when purchasing as buy to let or as an additional property
    £700 / £8,700*
  • Typical Mortgage
    Click price to use our mortgage calculator
EPC Rating

Key Features & Description

Beautifully presented three-bedroom town house.
Located in the popular Rosses Meadow development.
Close to local amenities including the Spar, Playpark, and riverside walks.
Open-plan kitchen/diner with separate utility.
Master bedroom with en-suite.
Off-street parking, enclosed rear garden and paved patio area.
Oil fired central heating and uPVC double glazing throughout.
Description
This beautifully presented three-bedroom town house is in the popular Rosses Meadow development, just off the Tullygarley Road in Ballymena. Located close to local amenities including the Spar, Playpark, and riverside walks. This property offers bright and spacious living throughout, including master bedroom with en-suite, an open-plan kitchen/diner, separate utility, living room, and two additional bathrooms. Outside, you`ll find off-street parking, brick pavia to front and a fully enclosed rear garden with a laid lawn and a paved patio area. Benefiting from oil-fired central heating and uPVC double glazing throughout. Perfect for first-time buyers or young families. Viewings are strictly by appointment early viewing is highly recommended.



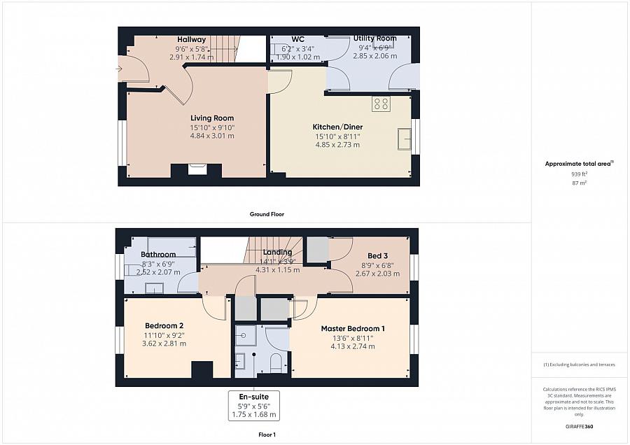
GROUND FLOOR

Hall:
9`6`` x 5`8`
Laminate floor. With carpet on stairs.

Kitchen/Diner:
15`10` x 8`11``
Range of eye and low level grey shaker style units with marble effect work top and tile splashback. Ceramic sink with drainer bay and mixer tap. Integrated appliances include Logik oven and Schott hob with extractor fan over, fridge/freezer and dishwasher. Laminate floor.

Utility Room:
9`4` x 6`9`
Low level grey shaker style units and pantry with wooden effect work top. Stainless steel sink with drainer bay and mixer tap. Plumbed for washing machine. Laminate floor.

W/C:
6`2`` x 3`4`
White low flush w/c. Laminate floor.

Living Room:
15`10` x 9`10`
Gas feature fire with wooden surround, slate inset and tile hearth. Storage cupboard. Laminate floor.



FIRST FLOOR

Master Bedroom:
13`6` x 8`11`
Feature panelling. Storage cupboard. With carpet.

En-suite:
5`9`` x 5`6``
Three piece suite comprising of low flush w/c, pedestal wash hand basin and mains shower. Tile radiator. Mosaic style vinyl click.

Bedroom 2:
11`10` x 9`2`
Open plan wardrobes. With carpet.

Bedroom 3:
8`8` x 6`8`.
Storage cupboard. With carpet.

Bathroom:
8`3` x 6`9`
Three piece suite comprising of low flush w/c, pedestal wash hand basin and bath with mains shower over. Tile floor.


EXTERNAL

Front: Brick pavia and communal parking area to front.

Rear: Fully enclosed bound by fence with laid in lawn and paved patio area.

FREEHOLD

Management Charge: Approx £800 per annum.

Rates: Approx £1,242 per annum.



Notice
Please note we have not tested any apparatus, fixtures, fittings, or services. Interested parties must undertake their own investigation into the working order of these items. All measurements are approximate and photographs provided for guidance only.

Rates Payable
Mid & East Antrim, For Period April 2025 To March 2026 £1,242.00

Service Charge
£800.00 Yearly

Utilities
Electric: Unknown
Gas: Unknown
Water: Unknown
Sewerage: Unknown
Broadband: Unknown
Telephone: Unknown

Other Items
Heating: Oil Central Heating
Garden/Outside Space: Yes
Parking: Yes
Garage: No

Broadband Speed Availability

Ultrafast

Potential Speeds for 25 Rosses Meadow

Max Download
1800
Mbps
Max Upload
220
Mbps
The speeds indicated represent the maximum estimated fixed-line speeds as predicted by Ofcom. Please note that these are estimates, and actual service availability and speeds may differ.

Property Location

Show Map

Mortgage Calculator

Disclaimer: The following calculations act as a guide only, and are based on a typical repayment mortgage model. Financial decisions should not be made based on these calculations and accuracy is not guaranteed. Always seek professional advice before making any financial decisions.

Contact Agent

Contact 360 Properties

Contact 360 Properties

Request More Information
Requesting Info about...
25 Rosses Meadow, Ballymena, BT42 2SD 25 Rosses Meadow, Ballymena, BT42 2SD

By registering your interest, you acknowledge our Privacy Policy