Contact Agent

Contact Edmondson Estates

Contact Edmondson Estates

5 Bed Site

Building Site at, 19 Old Cushendun Road

Newtowncrommelin, Ballymena, BT43 6RJ

offers around £55,000
  • Status For Sale
  • Property Type Site
  • Bedrooms 5
  • Receptions 2
  • Interior Area 914 sqft
  • Stamp Duty
    Higher amount applies when purchasing as buy to let or as an additional property
    £0 / £2,750*
  • Typical Mortgage
    Click price to use our mortgage calculator

Key Features & Description

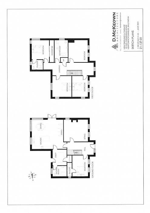
  • Site of Proposed Development: 19 Old Cushendun Road, Newtowncrommelin, Ballymena
    Description of Proposal: New dwelling and garage.
    Application Number: LA02/2/2021/0676/F
    Date of Approval: 29th September 2021

    Please Note: Edmondson Estates advise that any potential Purchasers should make/commission their own inspections if they feel it is necessary. All areas noted are approximate; all maps are not to scale and for illustration purposes only.
  • Description
    Edmondson Estates are delighted to bring to market this lovely elevated site located off the Old Cushendun Road, within the village of Newtowncrommelin. This site is ideal for a family seeking rural life but with easy access Ballymena, and further afield. The site is accessed directly off the Old Cushendun Road and set on a very pleasant site of circa 0.2 acres, with views over open countryside.
    Full Planning Permission has been granted for a Five Bedroom Detached House and Detached Garage.

    Property Location

    Show Map

    Mortgage Calculator

    Disclaimer: The following calculations act as a guide only, and are based on a typical repayment mortgage model. Financial decisions should not be made based on these calculations and accuracy is not guaranteed. Always seek professional advice before making any financial decisions.

    Contact Agent

    Contact Edmondson Estates

    Contact Edmondson Estates

    Request More Information
    Requesting Info about...
    Building Site at, 19 Old Cushendun Road, Newtowncrommelin, Ballymena, BT43 6RJ Building Site at, 19 Old Cushendun Road, Newtowncrommelin, Ballymena, BT43 6RJ

    By registering your interest, you acknowledge our Privacy Policy