Contact Agent

Contact Colin Graham Residential

Contact Colin Graham Residential

Commercial

14-16 Church Street

Ballymena, BT43 6DE

offers over £134,950
  • Status For Sale
  • Property Type Commercial
  • Interior Area 2200 sqft
  • EPC Rating D87 -
  • Stamp Duty
    Higher amount applies when purchasing as buy to let or as an additional property
    £199 / £6,947*
  • Typical Mortgage
    Click price to use our mortgage calculator
EPC Rating

Key Features & Description

Two Storey Commercial Premises
Extends To c.5,800 Sq Ft
Ground Floor Retail Unit & Showrooms
Range Of First Floor Offices / Store Rooms
Prominent Road Frontage Position
Ready For Immediate Occupation
Description
Substantial investment opportunity, comprising a two storey commercial premises, extending to c.5,800 sq ft, encompassing ground floor retail unit, generous sized showrooms, range of offices/store rooms, bathroom facilities, and access to service yard, prominently situated on Church Street, Ballymena.

Occupying a prime position on Ballymena´s main retail pitch, in close proximity to Dougies Goodies, McKillens Footwear, The Music Rooms, Santander, Wyse Byse, Elite Lighting, Style & Sport and Wallaces, the premises is a short drive from main commuter networks via the Galgorm Road, as well as transport connections to Belfast, several satellite villages, and the Causeway Coast.

The property is ready for immediate occupation and we recommend early viewing to avoid disappointment.

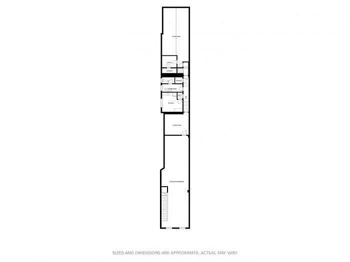
Rooms

ACCOMMODATION
GROUND FLOOR
RETAIL UNIT 82'6" X 17'4" (wps) (25.15m X 5.29m (wps)) Aluminium framed, glazed front door with matching picture window to front elevation. Stairwell leading to first floor. Access to under stairs store. Ramp leading to:
SHOWROOM 40'3" X 18'4" (12.27m X 5.59m) Light and power. Access to built in store. Fire screen divider. Open access into second showroom.
FURNISHED CLOAKROOM White two piece suite comprising wash hand basin and WC. Tiled floor.
STORE 41'1" X 7'5" (wps) (12.53m X 2.27m (wps)) Fire proofed insulation to walls. Light and power. Double doors leading to rear yard.
SHOWROOM 2 31'2" X 16'0" (9.52m X 4.89m) Stairwell leading to first floor. Access to under stairs store.
STORE 15'11" X 7'8" (4.86m X 2.34m) Light and power points.
OFFICE 7'6" X 4'9" (2.31m X 1.46m) Light and power points.
FIRST FLOOR
SHOWROOM 58'0" X 16'0" (wps) (17.70m X 4.89m (wps)) Access into:
OFFICE / STORE ROOM 16'1" X 13'2" (4.92m X 4.02m)
HALLWAY
KITCHEN WITH INFORMAL DINING AREA 12'2" X 11'6" (3.73m X 3.53m) Range of high and low level storage units. Stainless steel sink unit with draining bay. Space for fridge freezer.
CLOAKROOM Twin wash hand basin's. Access into:
SEPARATE WC White WC.
REAR HALL
REAR OFFICE & STORE ROOM 39'7" X 16'9" (wps) (12.07m X 5.11m (wps)) Light and power points. Access into built in store.
EXTERNAL Electric operated roller shutter to front.
Right of way access to service yard/alleyway.
NAV - £14,100
ESTIMATED RATES - £8,751.81
IMPORTANT NOTE TO ALL POTENTIAL PURCHASERS Please note that we have not tested the services or systems in this property. Purchasers should make/commission their own inspections if they feel it is necessary.

Property Location

Show Map

Mortgage Calculator

Disclaimer: The following calculations act as a guide only, and are based on a typical repayment mortgage model. Financial decisions should not be made based on these calculations and accuracy is not guaranteed. Always seek professional advice before making any financial decisions.

Contact Agent

Contact Colin Graham Residential

Contact Colin Graham Residential

Request More Information
Requesting Info about...
14-16 Church Street, Ballymena, BT43 6DE 14-16 Church Street, Ballymena, BT43 6DE

By registering your interest, you acknowledge our Privacy Policy