Contact Agent
Contact McAfee Properties (Ballymoney)
Retail
17A Church Street
* Open To Offers *, Ballymoney, BT53 6HS
annually
£7,000
- Status Let Agreed
- Property Type Retail
Key Features & Description
Prominent shop/retail unit with spacious retail/showroom area.
Ground floor unit suitable for a range of uses (subject to any necessary approvals).
Prime town centre location.
Nearby public carpark.Kitchen/store and w.c facilities.
Description
Lease Details
Rent:
open to offers.
Term:
Negotiable.
Rent Review:
Every 3 Years.
Rates:
Tenants Responsibility.
Insurance:
Landlord to insure, tenant to reimburse.
Repairs:
Full repairing lease.
VAT:
All outgoings and rentals are quoted exclusive of but may be liable to VAT.
NAV:
£3,950
VIEWING:
Strictly by appointment through the agent.
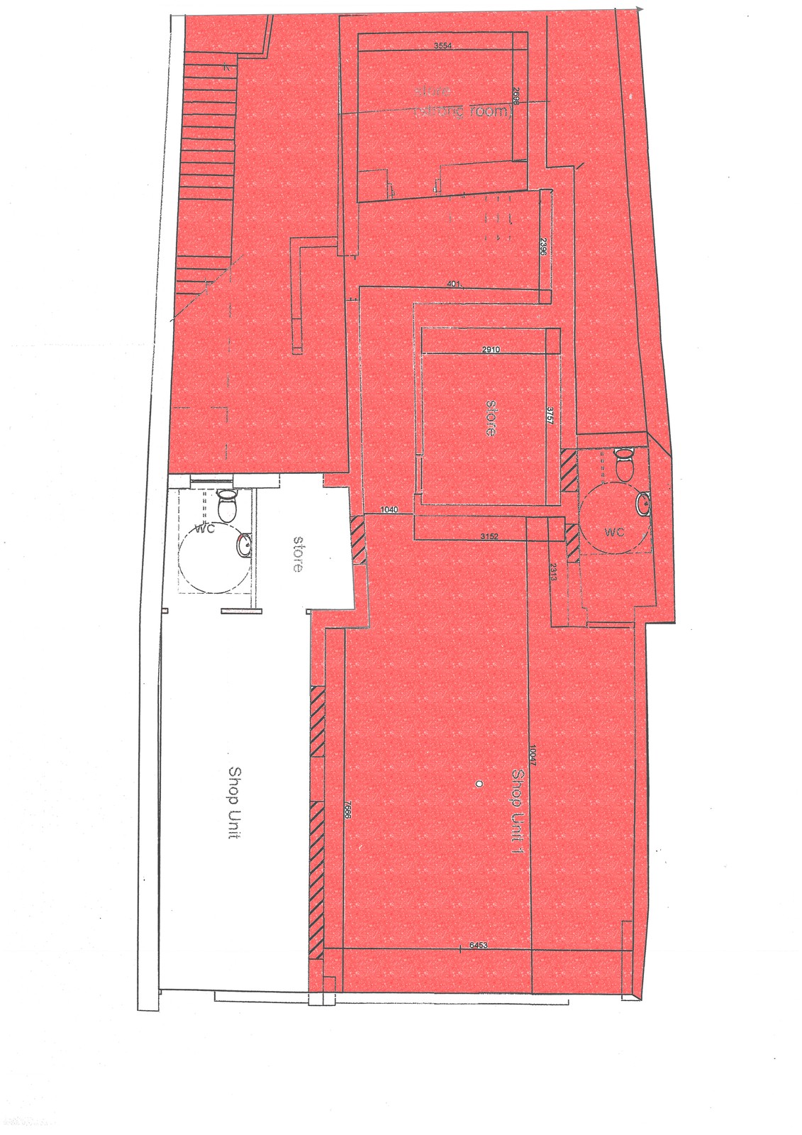
Rooms
Showroom/Retail Area 25' 6" X 10' 10" (7.77m X 3.30m)
Wood laminate flooring.
Separate w.c 8' 4" X 5' 2" (2.54m X 1.57m)
With w.c, wash hand basin.
Kitchen / Store 8' 3" X 6' 10" (2.51m X 2.08m)
With shelving & sink unit, storage cupboards, pedestrian door to rear (access off carpark)
Broadband Speed Availability
Potential Speeds for 17A Church Street
Max Download
10000
Mbps
Max Upload
10000
MbpsThe speeds indicated represent the maximum estimated fixed-line speeds as predicted by Ofcom. Please note that these are estimates, and actual service availability and speeds may differ.
Property Location
Contact Agent
Contact McAfee Properties (Ballymoney)
Request More Information
Requesting Info about...
17A Church Street, * Open To Offers *, Ballymoney, BT53 6HS
By registering your interest, you acknowledge our Privacy Policy
By registering your interest, you acknowledge our Privacy Policy