Contact Agent

Contact McAfee Properties (Ballymoney)

Contact McAfee Properties (Ballymoney)

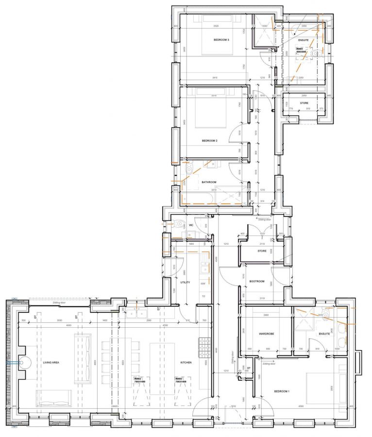
3 Bed Detached Bungalow

New Build , 89 Benvardin Road

Ballymoney, Ballybogy, BT53 ENS

asking price £395,000
  • Status Under Offer
  • Property Type Detached Bungalow
  • Bedrooms 3
  • Receptions 1
  • Heating Oil
  • Stamp Duty
    Higher amount applies when purchasing as buy to let or as an additional property
    £9,750 / £29,500*
  • Typical Mortgage
    Click price to use our mortgage calculator

Key Features & Description

Oil fired heating (Grant vortex boiler).
Upvc double glazed windows.
Composite front and back doors.
The property will have the internal walls painted white.
Wired for broadband.
Underfloor heating.
Stoned driveway with parking area.
Generous electrical specification.
Gardens will be levelled and topsided.
Constructed by the highly regarded CML building.
Kitchen illustration provided.
Planning permission has been granted for a detached double garage with 1st floor lobby/office. Price: TBA
PC Sum allowance £20,000
Description

We are delighted to offer for sale this luxury and spacious high quality new build bungalow set on a spacious choice rural site in a super convenient location approximately 0.3 miles from Ballybogy and centrally located to Ballymoney, Coleraine, Bushmills and the famous North Antrim Coast.

This spacious contemporary property constructed to the highest standards offers well proportioned accommodation to include a feature open plan kitchen/living/dining room and 3 bedrooms of which 2 have ensuites.

In addition the property is located a short distance to many tourist attractions including The Dark Hedges (Game of Thrones fame), The Bushmills Distillery, The Giants Causeway and the North Antrim Coast with its numerous golf courses and beaches.

This superb property provides generous PC allowances of £20,000. Seldom does a new build bungalow come on the market in such a convenient and desirable location and early viewing is highly recommended.

Viewing is strictly by appointment only.

Property Location

Show Map

Mortgage Calculator

Disclaimer: The following calculations act as a guide only, and are based on a typical repayment mortgage model. Financial decisions should not be made based on these calculations and accuracy is not guaranteed. Always seek professional advice before making any financial decisions.

Directions

Leave Ballymoney town centre along the Coleraine road and continue onto the Portrush road and then onto the Ballybogey road. Continue through the roundabout and proceed for approximately 4 miles to Ballybogey. Turn right in Ballybogey onto the Benvardin road and the property is located after approximately 0.3 miles on the left hand side.

Contact Agent

Contact McAfee Properties (Ballymoney)

Contact McAfee Properties (Ballymoney)

Request More Information
Requesting Info about...
New Build , 89 Benvardin Road, Ballymoney, Ballybogy, BT53 ENS New Build , 89 Benvardin Road, Ballymoney, Ballybogy, BT53 ENS

By registering your interest, you acknowledge our Privacy Policy