Land
Site At Galdanagh Crossroads
Dunloy, Ballymoney, BT44 9DD
offers over
£90,000
- Status For Sale
- Property Type Land
-
Stamp Duty
Higher amount applies when purchasing as buy to let or as an additional property£0 / £4,500*
Key Features & Description
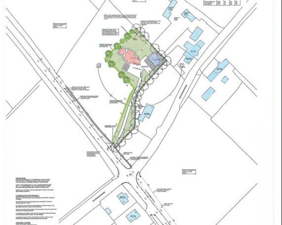
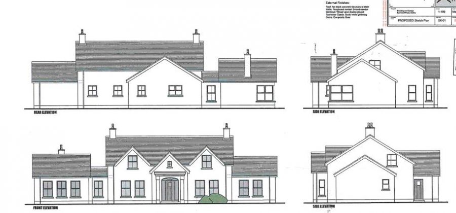
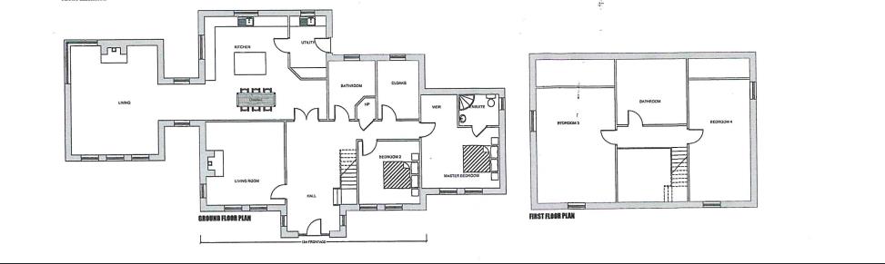
Building Site with Full Planning Permission
Plans For A Luxury Detached House and Garage
Own Private Access Off The Garryduff Road
Water & Electricity Located Close By
Extends to Circa 0.3 Acre
Excellent Location For Commuting To Ballymoney, Ballymena and Beyond
Description
Located on the Garryduff Road just outside the charming village of Dunloy, Ballymoney, this superior building site presents a unique opportunity for those looking to invest in a tranquil setting. The site measures circa 0.3 acre and has been marked out to provide clarity when viewers visit the site.
One of the standout features of this site is the private access off the Garryduff Road which is a rarity in todays market along with full planning for a luxury detached house.
Situated in a picturesque area known for its stunning countryside and friendly community, making it an ideal location for those seeking a peaceful lifestyle away from the hustle and bustle of town living. The surrounding landscape is rich with natural greenery. Services are located close by which will be attractive to all perspective purchasers.
This site is conveniently located, with easy access to local amenities and services in Ballymoney, which is just a short drive away. Here, you will find shops, schools, and healthcare facilities, ensuring that all your daily needs are met.
Contact us today for additional information or planning details.
Located on the Garryduff Road just outside the charming village of Dunloy, Ballymoney, this superior building site presents a unique opportunity for those looking to invest in a tranquil setting. The site measures circa 0.3 acre and has been marked out to provide clarity when viewers visit the site.
One of the standout features of this site is the private access off the Garryduff Road which is a rarity in todays market along with full planning for a luxury detached house.
Situated in a picturesque area known for its stunning countryside and friendly community, making it an ideal location for those seeking a peaceful lifestyle away from the hustle and bustle of town living. The surrounding landscape is rich with natural greenery. Services are located close by which will be attractive to all perspective purchasers.
This site is conveniently located, with easy access to local amenities and services in Ballymoney, which is just a short drive away. Here, you will find shops, schools, and healthcare facilities, ensuring that all your daily needs are met.
Contact us today for additional information or planning details.
Property Location
Mortgage Calculator
Contact Agent
Contact AMG Property
Request More Information
Requesting Info about...
Site At Galdanagh Crossroads, Dunloy, Ballymoney, BT44 9DD
By registering your interest, you acknowledge our Privacy Policy
By registering your interest, you acknowledge our Privacy Policy