3 Bed Detached House

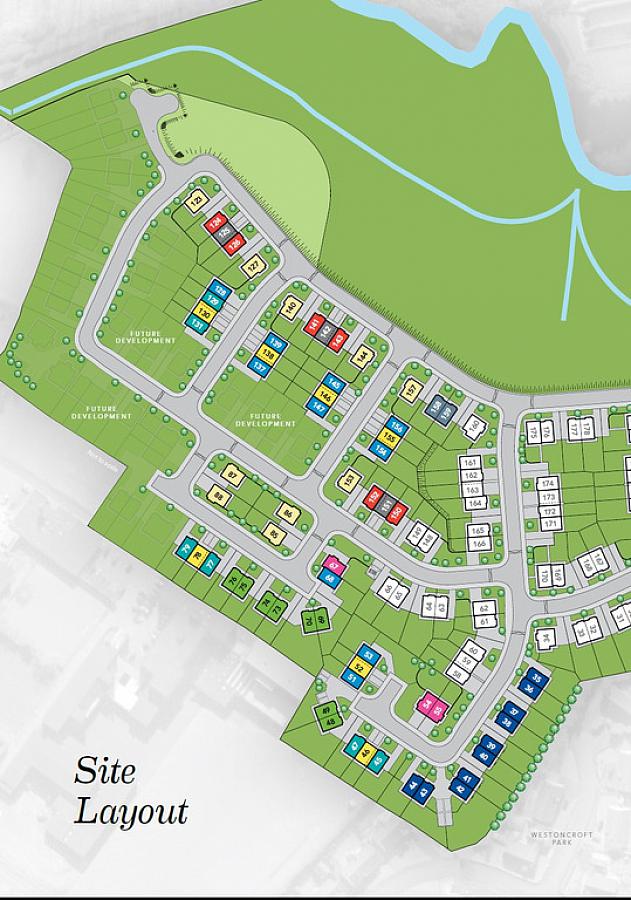
Site 140 (The Crozier) Foxleigh Meadow, Charlotte Street

Ballymoney, BT53 6AZ

price £232,950
  • Status For Sale
  • Property Type Detached
  • Bedrooms 3
  • Receptions 1
  • Bathrooms 2
  • Heating GAS FIRED CENTRAL HEATING
  • Stamp Duty
    Higher amount applies when purchasing as buy to let or as an additional property
    £2,159 / £13,807*
  • Typical Mortgage
    Click price to use our mortgage calculator

Key Features & Description

NHBC 10 YEAR STRUCTURAL WARRANTY
2 YEAR DEFECTS LIABILITY BY HAGAN HOMES
CONVENIENTLY LOCATED TO TOWN CENTRE, SCHOOLS, SHOPS & ALL LOCAL AMENITIES
uPVC DOUBLE GLAZING
GAS FIRED CENTRAL HEATING
FINISHED TO A HIGH TURNKEY SPECIFICATION
3 BED DETACHED HOUSE APPROX. 968 SQ FT
Description
The Camley - 3 Bed Detached House - Approx. 968 Sq ft.

Property Location

Show Map

Mortgage Calculator

Disclaimer: The following calculations act as a guide only, and are based on a typical repayment mortgage model. Financial decisions should not be made based on these calculations and accuracy is not guaranteed. Always seek professional advice before making any financial decisions.

Request More Information
Requesting Info about...
Site 140 (The Crozier) Foxleigh Meadow, Charlotte Street, Ballymoney, BT53 6AZ Site 140 (The Crozier) Foxleigh Meadow, Charlotte Street, Ballymoney, BT53 6AZ

By registering your interest, you acknowledge our Privacy Policy