Commercial
51 Lisburn Road
Ballynahinch, BT24 8TT
price
£169,250
- Status For Rent
- Property Type Commercial
-
Stamp Duty
Higher amount applies when purchasing as buy to let or as an additional property£885 / £9,348*
Description
TO LET
Warehouse/Manufacturing premises
TO LET
* Manufacturing/industrial accommodation with ancillary office accommodation, comprising
c. 37,620 sq ft
* Ease of access to the wider motorway network via Junction 6 (Saintfield Road) of the M1.
Alternative access to Belfast via A24.
* Nearby connection to A1 to Dublin via Hillsborough
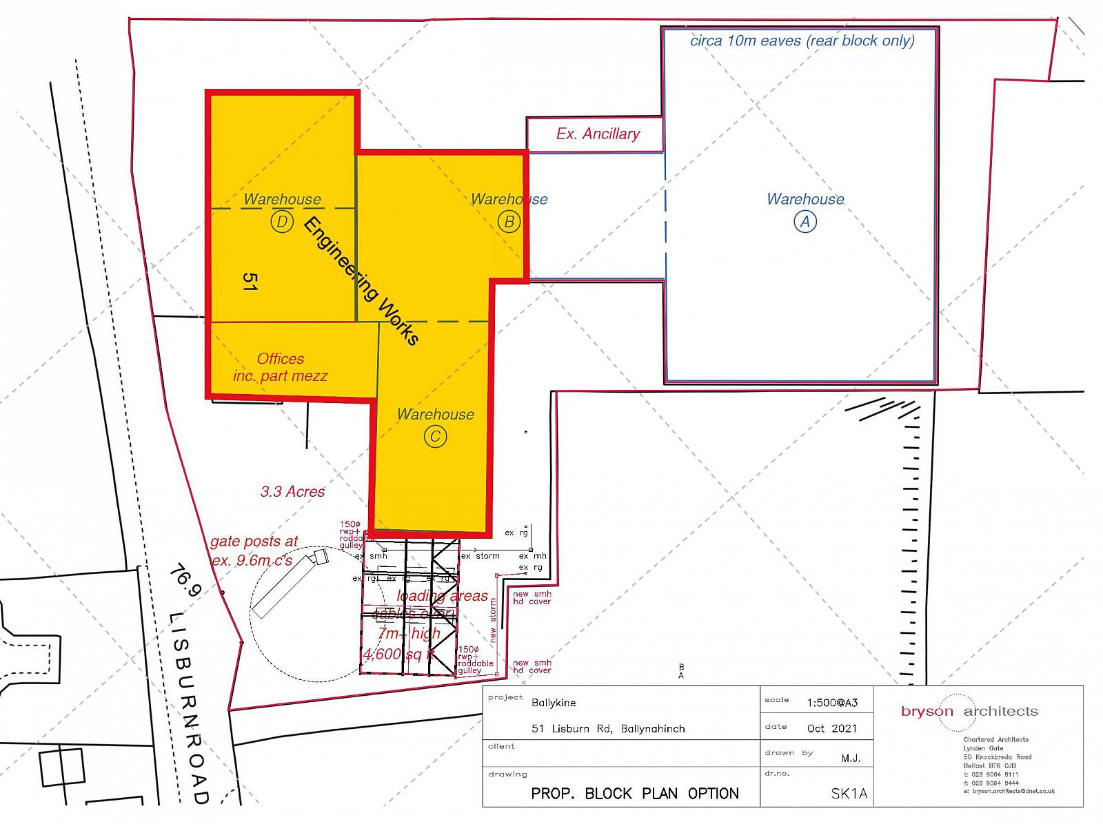
The subject forms part of the industrial/manufacturing holding at 51 Lisburn Road Ballynahinch.
The facility comprises interlinked warehouses together with office block and covered
loading bay, yard space and car parking.
The buildings are constructed of steel portal frame with external cladding and
blockwork to the lower sections, double pitched roofs with good provision of electrically
operated roller shutter doors around the perimeter and multiple overhead cranes.
There are a variety of eaves height throughout of around 6m
Warehouse B
c 12292 sq ft / 1142 sq m
Warehouse C
8,814 sq ft / 819 sq m
Warehouse D
11,164 sq ft / 1037sq m
Office Block
5,348 sq ft / 497 sq m
Lease details
Term : Negotiable, subject to a minimum of 5 years
Rent : £4.50 psf, exclusive
Repairs & Insurance : Tenant responsible for all repairs and reimbursement of the building insurance premium to the Landlord.
Service Charge : Levied to cover maintenance and cleaning of communal areas
Rates
To be assessed on occupation
Rate in pound 2025/26 £0.600784
Part of the property is classified by Land & Property Services as an Industrial Hereditament. We would advise prospective tenants to make their own enquiries in relation to their rating liability.
VAT
We understand the property is not registered for Value Added Tax.
CONTACT
For further information or to arrange a viewing contact joint agents :
Ed Falloon
028 9266 3396
ed@falloonestateagents.com
Falloon Estate Agents
11 Smithfield Square
Lisburn
BT28 1TH
www.falloonestateagents.com
Brian Wilkinson
028 9050 0100
bw@mckibbin.co.uk
McKibbin Commercial
One Lanyon Quay
Belfast
BT1 3LG
www.mckibbin.co.uk
LOCATION
The subject property is located on the Lisburn Road on the edge of Ballynahinch, 9 miles from the M1 Motorway at Saintfield Road (Junction 6) on the main Belfast-Dublin transport corridor, 17 miles from Belfast, 19.5 miles from Belfast Port and 33 miles from Belfast International Airport.
The immediate area comprises a mix of commercial and residential properties and agricultural uses.
Warehouse/Manufacturing premises
TO LET
* Manufacturing/industrial accommodation with ancillary office accommodation, comprising
c. 37,620 sq ft
* Ease of access to the wider motorway network via Junction 6 (Saintfield Road) of the M1.
Alternative access to Belfast via A24.
* Nearby connection to A1 to Dublin via Hillsborough
The subject forms part of the industrial/manufacturing holding at 51 Lisburn Road Ballynahinch.
The facility comprises interlinked warehouses together with office block and covered
loading bay, yard space and car parking.
The buildings are constructed of steel portal frame with external cladding and
blockwork to the lower sections, double pitched roofs with good provision of electrically
operated roller shutter doors around the perimeter and multiple overhead cranes.
There are a variety of eaves height throughout of around 6m
Warehouse B
c 12292 sq ft / 1142 sq m
Warehouse C
8,814 sq ft / 819 sq m
Warehouse D
11,164 sq ft / 1037sq m
Office Block
5,348 sq ft / 497 sq m
Lease details
Term : Negotiable, subject to a minimum of 5 years
Rent : £4.50 psf, exclusive
Repairs & Insurance : Tenant responsible for all repairs and reimbursement of the building insurance premium to the Landlord.
Service Charge : Levied to cover maintenance and cleaning of communal areas
Rates
To be assessed on occupation
Rate in pound 2025/26 £0.600784
Part of the property is classified by Land & Property Services as an Industrial Hereditament. We would advise prospective tenants to make their own enquiries in relation to their rating liability.
VAT
We understand the property is not registered for Value Added Tax.
CONTACT
For further information or to arrange a viewing contact joint agents :
Ed Falloon
028 9266 3396
ed@falloonestateagents.com
Falloon Estate Agents
11 Smithfield Square
Lisburn
BT28 1TH
www.falloonestateagents.com
Brian Wilkinson
028 9050 0100
bw@mckibbin.co.uk
McKibbin Commercial
One Lanyon Quay
Belfast
BT1 3LG
www.mckibbin.co.uk
LOCATION
The subject property is located on the Lisburn Road on the edge of Ballynahinch, 9 miles from the M1 Motorway at Saintfield Road (Junction 6) on the main Belfast-Dublin transport corridor, 17 miles from Belfast, 19.5 miles from Belfast Port and 33 miles from Belfast International Airport.
The immediate area comprises a mix of commercial and residential properties and agricultural uses.
Broadband Speed Availability
Potential Speeds for 51 Lisburn Road
Max Download
1800
Mbps
Max Upload
1000
MbpsThe speeds indicated represent the maximum estimated fixed-line speeds as predicted by Ofcom. Please note that these are estimates, and actual service availability and speeds may differ.
Property Location
Contact Agent
Contact Falloon Estate Agents
Request More Information
Requesting Info about...
51 Lisburn Road, Ballynahinch, BT24 8TT
By registering your interest, you acknowledge our Privacy Policy
By registering your interest, you acknowledge our Privacy Policy