Contact Agent
Contact Shooter Property Services (Banbridge)
Building Site
Building Site Gall Bog Road
Banbridge, BT32 3SY
from
£75,000
- Status For Sale
- Property Type Building Site
-
Stamp Duty
Higher amount applies when purchasing as buy to let or as an additional property£0 / £3,750*
Key Features & Description
Circa 1 acre building site
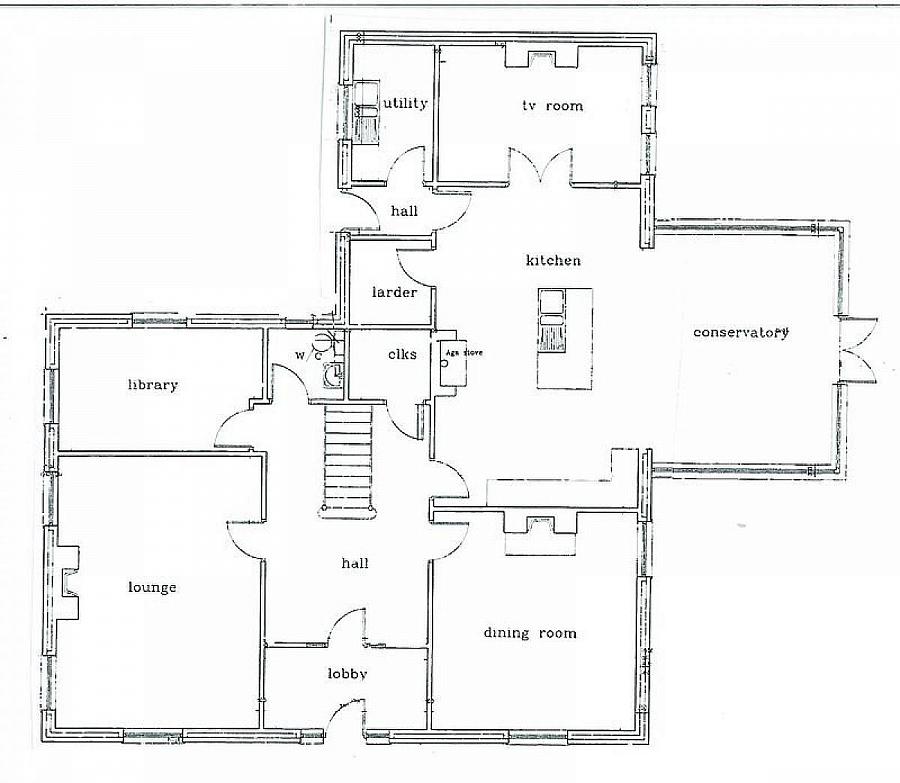
Full approval for a c. 3,500sqft, 2 storey dwelling and detached garage
Foundations laid for deatached garage
Planning reference Q/2007/0466/RM
Excellent rural views
Contact selling agent for further information
Description
Approximately 1 Acre Building Site With Full Planning Approval
A delightful building site with full approval for a c. 3,500sqft, 2 storey dwelling and detached garage. Occupying a spacious site with attractive views in both directions along the valley in which it is situated.
From Banbridge to A1 north for 1/2 mile and take right into the Waringsford Road. Go approximately 3 miles and take left into Gall Bog Road and site is along the Gall Bog Road and the right hand side.
Approximately 1 Acre Building Site With Full Planning Approval
A delightful building site with full approval for a c. 3,500sqft, 2 storey dwelling and detached garage. Occupying a spacious site with attractive views in both directions along the valley in which it is situated.
From Banbridge to A1 north for 1/2 mile and take right into the Waringsford Road. Go approximately 3 miles and take left into Gall Bog Road and site is along the Gall Bog Road and the right hand side.
Property Location
Mortgage Calculator
Contact Agent
Contact Shooter Property Services (Banbridge)
Request More Information
Requesting Info about...
Building Site Gall Bog Road, Banbridge, BT32 3SY
By registering your interest, you acknowledge our Privacy Policy
By registering your interest, you acknowledge our Privacy Policy