Contact Agent

Contact Robert Wilson Estate Agency (Moira)

Contact Robert Wilson Estate Agency (Moira)

Approx 25m S Of, 22 Moorestown Road

Banbridge, BT32 4PN

offers around £140,000
  • Status For Sale
  • Stamp Duty
    Higher amount applies when purchasing as buy to let or as an additional property
    £300 / £7,300*
  • Typical Mortgage
    Click price to use our mortgage calculator

Description

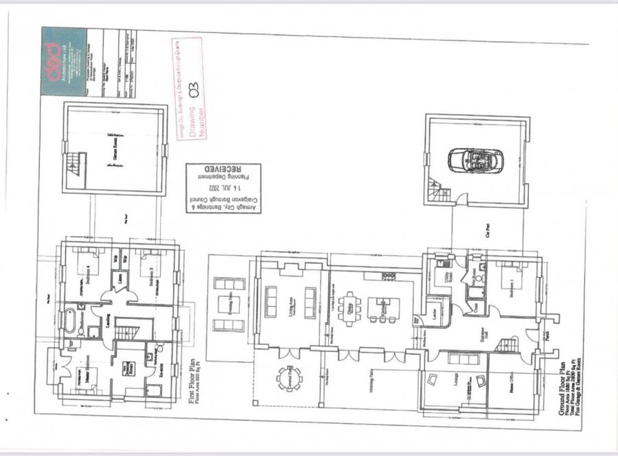
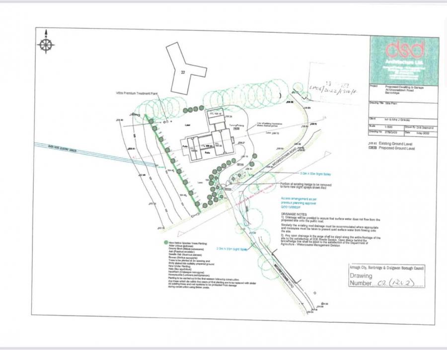
Fantastic building site circa 0.67 acres with full planning permission for a 4 bedroom house and garage.

Full details are available from the Moira office.

Contact number 02892613100.

https://planningregister.planningsystemni.gov.uk/application/663595

 

Property Location

Show Map

Mortgage Calculator

Disclaimer: The following calculations act as a guide only, and are based on a typical repayment mortgage model. Financial decisions should not be made based on these calculations and accuracy is not guaranteed. Always seek professional advice before making any financial decisions.

Contact Agent

Contact Robert Wilson Estate Agency (Moira)

Contact Robert Wilson Estate Agency (Moira)

Request More Information
Requesting Info about...
Approx 25m S Of, 22 Moorestown Road, Banbridge, BT32 4PN Approx 25m S Of, 22 Moorestown Road, Banbridge, BT32 4PN

By registering your interest, you acknowledge our Privacy Policy