Building Plot / Land
Hamilton Road (Lot 1), 41-43 Hamilton Road
Bangor, BT20 4LF
offers in region of
£900,000
- Status For Sale
- Property Type Building Plot / Land
-
Stamp Duty
Higher amount applies when purchasing as buy to let or as an additional property£35,000 / £80,000*
Key Features & Description
Development Site Extending To Include The Earl Haig Memorial Hall
Site Zoned For Commercial / Residential Use
Prime City Centre Location
Sale By Formal Tender
Formal Tenders To Be Received by 12:00pm on 24th September
Contact Geoff Thompson For More Information
Description
LOCATION The site extends to circa. 1 acre and occupies a plot of land opposite the junction of Hamilton Road and Park Avenue and includes the Earl Haig Memorial Hall. Ward Park lies to the south-east on the opposite side of the road, whilst Springfield Avenue, which houses several private residential properties runs parallel to the rear of the site. The development site is laid out in grass with tarmac paths which facilitate pedestrian access between Springfield Avenue and Hamilton Road.
PLANNING POTENTIAL The vendors have engaged the services of Gravis Planning to assess the development potential of the site area. The report is available on request.
In summary, given that the site is located within the settlement limit, Bangor City Centre and a designated development opportunity site, there are a range of land uses which would be considered acceptable in principle on this site. This includes both residential and non-residential land uses (e.g. community, retail, leisure, tourism and businesses), subject to meeting other planning policy/design requirements.
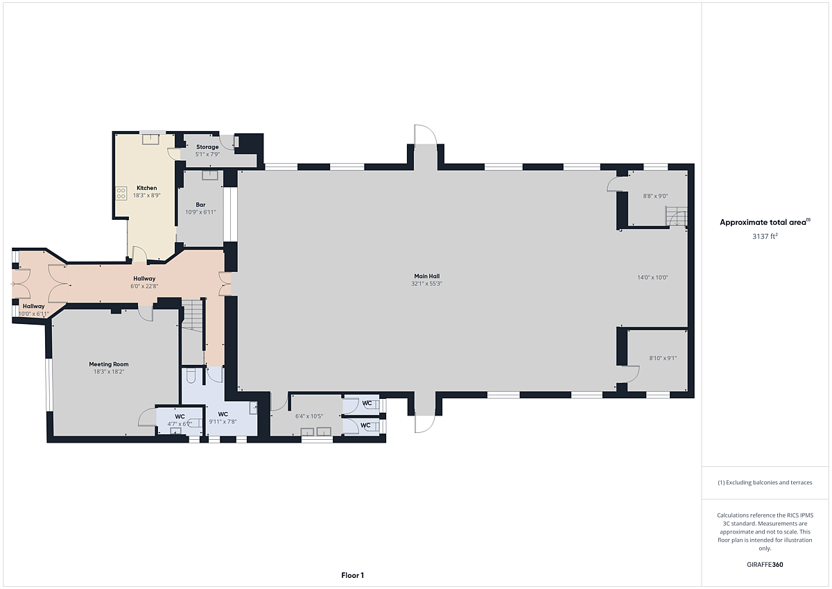
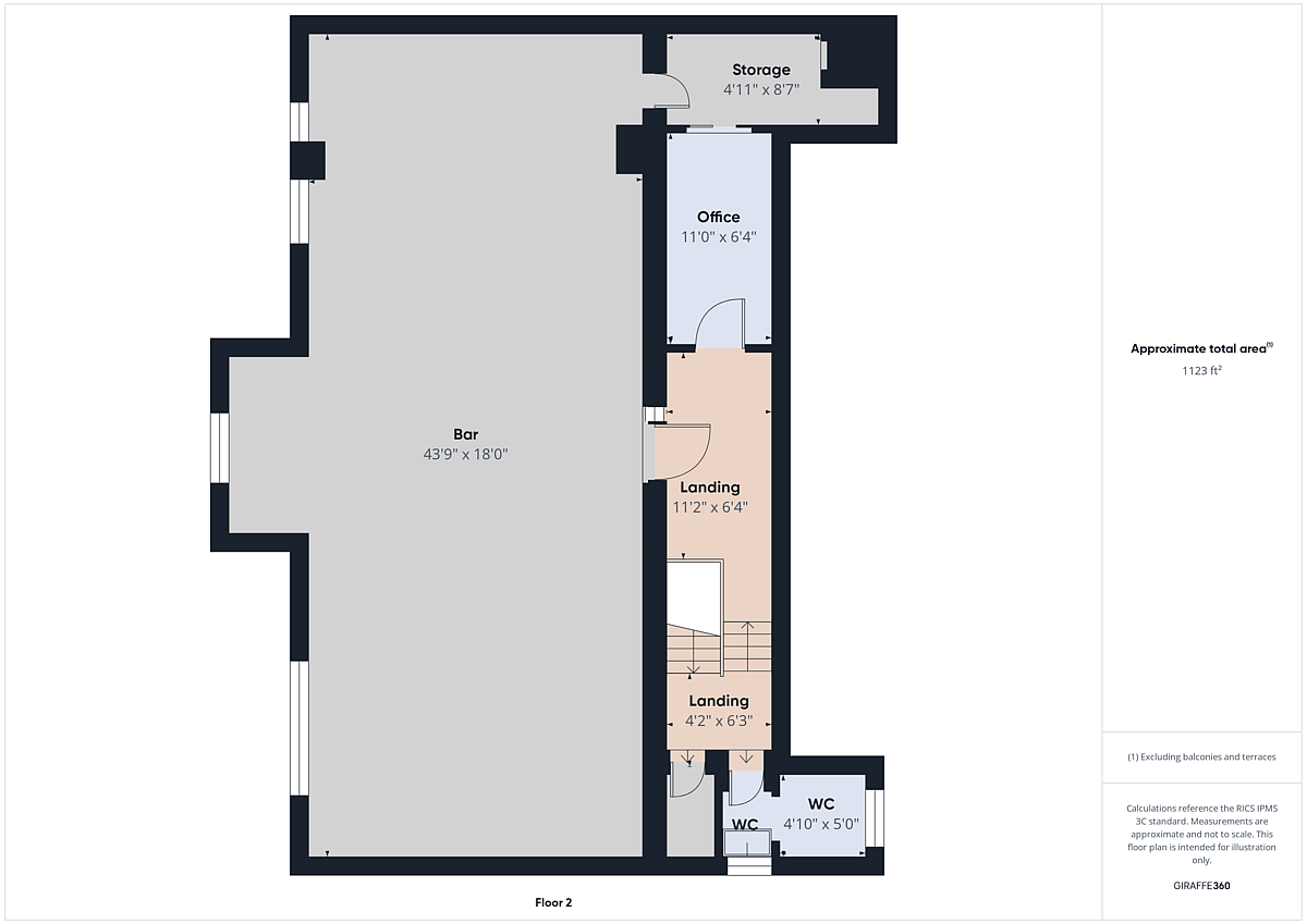
The Earl Haig Memorial Hall was built in 1933 for The Royal British Legion with the Bangor Branch operating from there until recently. The ground floor comprises a main hall with a bar, kitchen, toilets and a meeting room. The first floor features a second bar, an office and additional storage.
The building provides great potential for renovation or redevelopment subject to relevant planning permissions. The property is located in the heart of Bangor within walking distance to transport links and Ward Park.
CONSIDERATIONS The site is within Bangor Town Centre and within a draft Area of Townscape Character.
Within a proposed Area of Townscape Character particular emphasis should be given to the scale, massing and design of proposals taking cues from the character of the immediate area - consisting of a mix of established residential dwellings and former dwellings converted into offices.
Buildings would be expected to respect the previous building line along Hamilton Road and it is considered that this frontage could support three storey development. Any development proposal should be mindful of the topography of the site as it slopes gently from Hamilton Road to the rear of the site on Springfield Avenue. Design should respect the adjacent residential nature of Springfield Avenue to avoid any sense of over-dominance, massing and loss of light.
Access to the site would require to be provided from Springfield Avenue.
The draft Belfast Metropolitan Plan designates the site within an area of parking restraint.
PRICE Offers in the region of £900,000 are invited by formal tender. Tender deadline - 12:00pm Wednesday 24th September 2025
FURTHER INFORMATION A Tender Pack is available on request. For further information please contact our Bangor office on 028 91479797.
LOCATION The site extends to circa. 1 acre and occupies a plot of land opposite the junction of Hamilton Road and Park Avenue and includes the Earl Haig Memorial Hall. Ward Park lies to the south-east on the opposite side of the road, whilst Springfield Avenue, which houses several private residential properties runs parallel to the rear of the site. The development site is laid out in grass with tarmac paths which facilitate pedestrian access between Springfield Avenue and Hamilton Road.
PLANNING POTENTIAL The vendors have engaged the services of Gravis Planning to assess the development potential of the site area. The report is available on request.
In summary, given that the site is located within the settlement limit, Bangor City Centre and a designated development opportunity site, there are a range of land uses which would be considered acceptable in principle on this site. This includes both residential and non-residential land uses (e.g. community, retail, leisure, tourism and businesses), subject to meeting other planning policy/design requirements.
The Earl Haig Memorial Hall was built in 1933 for The Royal British Legion with the Bangor Branch operating from there until recently. The ground floor comprises a main hall with a bar, kitchen, toilets and a meeting room. The first floor features a second bar, an office and additional storage.
The building provides great potential for renovation or redevelopment subject to relevant planning permissions. The property is located in the heart of Bangor within walking distance to transport links and Ward Park.
CONSIDERATIONS The site is within Bangor Town Centre and within a draft Area of Townscape Character.
Within a proposed Area of Townscape Character particular emphasis should be given to the scale, massing and design of proposals taking cues from the character of the immediate area - consisting of a mix of established residential dwellings and former dwellings converted into offices.
Buildings would be expected to respect the previous building line along Hamilton Road and it is considered that this frontage could support three storey development. Any development proposal should be mindful of the topography of the site as it slopes gently from Hamilton Road to the rear of the site on Springfield Avenue. Design should respect the adjacent residential nature of Springfield Avenue to avoid any sense of over-dominance, massing and loss of light.
Access to the site would require to be provided from Springfield Avenue.
The draft Belfast Metropolitan Plan designates the site within an area of parking restraint.
PRICE Offers in the region of £900,000 are invited by formal tender. Tender deadline - 12:00pm Wednesday 24th September 2025
FURTHER INFORMATION A Tender Pack is available on request. For further information please contact our Bangor office on 028 91479797.
Property Location
Mortgage Calculator
Contact Agent
Contact Fetherstons (North Down)
Request More Information
Requesting Info about...
Hamilton Road (Lot 1), 41-43 Hamilton Road, Bangor, BT20 4LF
By registering your interest, you acknowledge our Privacy Policy
By registering your interest, you acknowledge our Privacy Policy