8 Bed Detached House
Downshire House, 13 Maxwell Road
Bangor, County Down, BT20 3SQ
price
£1,250,000
Key Features & Description
Description
Located in the heart of Bangor West, Downshire House is a distinguished detached residence, built in 1916 and offers over 6,000 sq. ft. of beautifully proportioned accommodation over three floors. Set on an elevated and secluded one-acre corner site with mature gardens and sea views, this double-fronted Edwardian home is rich in original period features, including sash windows, cornicing, fireplaces, and a magnificent central staircase. The layout offers four generous reception rooms and six bedrooms as well as an open kitchen /living / dining space. Situated on the prestigious Maxwell Road, just minutes from the coast, schools, and Bangor´s amenities, Downshire House is a rare opportunity to acquire a home of scale, charm, and heritage in one of Northern Ireland´s most desirable locations.
Located in the heart of Bangor West, Downshire House is a distinguished detached residence, built in 1916 and offers over 6,000 sq. ft. of beautifully proportioned accommodation over three floors. Set on an elevated and secluded one-acre corner site with mature gardens and sea views, this double-fronted Edwardian home is rich in original period features, including sash windows, cornicing, fireplaces, and a magnificent central staircase. The layout offers four generous reception rooms and six bedrooms as well as an open kitchen /living / dining space. Situated on the prestigious Maxwell Road, just minutes from the coast, schools, and Bangor´s amenities, Downshire House is a rare opportunity to acquire a home of scale, charm, and heritage in one of Northern Ireland´s most desirable locations.
Rooms
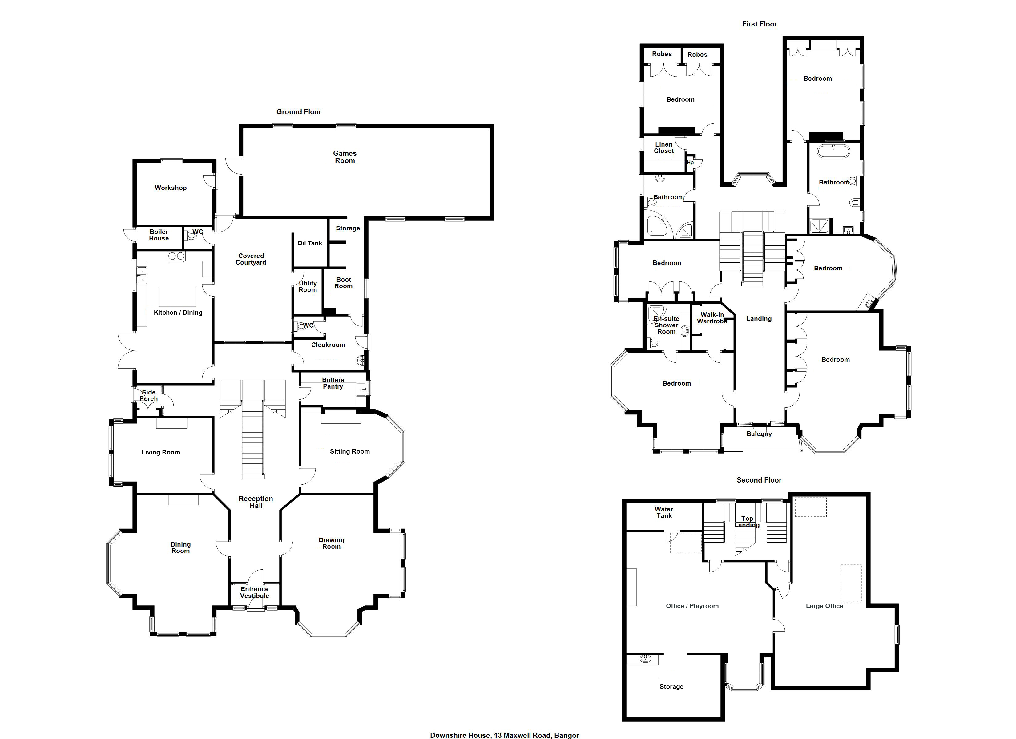
Ground Floor
Hardwood entrance door with glazed side panels.
Entrance Porch
Terrazzo tiled floor, inner glazed hardwood door to Entrance Hall.
Impressive Entrance Hall
Central staircase to upper levels. Amtico floor, under stairs storage, access to side, corbels, corniced ceiling, ceiling rose.
Large Office 30'10" X 15'1" (9.40m X 4.60m(Average))
Dining Room 21'9" X 19'3" (6.63m X 5.87m(Atwidestpoints))
Stained glass windows with sea views, hardwood fire surround with tiled and cast iron inset, open fire and slate hearth, alcove shelving, ornate detailed plasterwork ceiling.
Drawing Room (At widest points) 21'7" X 19'6" (6.58m X 5.94m)
Stained glass windows with sea views, hardwood fire surround with marble inset, gas fire and marble hearth, alcove shelving, corniced ceiling.
Sitting Room 16'1" X 12'10" (4.90m X 3.90m(Atwidestpoints))
Hardwood fire surround with gas fire inset and marble hearth, Amtico wood floor, alcove shelving.
Living Room 16'5" X 12'1" (5.00m X 3.68m(Atwidestpoints))
Tiled fire surround with open fire and tiled hearth, Amtico wood floor, corniced ceiling.
Pantry 10'7" X 4'11" (3.23m X 1.50m)
Fitted low level units, stainless steel sink unit with mixer taps.
Kitchen with Casual Dining 21'5" X 12'0" (6.53m X 3.66m)
High and low level units with marble worktops, porcelain twin Belfast sink unit with mixer taps, oil fired Aga with tiled splashback, integrated dishwasher, 4 ring Induction hob and under oven, island with breakfast bar dining, casual dining for 4-6, tiled floor, double opening glazed patio doors to side, access to inner courtyard, recessed lighting.
Cloakroom 11'9" X 8'9" (3.58m X 2.67m)
Wash hand basin, separate WC, acces to side, tiled floor, access to Games Room.
Games Room 40'0" X 14'5" (12.20m X 4.40m)
First Floor
With stained glass windows and sea views, linen cupboard with shelving.
Bedroom 1 19'5" X 16'0" (5.92m X 4.88m)
Double aspect windows with sea views. Walk in fitted dressing room with drawers and hanging space, corniced ceiling.
Ensuite Shower Room
Low flush WC, wash hand basin with vanity space below, corner shower tiled floor, partly tiled walls, recessed lighting.
Bedroom 2 22'5" X 19'7" (6.83m X 5.97m)
Double aspect windows with sea view, fitted built in wardrobes, corniced ceiling.
Bedroom 3 16'6" X 9'11" (5.03m X 3.02m)
Sea views, fitted built in wardrobes, corniced ceiling.
Bedroom 4 14'2" X 12'3" (4.32m X 3.73m)
Corniced ceiling, fitted built in wardrobes.
Bathroom 10'6" X 8'0" (3.20m X 2.44m)
Low flush WC, wash hand basin with vanity unit below, panelled corner bath, corner shower, tiled floor, fully tiled walls, recessed lighting.
Bedroom 5 11'10" X 9'11" (3.60m X 3.02m)
Fitted wardrobes.
Bathroom 14'2" X 7'9" (4.32m X 2.36m)
Low flush WC, bidet, wash hand basin with vanity drawers beneath, roll top bath, fully tiled shower cubicle, tiled floor, fully tiled walls, chrome heated towel radiator, recessed lighting.
Bedroom 6 14'3" X 11'8" (4.34m X 3.56m)
Fitted wardrobes and drawers.
Second Floor
Large Office 30'10" X 15'1" (9.40m X 4.60m)
Office / Playroom 23'10" X 19'8" (7.26m X 6.00m(Average))
Hardwood fire surround with cast iron inset, open fire and tiled hearth. Access to eaves storage. Access to storage room.
Storage Room 15'2" X 10'2" (4.62m X 3.10m)
Outside
Gated entrance with sweeping driveway to generous parking and car port.
Beautiful, well tended gardens laid in lawns with garden paths, mature trees including Pines and Japenese Cherry Blossoms. An array of flowerbeds in plants and shrubs. Outside lighting. Vegetable patch. Access gate to side. Concealed oil tank.
Beautiful, well tended gardens laid in lawns with garden paths, mature trees including Pines and Japenese Cherry Blossoms. An array of flowerbeds in plants and shrubs. Outside lighting. Vegetable patch. Access gate to side. Concealed oil tank.
Covered Inner Courtyard
Utility Room 7'5" X 5'0" (2.26m X 1.52m)
Plumbed for washing machine.
Boiler Room
PVC oil tank.
Gardeners WC
High flush WC.
Coal Shed
Gardeners Shed 12'2" X 10'1" (3.70m X 3.07m)
Power and light.
Boiler Room
Oil fired boiler.
Broadband Speed Availability
Potential Speeds for 13 Maxwell Road
Max Download
1800
Mbps
Max Upload
220
MbpsThe speeds indicated represent the maximum estimated fixed-line speeds as predicted by Ofcom. Please note that these are estimates, and actual service availability and speeds may differ.
Property Location
Mortgage Calculator
Contact Agent
Contact Simon Brien (Holywood)
Request More Information
Requesting Info about...
Downshire House, 13 Maxwell Road, Bangor, County Down, BT20 3SQ
By registering your interest, you acknowledge our Privacy Policy
By registering your interest, you acknowledge our Privacy Policy