Contact Agent
Contact John Minnis Estate Agents (Bangor)
5 Bed Detached House
89 Donaghadee Road
Bangor, BT20 4NJ
offers around
£369,950
Key Features & Description
Fantastic Detached Family Home Extending to Circa 2,500 Square Feet With No Onward Chain, A Real Tardis of a Property, Much Bigger Than it Looks
Versatile and Flexible Accommodation
Magnificent Open Plan Living Room with Cast Iron Multi-fuel Burning Stove (needs tested) to
Dining and Family Area Kitchen with Casual Dining Area and Range of High and Low Level Units
Family Room Large
Cinema Room with Screen and Projector
Four Well Proportioned Bedrooms
Main Bedroom with Dressing Room and Additional Storage Area
Bedroom Two with Ensuite Shower Room
Potential Fifth Bedroom or That All Important Home Office on the Ground Floor
Ground Floor Shower Room with Three Piece Suite
Bathroom with Three Piece Suite on Lower Level Utilty Room
Phoenix Gas Heating
ouPVC Double Glazed Windows
Outside is Totally Enclosed Low Maintenance
Front Garden in Artificial Grass with Raised Barbecue Terrace
Rear Garden in Artificial Grass
Excellent Location in Close Proximity to Many Amenities Including Ballyholme Beach and Village, Bangor Town Centre, Leading Local Schools
Wide Ranging Appeal to a Host of Potential Purchasers
Fantastic Detached Family Home Extending to Circa 2,500 Square Feet With No Onward Chain, A Real Tardis of a Property, Much Bigger Than it Looks
Versatile and Flexible Accommodation
Magnificent Open Plan Living Room with Cast Iron Multi-fuel Burning Stove (needs tested) to Dining and Family Area
Kitchen with Casual Dining Area and Range of High and Low Level Units
Family Room
Large Cinema Room with Screen and Projector
Four Well Proportioned Bedrooms
Main Bedroom with Dressing Room and Additional Storage Area
Bedroom Two with Ensuite Shower Room
Potential Fifth Bedroom or That All Important Home Office on the Ground Floor
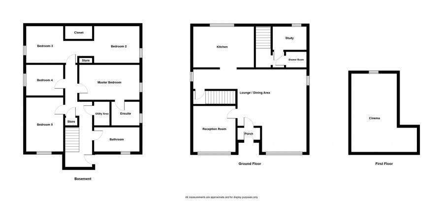
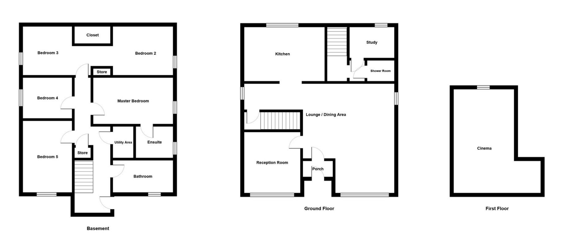
Description
Extending to circa 2,500 square feet and with no onward chain this detached family home is a real Tardis of a property. Viewers are sure to be blown away by not only the accommodation but also the layout, flexibility and overall charm and appeal of this property. Extended and renovated over the years the vast work includes complete basement conversion and roofspace conversion. All has been done sympathetically to tie in with the character of a property of this era.
The ground floor comprises impressive open plan living room with cast iron multi-fuel burning stove (needs tested), dining area and family area, good sized fitted kitchen with casual dining area and range of fitted units, family room, bedroom 5 or that all important home office and shower room with three piece suite. Moving down to the lower ground floor there are four well proportioned bedrooms, including main bedroom with large dressing room and additional storage space, bedroom two also has an ensuite shower and there is a family bathroom with three piece suite. On the first floor there is an exceptional cinema room which is the ideal place to relax with friends and family.
Outside there is a fantastic front garden in artificial grass, raised barbecue terrace and driveway and a rear garden in artificial grass. All the gardens are totally enclosed, private and safe. Other benefits include uPVC double glazed windows Phoenix Gas heating and utility room.
The location is also extremely sought after with excellent convenience to Bangor´s centre, Ballyholme beach and village, shops, cafes, restaurants and leading local schools, etc. Combine all of this with the fantastic accommodation, versatility and standard of finish and we have a property which is sure to create a lot of interest to a wide range of prospective purchasers. We can thoroughly recommend a viewing at your earliest opportunity so as to appreciate it in its entirety.
Extending to circa 2,500 square feet and with no onward chain this detached family home is a real Tardis of a property. Viewers are sure to be blown away by not only the accommodation but also the layout, flexibility and overall charm and appeal of this property. Extended and renovated over the years the vast work includes complete basement conversion and roofspace conversion. All has been done sympathetically to tie in with the character of a property of this era.
The ground floor comprises impressive open plan living room with cast iron multi-fuel burning stove (needs tested), dining area and family area, good sized fitted kitchen with casual dining area and range of fitted units, family room, bedroom 5 or that all important home office and shower room with three piece suite. Moving down to the lower ground floor there are four well proportioned bedrooms, including main bedroom with large dressing room and additional storage space, bedroom two also has an ensuite shower and there is a family bathroom with three piece suite. On the first floor there is an exceptional cinema room which is the ideal place to relax with friends and family.
Outside there is a fantastic front garden in artificial grass, raised barbecue terrace and driveway and a rear garden in artificial grass. All the gardens are totally enclosed, private and safe. Other benefits include uPVC double glazed windows Phoenix Gas heating and utility room.
The location is also extremely sought after with excellent convenience to Bangor´s centre, Ballyholme beach and village, shops, cafes, restaurants and leading local schools, etc. Combine all of this with the fantastic accommodation, versatility and standard of finish and we have a property which is sure to create a lot of interest to a wide range of prospective purchasers. We can thoroughly recommend a viewing at your earliest opportunity so as to appreciate it in its entirety.
Rooms
GROUND FLOOR
Enclosed Entrance Porch:
uPVC double glazed front door with uPVC double glazed side panels to enclosed entrance porch.
Large Open Plan Living Room with Casual Dining/Fam 22' X 25'10" (6.71m X 7.87m)
at widest points narrowing to 18´8"
Cast iron stove on slate hearth, (Note: stove needs serviced), built-in book shelves.
Cast iron stove on slate hearth, (Note: stove needs serviced), built-in book shelves.
Open Plan Living Area with Dining/Family Area 21'1" X 18'8" (6.43m X 5.69m)
Cast iron multi-fuel burning stove, laminate wood effect floor, archway to kitchen.
Family Area
12´5" x 9´7" at widest points
Family Area
12´5" x 9´7" at widest points
Family Room 12' X 11'3" (3.66m X 3.43m)
Cornice ceiling.
Kitchen: 15'11" X 12'7" (4.85m X 3.84m)
Range of high and low level high gloss units, laminate work surfaces, one and a half bowl single drainer stainless steel sink with mixer tap, integrated double oven, integrated five ring hob, tiled splashback, extractor fan above, plumbed for dishwasher, space for fridge freezer, laminate wood effect floor, part tiled walls.
Kitchen 15'10" X 12'7" (4.83m X 3.84m)
at widest points
Range of high and low level units, laminate work surfaces, one and a half bowl single drainer stainless steel sink unit with mixer tap, plumbed for dishwasher, space for cooker range, space for fridge freezer, part tiled walls.
Range of high and low level units, laminate work surfaces, one and a half bowl single drainer stainless steel sink unit with mixer tap, plumbed for dishwasher, space for cooker range, space for fridge freezer, part tiled walls.
Family Room: 14'4" X 11'3" (4.37m X 3.43m)
Laminate wood effect floor, cornice ceiling.
Bedroom Five or Home Office 8'6" X 6'2" (2.59m X 1.88m)
Bedroom Five: 12'7" X 8'5" (3.84m X 2.57m)
to include ensuite shower room
Shower Room
Three piece suite comprising built-in fully tiled shower cubicle, pedestal wash hand basin, mixer tap, tiled splashback, low flush WC, fully tiled floor, chrome heated towel rail, extractor fan.
Ensuite Shower Room:
Three piece white suite comprising built-in fully tiled shower cubicle with Triton electric shower, low flush wc, pedestal wash hand basin with mixer tap and tiled splash back, fully tiled floor, chrome heated towel rail and extractor fan.
FIRST FLOOR
Cinema Room: 20'11" X 12'5" (6.38m X 3.78m)
Cinema Room 20'12" X 12'6" (6.40m X 3.81m)
at widest points
Complete with screen and projector, storage in eaves.
Complete with screen and projector, storage in eaves.
Hallway
uPVC double glazed door to outside.
Stairs From Living Room to Lower Level
Hallway
uPVC double glazed door to outside.
Master Bedroom: 15'5" X 9'6" (4.70m X 2.90m)
Laminate wood effect floor.
Utility Room
Plumbed for washing machine, work surfaces, part tiled floor, part tiled walls.
Bedroom One 18'12" X 11'4" (5.79m X 3.45m)
at widest points to include storage recess
With dressing area, additional storage recess.
With dressing area, additional storage recess.
Adjoining Living Area: 10'10" X 10'8" (3.30m X 3.25m)
at widest points.
Dressing Area 10'10" X 10'8" (3.30m X 3.25m)
Bedroom Three: 10'9" X 10'3" (3.28m X 3.12m)
Laminate wood effect floor.
BEDROOM THREE 10'10" X 10'3" (3.30m X 3.12m)
at widest points
Bedroom Two: 15'5" X 9'6" (4.70m X 2.90m)
Part wood panelled walls.
Bedroom Two: 19'1" X 11'4" (5.82m X 3.45m)
at widest points
Bedroom Four: 12'8" X 8'1" (3.86m X 2.46m)
Laminate wood effect floor.
Ensuite Shower Room
Four piece suite comprising built-in fully tiled shower cubicle, low flush WC, two wash hand basins with mixer tap and storage beneath, fully tiled floor, part tiled walls, extractor fan.
Bathroom:
Three piece white suite comprising: panelled bath with mixer tap, pedestal wash hand basin with mixer tap and tiled splash back, low flush WC, fully tiled floor, part tiled walls.
Outside
Fully enclosed gardens, front garden in artificial grass with raised barbecue terrace, tarmac driveway with parking, rear garden in artificial grass.
Ensuite Shower Room
Three piece white suite comprising built-in fully tiled shower cubicle, low flush wc, twin wash hand basins with mixer taps and tiled splash back, fully tiled floor, part tiled walls, extractor fan.
BATHROOM
Three piece suite comprising panelled bath with mixer tap and hand shower, wash hand basin with mixer tap, tiled splashback, storage beneath, low flush WC, fully tiled floor, part tiled walls, chrome heated towel rail.
Bangor is a beautiful seaside town located just over 13 miles from Belfast. Bangor offers a wide variety of property with something to suit all.
Bangor Marina is one of the largest in Ireland and attracts plenty of visitors when the sun shows its face. Tourism is a big factor in this part of the world.
Bangor Marina is one of the largest in Ireland and attracts plenty of visitors when the sun shows its face. Tourism is a big factor in this part of the world.
Broadband Speed Availability
Potential Speeds for 89 Donaghadee Road
Max Download
1800
Mbps
Max Upload
220
MbpsThe speeds indicated represent the maximum estimated fixed-line speeds as predicted by Ofcom. Please note that these are estimates, and actual service availability and speeds may differ.
Property Location
Mortgage Calculator
Contact Agent
Contact John Minnis Estate Agents (Bangor)
Request More Information
Requesting Info about...
89 Donaghadee Road, Bangor, BT20 4NJ
By registering your interest, you acknowledge our Privacy Policy
By registering your interest, you acknowledge our Privacy Policy