Contact Agent
Contact John Minnis Estate Agents (Bangor)
4 Bed Detached House
20 Ballymaconnell Road South
Bangor, BT19 6DQ
offers around
£244,950
Key Features & Description
Detached Property Occupying an Extremely Private Site in Popular Residential Area
Bright, Spacious and Flexible Accommodation
Open Plan Living Room to Casual Dining Area with Brick Fireplace
Kitchen with Casual Dining Area
Four Bedrooms, Two of Which are on the Ground Floor, One of the Ground Floor Bedrooms Could be an Additional Reception Room
Ground Floor Bathroom with Three Piece Suite
First Floor Shower Room with Three Piece Suite
Oil Fired Central Heating
Double Glazed Windows
Gardens in Lawns to Front, Side and Rear
Driveway with Parking
Detached Garage
Ample Room to Extend Subject to Necessary Approvals
In Close Proximity to Many Amenities Including Shops, Schools, Bus Routes, Ballyholme Beach and Village and Bloomfield Shopping Complex
Demand is Anticipated to be High and to a Wide Range of Prospective Purchasers Including Young Professionals, Families, Investors and Those Looking to Downsize
Early Viewing Essential
Description
Located in this extremely popular area of Bangor here is an ideal opportunity to purchase a detached property on an extremely private site tucked away at the end of a laneway. Whilst requiring some updating this property has huge potential and will allow the lucky new owners to come in and put their own stamp on what will be a fabulous home.
The accommodation is bright, spacious and flexible comprising living room, with brick fireplace and open fire, open plan to casual dining area, fitted kitchen, two bedrooms, one of which could be another reception room, and bathroom, on the ground floor. Upstairs there are two bedrooms, both with built-in wardrobes, and a shower room. Outside this superb site has gardens in lawns to the front, side and rear providing ample room to extend subject to necessary approvals, a fantastic place for children at play, outdoor entertaining or enjoying the sun. Other benefits include oil fired central heating, double glazed windows and detached garage.
This property is conveniently located in close proximity to many amenities including schools, shops, bus routes, Ballyholme beach and village and Bloomfield shopping complex. Demand is anticipated to be high and to a wide range of prospective purchasers including first time buyers, families, the retired and those looking to downsize. A viewing is thoroughly recommended at your earliest opportunity so as to appreciate it in its entirety.
Located in this extremely popular area of Bangor here is an ideal opportunity to purchase a detached property on an extremely private site tucked away at the end of a laneway. Whilst requiring some updating this property has huge potential and will allow the lucky new owners to come in and put their own stamp on what will be a fabulous home.
The accommodation is bright, spacious and flexible comprising living room, with brick fireplace and open fire, open plan to casual dining area, fitted kitchen, two bedrooms, one of which could be another reception room, and bathroom, on the ground floor. Upstairs there are two bedrooms, both with built-in wardrobes, and a shower room. Outside this superb site has gardens in lawns to the front, side and rear providing ample room to extend subject to necessary approvals, a fantastic place for children at play, outdoor entertaining or enjoying the sun. Other benefits include oil fired central heating, double glazed windows and detached garage.
This property is conveniently located in close proximity to many amenities including schools, shops, bus routes, Ballyholme beach and village and Bloomfield shopping complex. Demand is anticipated to be high and to a wide range of prospective purchasers including first time buyers, families, the retired and those looking to downsize. A viewing is thoroughly recommended at your earliest opportunity so as to appreciate it in its entirety.
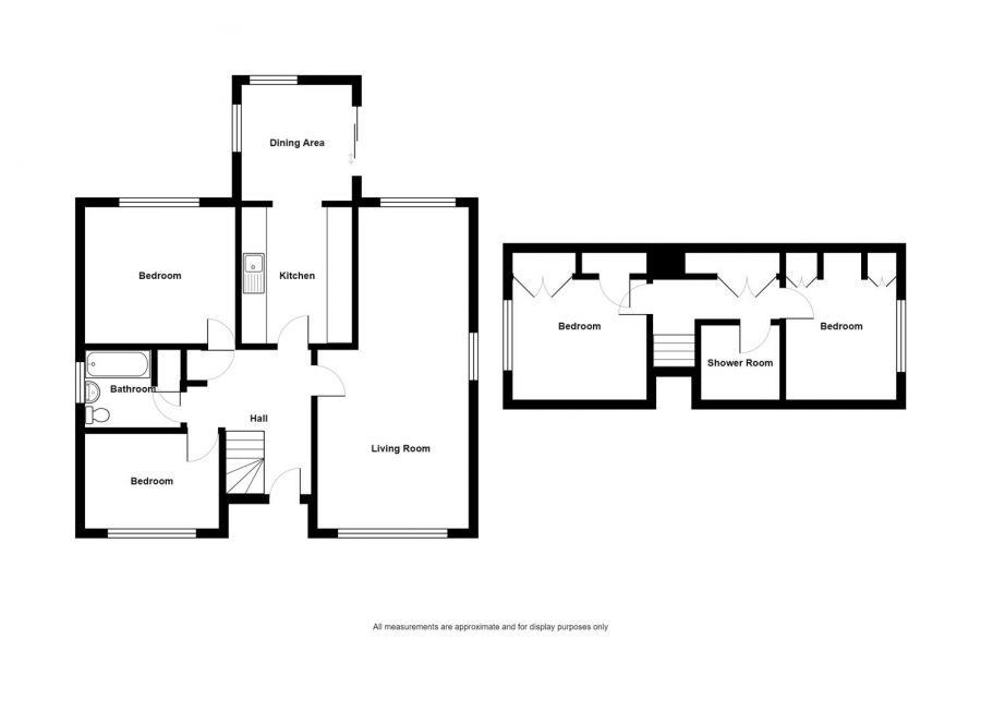
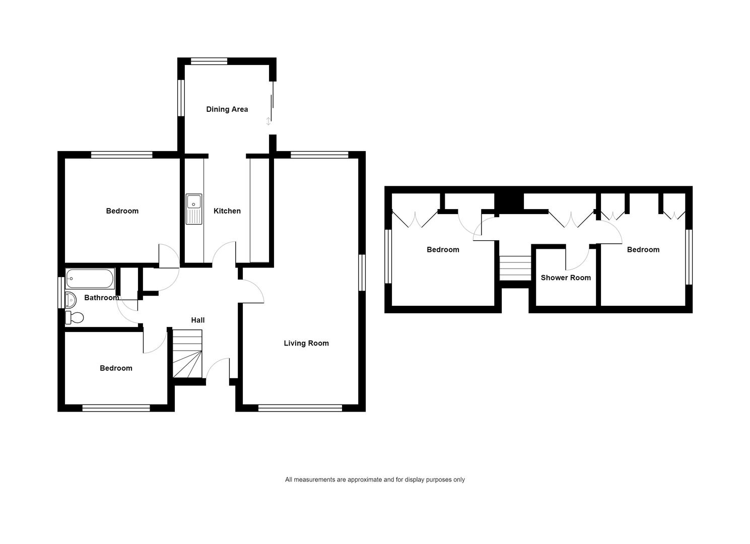
Rooms
COVERED ENTRANCE PORCH:
uPVC double glazed front door, uPVC double glazed side panel to reception hall.
RECEPTION HALL:
Solid oak floor, storage cupboard.
LIVING ROOM OPEN PLAN TO CASUAL DINING AREA: 25'10" X 12'3" (7.87m X 3.73m)
at widest points narrowing to 9´1"
Brick fireplace, tiled hearth, open fire, cornice ceiling.
Brick fireplace, tiled hearth, open fire, cornice ceiling.
KITCHEN: 20'10" X 8'2" (6.35m X 2.49m)
at widest points
Range of high and low level solid oak units, granite effect work surfaces, Franke single bowl single drainer stainless steel sink unit with mixer tap, integrated Neff oven, integrated four ring hob, tiled splashback, extractor fan above, integrated dishwasher, plumbed for washing machine, space for tumble dryer, integrated fridge freezer, fully tiled floor, part tiled walls, casual dining area with double glazed sliding patio door to rear garden.
Range of high and low level solid oak units, granite effect work surfaces, Franke single bowl single drainer stainless steel sink unit with mixer tap, integrated Neff oven, integrated four ring hob, tiled splashback, extractor fan above, integrated dishwasher, plumbed for washing machine, space for tumble dryer, integrated fridge freezer, fully tiled floor, part tiled walls, casual dining area with double glazed sliding patio door to rear garden.
BEDROOM (3): 12'1" X 10'11" (3.68m X 3.33m)
Range of built-in furniture to include wardrobes, drawers, dressing table.
BEDROOM (4): 10'11" X 7'10" (3.33m X 2.39m)
Laminate wood effect floor.
BATHROOM:
Three piece suite comprising panelled bath with mixer tap, hand shower and Redring shower over, low flush WC, pedestal wash hand basin, shelved hotpress with lagged copper cylinder, fully tiled floor, part tiled walls.
STAIRS TO FIRST FLOOR:
LANDING:
Solid oak floor, storage in eaves.
BEDROOM (1): 10'10" X 9'5" (3.30m X 2.87m)
Built-in wardrobe, additional storage in eaves.
BEDROOM (2): 9'6" X 9'0" (2.90m X 2.74m)
Two built-in wardrobes, storage in eaves.
SHOWER ROOM:
Three piece suite comprising built-in fully tiled shower cubicle, low flush WC, pedestal wash hand basin, mixer tap, fully tiled floor.
Outside
Superb site tucked away off Ballymaconnell Road South, driveway and forecourt with parking, gardens in lawns to front, side and rear, detached garage, site has excellent degree of privacy and provides ample room to extend subject to necessary approvals, a fantastic place for children at play, outdoor entertaining or enjoying the sun.
Bangor is a beautiful seaside town located just over 13 miles from Belfast. Bangor offers a wide variety of property with something to suit all.
Bangor Marina is one of the largest in Ireland and attracts plenty of visitors when the sun shows its face. Tourism is a big factor in this part of the world.
Bangor Marina is one of the largest in Ireland and attracts plenty of visitors when the sun shows its face. Tourism is a big factor in this part of the world.
Broadband Speed Availability
Potential Speeds for 20 Ballymaconnell Road South
Max Download
1800
Mbps
Max Upload
220
MbpsThe speeds indicated represent the maximum estimated fixed-line speeds as predicted by Ofcom. Please note that these are estimates, and actual service availability and speeds may differ.
Property Location
Mortgage Calculator
Contact Agent
Contact John Minnis Estate Agents (Bangor)
Request More Information
Requesting Info about...
20 Ballymaconnell Road South, Bangor, BT19 6DQ
By registering your interest, you acknowledge our Privacy Policy
By registering your interest, you acknowledge our Privacy Policy