3 Bed Terrace House
30 Fernwood Street
Belfast, BT7 3BQ
offers in region of
£159,950
Key Features & Description
Mid Terraced Home In Need Of Some Modernisation
Three Bedrooms
Lounge
Kitchen With Casual Dining Area
Bathroom With Matching Suite
Utility Area
Gas Fired Central Heating
Partial Double Glazing
Enclosed Rear Yard
Superb Location Close To Local Amenities And Transport Links
Description
This mid-terrace home enjoys a highly sought-after location just off the ever-popular Ormeau Road.
While in need of some updating, the property offers excellent potential to create a modern and versatile home, with well-proportioned accommodation suited to family living, entertaining, and working from home.
The ground floor comprises a spacious lounge, a fitted kitchen with dining area, and a separate utility room. Upstairs, there are three bedrooms and a family bathroom. To the rear, an enclosed yard provides additional outdoor space.
Set in a quiet yet convenient location, the property benefits from close proximity to a wide range of amenities, including excellent transport links, Ormeau Park, Ormeau Embankment, and leading local schools.
This home presents a superb opportunity for buyers to put their own stamp on a property in one of Belfast's most desirable areas. Internal inspection is highly recommended to fully appreciate the potential on offer.
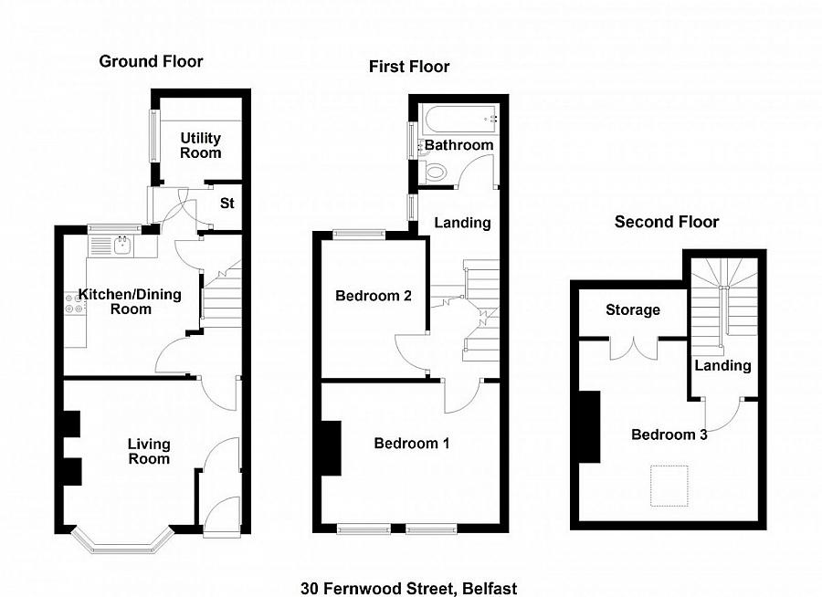
Hardwood entrance door with glazed fan light, leading to entrance porch.
ENTRANCE PORCH Hardwood flooring, hardwood door to living room.
LIVING ROOM 12' 11" x 12' 3" (3.94m x 3.74m) (@ widest points) Hardwood flooring, built in shelving, door to inner hallway, stairs leading to first floor.
KITCHEN WITH DINING AREA 9' 8" x 9' 5" (2.96m x 2.89m) Kitchen with range of fitted high and low level units, Formica work surfaces, single drainer stainless steel sink unit with mixer taps, glazed display cabinets, plumbed for dishwasher, under stairs storage cupboard, door to utility area.
UTILITY ROOM 5' 10" x 5' 6" (1.78m x 1.69m) Low level work surface, plumbed for washing machine, gas fired boiler, door to enclosed rear yard.
FIRST FLOOR LANDING
BATHROOM White suite comprising of a panelled bath with hand shower, pedestal wash hand basin, low flush WC, tiled walls, recessed low voltage spotlights, extractor fan.
BEDROOM 9' 9" x 7' 6" (2.99m x 2.30m)
BEDROOM 12' 7" x 10' 1" (3.86m x 3.09m)
SECOND FLOOR LANDING
BEDROOM 16' 5" x 12' 8" (5.02m x 3.87m) (@ widest points) Velux skylight, laminate wood strip flooring.
OUTSIDE Enclosed rear yard.
This mid-terrace home enjoys a highly sought-after location just off the ever-popular Ormeau Road.
While in need of some updating, the property offers excellent potential to create a modern and versatile home, with well-proportioned accommodation suited to family living, entertaining, and working from home.
The ground floor comprises a spacious lounge, a fitted kitchen with dining area, and a separate utility room. Upstairs, there are three bedrooms and a family bathroom. To the rear, an enclosed yard provides additional outdoor space.
Set in a quiet yet convenient location, the property benefits from close proximity to a wide range of amenities, including excellent transport links, Ormeau Park, Ormeau Embankment, and leading local schools.
This home presents a superb opportunity for buyers to put their own stamp on a property in one of Belfast's most desirable areas. Internal inspection is highly recommended to fully appreciate the potential on offer.
Hardwood entrance door with glazed fan light, leading to entrance porch.
ENTRANCE PORCH Hardwood flooring, hardwood door to living room.
LIVING ROOM 12' 11" x 12' 3" (3.94m x 3.74m) (@ widest points) Hardwood flooring, built in shelving, door to inner hallway, stairs leading to first floor.
KITCHEN WITH DINING AREA 9' 8" x 9' 5" (2.96m x 2.89m) Kitchen with range of fitted high and low level units, Formica work surfaces, single drainer stainless steel sink unit with mixer taps, glazed display cabinets, plumbed for dishwasher, under stairs storage cupboard, door to utility area.
UTILITY ROOM 5' 10" x 5' 6" (1.78m x 1.69m) Low level work surface, plumbed for washing machine, gas fired boiler, door to enclosed rear yard.
FIRST FLOOR LANDING
BATHROOM White suite comprising of a panelled bath with hand shower, pedestal wash hand basin, low flush WC, tiled walls, recessed low voltage spotlights, extractor fan.
BEDROOM 9' 9" x 7' 6" (2.99m x 2.30m)
BEDROOM 12' 7" x 10' 1" (3.86m x 3.09m)
SECOND FLOOR LANDING
BEDROOM 16' 5" x 12' 8" (5.02m x 3.87m) (@ widest points) Velux skylight, laminate wood strip flooring.
OUTSIDE Enclosed rear yard.
Broadband Speed Availability
Potential Speeds for 30 Fernwood Street
Max Download
1800
Mbps
Max Upload
220
MbpsThe speeds indicated represent the maximum estimated fixed-line speeds as predicted by Ofcom. Please note that these are estimates, and actual service availability and speeds may differ.
Property Location
Mortgage Calculator
Contact Agent
Contact Fetherstons (South Belfast)
Request More Information
Requesting Info about...
30 Fernwood Street, Belfast, BT7 3BQ
By registering your interest, you acknowledge our Privacy Policy
By registering your interest, you acknowledge our Privacy Policy