Contact Agent

Contact CPS Belfast

Contact CPS Belfast

Apartment

97-99 Botanic Avenue

Belfast, BT7 1JN

price £900,000
  • Status For Sale
  • Property Type Apartment
  • Stamp Duty
    Higher amount applies when purchasing as buy to let or as an additional property
    £35,000 / £80,000*
  • Typical Mortgage
    Click price to use our mortgage calculator

Description

CPS Property are delighted to welcome to the sales market this mixed residential/commercial premises. The property holds a prominent presence on the corner of Botanic Avenue and University Street comprising a historic three-storey red brick building.  The property currently comprises two ground floor commercial units, commercial premises on the first floor and two apartments on the second floor.  The ground floor is currently occupied by 'The French Village' and ‘Belfast City Breaks; with the upper floors being vacant.

FEATURES

- Fantastic commercial premises with a current Annual Gross Rent Roll of £39,600 Per Annum combined. 

- Benefits from Planning Approval for the following:

  • LA04/2018/0243/F - Change of use and reconfiguration from office to 3no. short term let apartments including a mezzanine to the existing 2no. apartments, roof alterations and associated works
  • LA04/2021/1896/DCA (Conservation Area Consent) - Removal of staircase, removal of suspended floors, and internal non-loading walls.  External walls to be stripped back to expose existing masonry on internal face
  • LA04/2021/1752/F - Proposed change of use and reconfiguration from hair salon to 2no. short term let apartments. External walls stripped back to expose existing masonry. Remove internal stud walls, raised platforms and staircase.

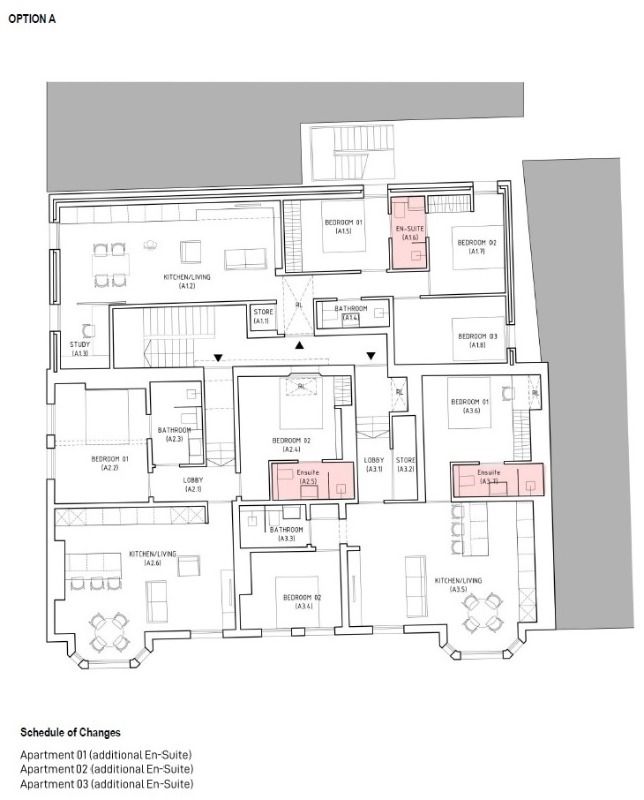
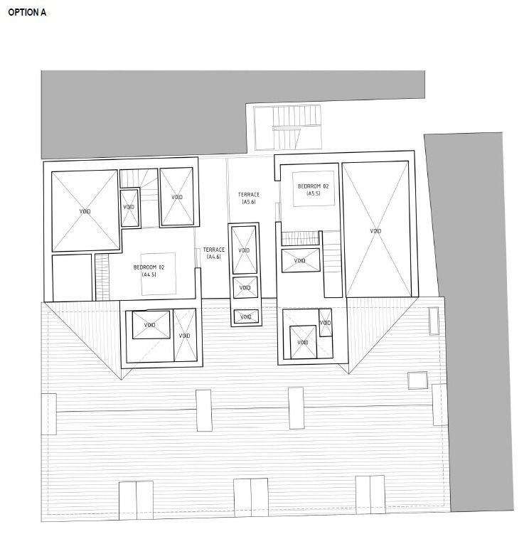
- If the above planning was implemented the finished building would comprise of two ground floor commercial units and 7 x apartments on the first and second floor as follows:

  • First Floor - 2 x Two Bedroom Apartments and 1 x Three Bedroom Apartment
  • Mezzanine Floor - 2 x Two Bedroom Apartments 
  • Second Floor - 2 x Two Bedroom Duplux Apartments. 

GUIDE PRICE

£1,100,000 (One Million & One Hundred Thousand Pounds)

VIEWING INFO

For further information or if you wish to arrange a viewing, please contact our commercial team on 

OR commercials@cps-property.com 

 

Property Location

Show Map

Mortgage Calculator

Disclaimer: The following calculations act as a guide only, and are based on a typical repayment mortgage model. Financial decisions should not be made based on these calculations and accuracy is not guaranteed. Always seek professional advice before making any financial decisions.

Contact Agent

Contact CPS Belfast

Contact CPS Belfast

Request More Information
Requesting Info about...
97-99 Botanic Avenue, Belfast, BT7 1JN 97-99 Botanic Avenue, Belfast, BT7 1JN

By registering your interest, you acknowledge our Privacy Policy