173 Newtownards Road & 1-5 Templemore Avenue
Belfast, BT4 1QJ
- Status For Sale
- Property Type Semi-Detached
-
Stamp Duty
Higher amount applies when purchasing as buy to let or as an additional property£16,250 / £42,500*
Description
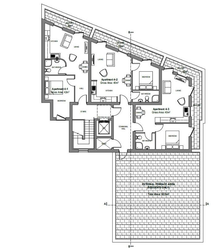
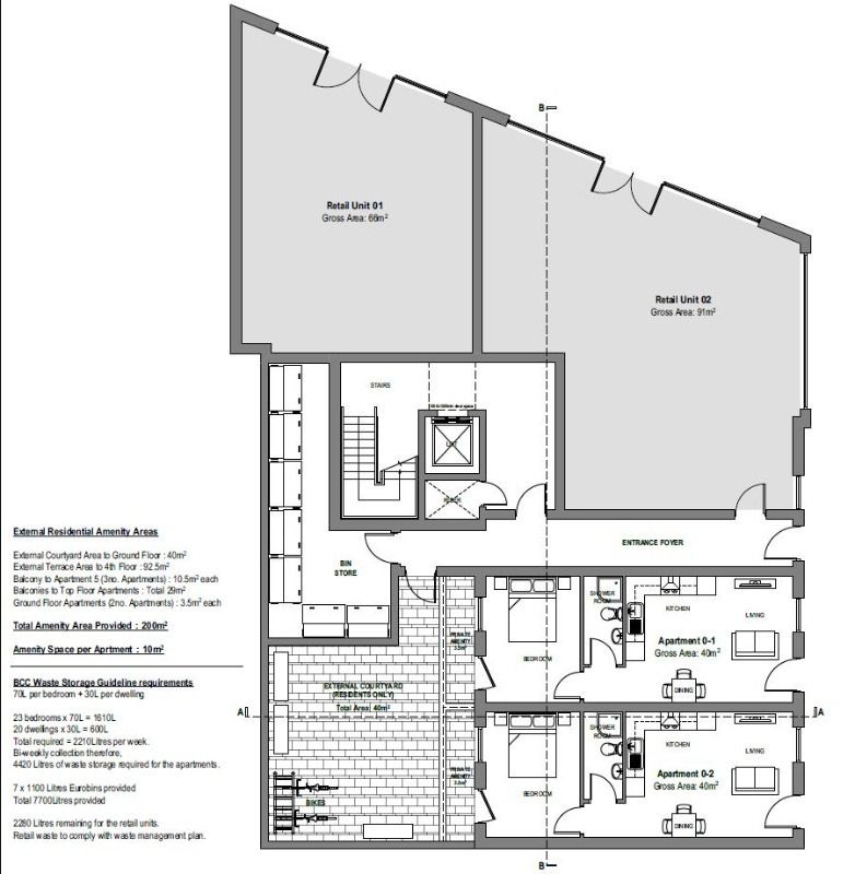
CPS are delighted to have been appointed to list for sale this excellent corner development site circa 0.1 Acres with full planning permission; offering a great opportunity for the construction of No. 20 Apartments and No. 2 Retail Units located in East Belfast.
LOCATION
This prominent site is located on the corner of the main Newtownards Road and Templemore Avenue; accessed off Bridge End and Upper Newtownards Road of East Belfast. The site is situated with ease of access to local transport networks and being in close proximity of 1.6 miles to Belfast City Centre
DESCRIPTION
The Land at the junction of Newtownards Road and Templemore Avenue comprises a corner site of circa 0.1 acres with full planning permission for No. 17 x One Bedroom Apartments, No. 3 x Two Bedroom Apartments, and No. 2 x Ground Floor Retail Units. The proposed building will be five storeys in height and feature a rear courtyard, bin store, and a roof terrace on the fourth floor.
Planning Reference – LA04/2020/1363/F – Planning pack available upon request
SERVICES & CONNECTIONS
As per the planning documents; there are no sewage and water related conditions. In the NI Water consultation, the response states 'there are foul and storm within 20m of the site'.
It has been noted and confirmed by NI Water that 'NI Water have a duty to connect foul and storm to the site into the existing NI Water infrastructure'
It has been further acknowledged that there will be a requirement to restrict storm run-off from the site to the equivalent of greenfield run-off in accordance with current standards
GUIDE PRICE
We have been instructed to seek a guide price of £525,000 (Five Hundred and Twenty Five Thousand Pounds)
VIEWING INFO
It is advised you carry out your own due diligence on this site and for any further information, please contact our commercial team on
Please note this property will be offered by online auction (unless sold prior). For auction date and time please visit iamsoldni.com. Vendors may decide to accept pre-auction bids so please register your interest with us to avoid disappointment.
With this auction method, an immediate exchange of contracts takes place with completion of the purchase required to take place within 28 days from the date of exchange of contracts.
The buyer is also required to make a payment of a non-refundable, part payment 10% Contract Deposit to a minimum of £6,000.00.
In addition to their Contract Deposit, the Buyer must pay an Administration Fee to the Auctioneer of 1.80% of the final agreed sale price including VAT, subject to a minimum of £2,400.00 including VAT for conducting the auction.
Buyers will be required to go through an identification verification process with iamsold and provide proof of how the purchase would be funded.
Terms and conditions apply to the traditional auction method and you are required to check the Buyer Information Pack for any special terms and conditions associated with this lot.
The property is subject to an undisclosed Reserve Price with both the Reserve Price and Starting Bid being subject to change.
Property Location
Mortgage Calculator
Contact Agent
Contact CPS Commercials
By registering your interest, you acknowledge our Privacy Policy