5 Bed Detached Bungalow
36 Aughnabrack Road
Belfast, BT14 8SP
offers over
£599,950
Key Features & Description
Impressive Detached Family Home
Five Bedroom; Three+ Reception
Luxury Fitted Kitchen & Matching Utility Room
Deluxe Bathroom & Shower Room
Principal Suite With Walk In Wardrobe & En Suite
Guest En Suite Bedroom
Oil Heating (underfloor); Dual Source Heat Pump; PVC Double Glazing
Generous Sized Driveway; Electric Operated Gates
Double Garage With Floored Roof Space
c.2 Acre Site (to include adjoining paddock)
Description
Impressive, five bedroom, detached, family home, with matching detached double garage, occupying a c.2 acre site, with stunning, elevated, rural views towards Lough Neagh, situated off Aughnabrack Road, Lylehill Road, Belfast.
The property comprises entrance hall, lounge, sun lounge, family room/office/sixth bedroom, kitchen through dining room, luxury fitted kitchen, utility room, five well proportioned bedrooms, to include principal suite and guest en suite bedroom, deluxe family bathroom, and separate deluxe shower room.
Externally, the property enjoys generous sized private driveway with electric operated gates, double garage with large floored roof space area (suited to conversion, subject to necessary checks and approval), adjoining paddock, and gardens front and rear, finished in lawn, patio areas and range of mature plants, trees and shrubbery.
Other attributes include oil fired central heating, dual source heat pump, underfloor heating, PVC double glazing, and immaculately presented throughout.
Early viewing highly recommended to avoid disappointment.
Impressive, five bedroom, detached, family home, with matching detached double garage, occupying a c.2 acre site, with stunning, elevated, rural views towards Lough Neagh, situated off Aughnabrack Road, Lylehill Road, Belfast.
The property comprises entrance hall, lounge, sun lounge, family room/office/sixth bedroom, kitchen through dining room, luxury fitted kitchen, utility room, five well proportioned bedrooms, to include principal suite and guest en suite bedroom, deluxe family bathroom, and separate deluxe shower room.
Externally, the property enjoys generous sized private driveway with electric operated gates, double garage with large floored roof space area (suited to conversion, subject to necessary checks and approval), adjoining paddock, and gardens front and rear, finished in lawn, patio areas and range of mature plants, trees and shrubbery.
Other attributes include oil fired central heating, dual source heat pump, underfloor heating, PVC double glazing, and immaculately presented throughout.
Early viewing highly recommended to avoid disappointment.
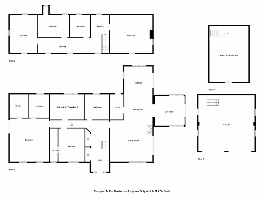
Rooms
ACCOMMODATION
ENTRANCE HALL
Composite, double glazed front door with hardwood, double glazed side screens. Tiled floor. Stairwell to first floor with glass balustrade. Access to cloakroom. Access to comms room. Glass panelled door, leading to:
LOUNGE 17'10" X 17'4" (5.44m X 5.29m)
Dual aspect windows, enjoying, elevated rural views towards Lough Neagh. Inglenook style fireplace with cast iron, multi fuel burning stove on slate hearth. Tiled floor. Open through to:
SUN LOUNGE 12'10" X 12'9" (3.92m X 3.90m)
Elevated rural views towards Lough Neagh. Tiled floor. Fitted bar area with range of storage units, solid quartz work surface and integrated fridge. Tiled floor. PVC double glazed French doors leading to driveway and garden.
KITCHEN THROUGH DINING ROOM 24'5" X 12'4" (7.45m X 3.77m)
Luxury fitted kitchen with comprehensive range of high and low level fitted storage units with contrasting, solid quartz work surface. Matching island unit with breakfast bar area. Inlaid, stainless steel 1.5 bowl sink unit. Space for range style oven, with solid quartz splashback and extractor hood over. Integrated dishwasher and fridge freezer. Glass fronted display cabinets. Dual aspect windows. Solid quartz upstands to walls and window sill. Tiled floor. Open arch leading to:
UTILITY ROOM 10'11" X 6'0" (3.34m X 1.83m)
Range of high and low level fitted storage units with contrasting, solid quartz work surface and upstands to walls. Inlaid stainless steel sink unit. Plumbed and space for washing machine. Space for tumble dryer. Tiled floor. PVC double glazed door to rear garden.
PRINCIPAL BEDROOM 18'9" X 17'7" (5.74m X 5.38m)
Elevated rural views towards Lough Neagh. Tiled floor. PVC double glazed, sliding patio door to side garden.
WALK IN WARDROBE 9'11" X 7'9" (3.04m X 2.38m)
Range of fitted wardrobes and storage units. Tiled floor.
DELUXE EN SUITE BATHROOM
Contemporary, four piece suite comprising freestanding bath, separate, oversized, fully tiled shower enclosure, vanity unit with twin basins and WC. Thermostat controlled mains shower unit with drench shower head. Towel radiator. Part tiling to walls. Tiled floor.
GUEST BEDROOM 14'2" X 11'6" (4.33m X 3.51m)
Elevated rural view towards Lough Neagh. Tiled floor.
DELUXE EN SUITE SHOWER ROOM
Contemporary, three piece suite comprising fully tiled, oversized shower enclosure, vanity unit and WC. Thermostat controlled mains shower unit with drench shower head. Towel radiator. Tiled floor.
FAMILY ROOM/STUDY/BEDROOM 6 14'7" X 10'11" (4.47m X 3.34m)
Tiled floor.
DELUXE FAMILY BATHROOM
Contemporary, four piece suite comprising freestanding bath, oversized, fully tiled shower enclosure, vanity unit with twin sink units and WC. Thermostat controlled mains shower unit with drench shower head. Towel radiator. Part tiling to walls. Tiled floor.
FIRST FLOOR
LANDING
Access to under eaves storage.
BEDROOM 3 18'9" X 16'7" (5.72m X 5.08m)
Access to under eaves storage. Elevated rural views.
BEDROOM 4 16'7" X 11'11" (5.08m X 3.64m)
Elevated rural views.
BEDROOM 5 13'11" X 9'11" (4.26m X 3.03m)
DELUXE SHOWER ROOM
Contemporary, white, three piece suite comprising oversized, fully tiled shower enclosure, vanity unit and WC. Thermostat controlled mains shower unit with drench shower head. Towel radiator. Tiled floor.
EXTERNAL
Electric operated double gates leading to generous sized private driveway area, finished in tarmac.
Front garden finished in lawn, tree bark and wide array of mature plants, trees and shrubbery.
Paved entrance steps and stone clad entrance porch.
External lighting.
Granite paved patio area.
Rear garden finished in lawn and patio area.
Open aspect to rear.
External power points.
Enclosed patio area and dog run to side and rear.
PVC oil storage tank.
Outside tap.
Adjoining paddock.
Front garden finished in lawn, tree bark and wide array of mature plants, trees and shrubbery.
Paved entrance steps and stone clad entrance porch.
External lighting.
Granite paved patio area.
Rear garden finished in lawn and patio area.
Open aspect to rear.
External power points.
Enclosed patio area and dog run to side and rear.
PVC oil storage tank.
Outside tap.
Adjoining paddock.
MATCHING DETACHED DOUBLE GARAGE 24'6" X 24'2" (7.49m X 7.39m)
Twin, power operated, PVC coated roller shutter doors. Separate PVC service door. Power and light. Fixed stairwell leading to:
FLOORED ROOF SPACE 24'7" X 17'6" (7.50m X 5.35m)
IMPORTANT NOTE TO ALL POTENTIAL PURCHASERS
Please note that we have not tested the services or systems in this property. Purchasers should make/commission their own inspections if they feel it is necessary.
Broadband Speed Availability
Potential Speeds for 36 Aughnabrack Road
Max Download
2
Mbps
Max Upload
1
MbpsThe speeds indicated represent the maximum estimated fixed-line speeds as predicted by Ofcom. Please note that these are estimates, and actual service availability and speeds may differ.
Property Location
Mortgage Calculator
Contact Agent
Contact Colin Graham Residential
Request More Information
Requesting Info about...
36 Aughnabrack Road, Belfast, BT14 8SP
By registering your interest, you acknowledge our Privacy Policy
By registering your interest, you acknowledge our Privacy Policy