Contact Agent

Contact Tim Martin & Co (Comber)

Contact Tim Martin & Co (Comber)

Land

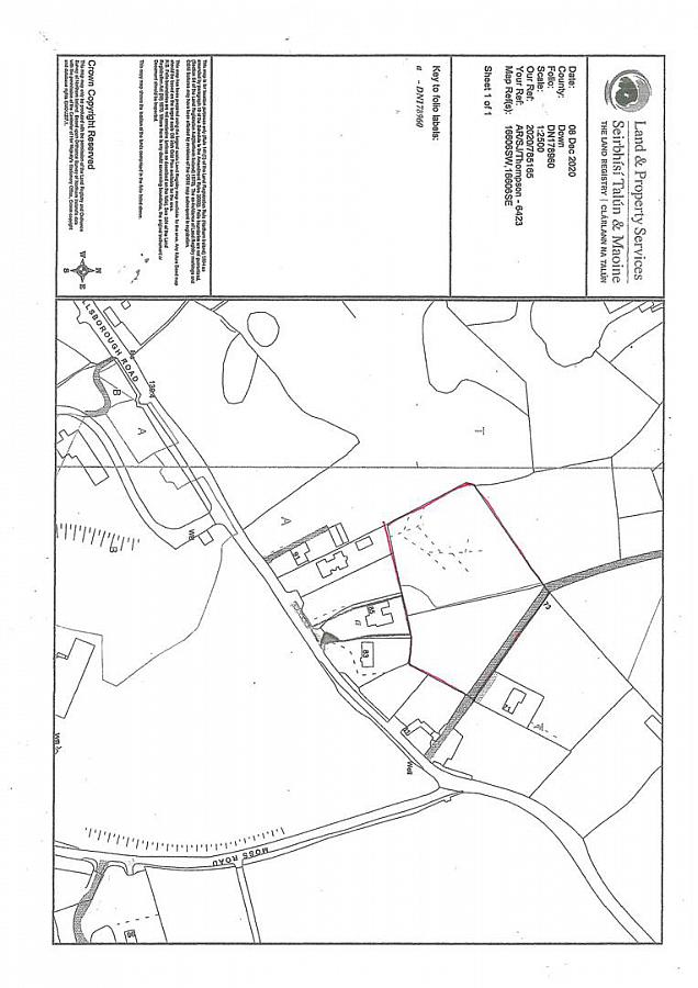
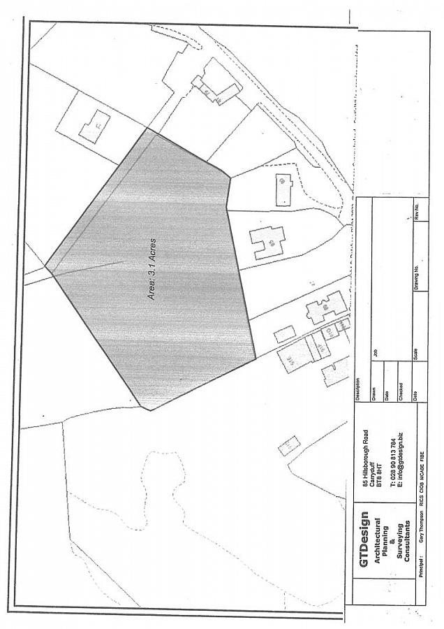
3.1 Acres to Rear Of 81, 83 & 85 Hillsborough Road

Carryduff, BT8 8HT

price guide £75,000
  • Status For Sale
  • Property Type Land
  • Stamp Duty
    Higher amount applies when purchasing as buy to let or as an additional property
    £0 / £3,750*
  • Typical Mortgage
    Click price to use our mortgage calculator

Description

A rare opportunity exists to purchase a compact portion of quality agricultural lands extending to circa 3.1 acres.

The lands approached shared laneway is situated on the outskirts of Carryduff and set back a short distance from the country road.

The lands are currently laid down to grass with silage have been cut off the fields in recent years but appears to be equally suitable for grazing and/or arable purposes.

The purchase of the lands provides an ideal opportunity to acquire land for those with Equestrian farming, tree planting and a wide range of other purposes.

Guide Price £75,000

For sale as a whole or in lots.

Viewing Anytime


Location
Proceed out Hillsborough Road and turn right into the laneway immediately past the Moss Road towards the land which is on the left handside of the approach laneway.

Property Location

Show Map

Mortgage Calculator

Disclaimer: The following calculations act as a guide only, and are based on a typical repayment mortgage model. Financial decisions should not be made based on these calculations and accuracy is not guaranteed. Always seek professional advice before making any financial decisions.

Contact Agent

Contact Tim Martin & Co (Comber)

Contact Tim Martin & Co (Comber)

Request More Information
Requesting Info about...
3.1 Acres to Rear Of 81, 83 & 85 Hillsborough Road, Carryduff, BT8 8HT 3.1 Acres to Rear Of 81, 83 & 85 Hillsborough Road, Carryduff, BT8 8HT

By registering your interest, you acknowledge our Privacy Policy