Contact Agent
Contact Michael Chandler Estate Agents
Site
Site @, 37 Church Road
Carryduff, BT8 8DU
asking price
£130,000
- Status For Sale
- Property Type Site
-
Stamp Duty
Higher amount applies when purchasing as buy to let or as an additional property£100 / £6,600*
Key Features & Description
Description
This is a rare and highly visible development site in the centre of Carryduff. Positioned directly on Church Road, just off the main Ballynahinch Road, the site sits opposite the brand-new Lidl and beside a busy row of established shops, including a popular bar, coffee shop, and several retail units. Few locations in Carryduff can match the level of passing trade, visibility, and convenience offered here.
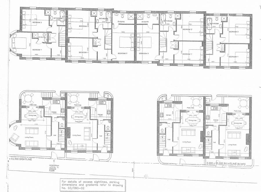
Planning permission was originally granted in 2006 for a set of four townhouses. It is understood that electric and water connections are already on site, which could significantly speed up any new development. Original drawings of the townhouse layout are available for reference, though it is expected that updated plans would be required.
The site represents a superb opportunity for builders or developers seeking a central project. Options could include townhouses, retail premises, or a mixed commercial and residential scheme, subject to the relevant approvals. The location is right in the heart of Carryduff, within easy walking distance to a full range of shops, schools, cafes, public transport, and leisure facilities.
With so few sites coming to market in such a prime position, and with pricing set to encourage a quick sale, this is an outstanding chance to secure a development project with genuine potential.
To arrange a viewing or for further information contact Michael Chandler Estate Agents on 02890 450 550 or email property@michael-chandler.co.uk.
This is a rare and highly visible development site in the centre of Carryduff. Positioned directly on Church Road, just off the main Ballynahinch Road, the site sits opposite the brand-new Lidl and beside a busy row of established shops, including a popular bar, coffee shop, and several retail units. Few locations in Carryduff can match the level of passing trade, visibility, and convenience offered here.
Planning permission was originally granted in 2006 for a set of four townhouses. It is understood that electric and water connections are already on site, which could significantly speed up any new development. Original drawings of the townhouse layout are available for reference, though it is expected that updated plans would be required.
The site represents a superb opportunity for builders or developers seeking a central project. Options could include townhouses, retail premises, or a mixed commercial and residential scheme, subject to the relevant approvals. The location is right in the heart of Carryduff, within easy walking distance to a full range of shops, schools, cafes, public transport, and leisure facilities.
With so few sites coming to market in such a prime position, and with pricing set to encourage a quick sale, this is an outstanding chance to secure a development project with genuine potential.
To arrange a viewing or for further information contact Michael Chandler Estate Agents on 02890 450 550 or email property@michael-chandler.co.uk.
Property Location
Mortgage Calculator
Contact Agent
Contact Michael Chandler Estate Agents
Request More Information
Requesting Info about...
Site @, 37 Church Road, Carryduff, BT8 8DU
By registering your interest, you acknowledge our Privacy Policy
By registering your interest, you acknowledge our Privacy Policy