Contact Agent
Contact Ulster Property Sales (UPS) Ballyhackamore
Site
Site South East Of 9 Lisleen Road East
Comber, Comber Newtown, BT23 5QB
offers around
£195,000
- Status For Sale
- Property Type Site
-
Stamp Duty
Higher amount applies when purchasing as buy to let or as an additional property£1,400 / £11,150*
Key Features & Description
Excellent Building Site approximately One Acre
Viewing At Location Anytime
Approx 12 Minutes From Belfast City Airport, Belfast City Centre
Services To Site are in Place Under Hardcore Laneway
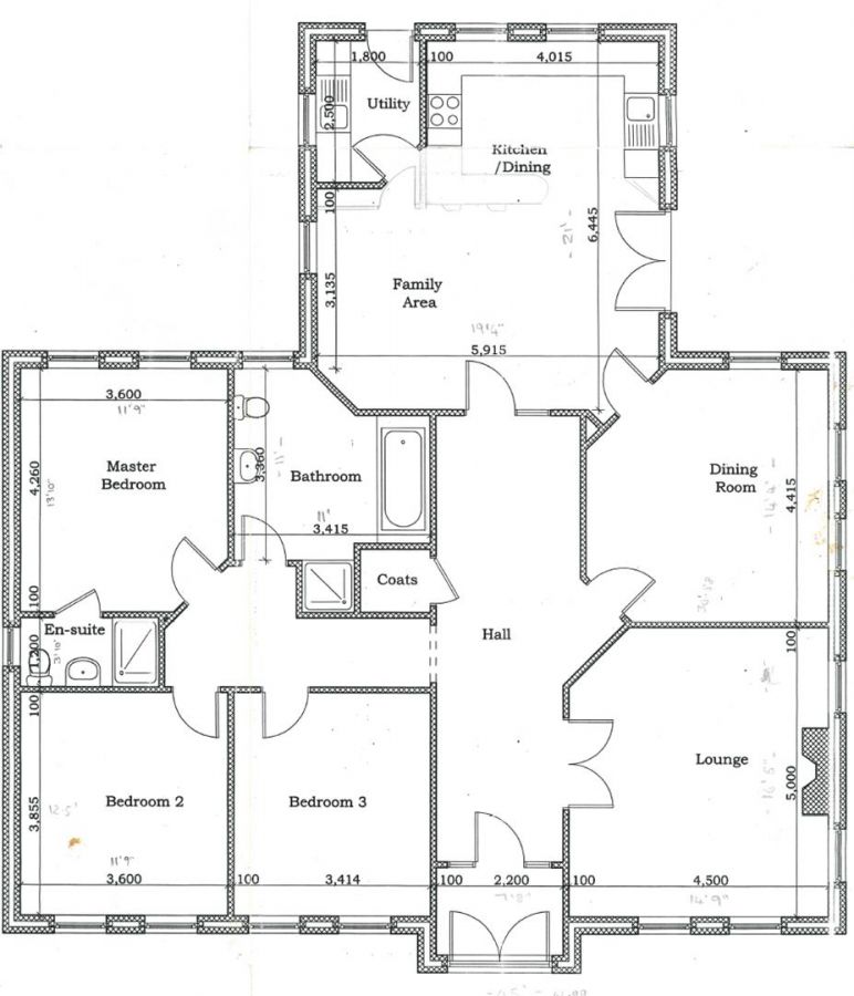
Artist Impressions are for Expired Planning Granted in 2019 For 2,960 sq ft Dwelling
Planning permission active from 2002 for 1,835 sq ft Bungalow
Description
Site 230m South East of 9 Lisleen Road East, Comber BT23 5QB.
Beautifully located site of approximately one acre located in the Gilnahirk/Castlereagh area. The site is accessed via its own laneway off the Lisleen Road. Hardcore laneway in place with mature trees around site.
Original Planning - Still valid as foundation's were built - Ref No: Y/2002/0128/F - approval for 1835sq ft bungalow. Planning permission for a 2,960 sq ft two storey detached dwelling including double garage was granted in 2019 but has now expired. Please note the artist impressions are for this planning ref.
Planning Reference Number for current planning: Y/2002/0128/F
Planning Reference Number for expired planning: LA05/2018/0252/F
Site 230m South East of 9 Lisleen Road East, Comber BT23 5QB.
Beautifully located site of approximately one acre located in the Gilnahirk/Castlereagh area. The site is accessed via its own laneway off the Lisleen Road. Hardcore laneway in place with mature trees around site.
Original Planning - Still valid as foundation's were built - Ref No: Y/2002/0128/F - approval for 1835sq ft bungalow. Planning permission for a 2,960 sq ft two storey detached dwelling including double garage was granted in 2019 but has now expired. Please note the artist impressions are for this planning ref.
Planning Reference Number for current planning: Y/2002/0128/F
Planning Reference Number for expired planning: LA05/2018/0252/F
Rooms
As part of our legal obligations under The Money Laundering, Terrorist Financing and Transfer of Funds (Information on the Payer) Regulations 2017, we are required to verify the identity of both the vendor and purchaser in every property transaction.
To meet these requirements, all estate agents must carry out Customer Due Diligence checks on every party involved in the sale or purchase of a property in the UK.
We outsource these checks to a trusted third-party provider. A charge of £20 + VAT per person will apply to cover this service.
You can find more information about the legislation at www.legislation.gov.uk
To meet these requirements, all estate agents must carry out Customer Due Diligence checks on every party involved in the sale or purchase of a property in the UK.
We outsource these checks to a trusted third-party provider. A charge of £20 + VAT per person will apply to cover this service.
You can find more information about the legislation at www.legislation.gov.uk
Location
Located in rural surroundings in the Gilnahirk/ Castlereagh area this building site of approximately one acre enjoys a beautiful view of the Mourne Mountains and surrounding countryside. Approximately 12 minute drive from Belfast City Airport and Belfast City Centre.
Access
Access to the dwelling is via an entrance from Lisleen Road East. Hardcore laneway already in place running from the road to site.
Services
It is understood that electric and water are available to the site although additional costs may be charged by the suppliers to connect to the dwelling as with any building site. Provision for electric gates also in place.
Planning Permission
Original Planning which was granted in 2002 is still active as the foundation's for this dwelling were built - Ref No: Y/2002/0128/F - approval for 1835sq ft bungalow, drawings for this are attached.
The previous planning permission which has now expired was granted on the 23rd May 2019 with full planning permission for a 2,960 sq ft two storey dwelling including double garage. This planning application is available to view on the planning portal website using reference: LA05/2018/0252/F - Please note the artist impressions are for this planning ref.
The previous planning permission which has now expired was granted on the 23rd May 2019 with full planning permission for a 2,960 sq ft two storey dwelling including double garage. This planning application is available to view on the planning portal website using reference: LA05/2018/0252/F - Please note the artist impressions are for this planning ref.
Broadband Speed Availability
Potential Speeds for Site South East Of 9 Lisleen Road East
Max Download
52
Mbps
Max Upload
8
MbpsThe speeds indicated represent the maximum estimated fixed-line speeds as predicted by Ofcom. Please note that these are estimates, and actual service availability and speeds may differ.
Property Location
Mortgage Calculator
Contact Agent
Contact Ulster Property Sales (UPS) Ballyhackamore
Request More Information
Requesting Info about...
Site South East Of 9 Lisleen Road East, Comber, Comber Newtown, BT23 5QB
By registering your interest, you acknowledge our Privacy Policy
By registering your interest, you acknowledge our Privacy Policy