Contact Agent

Contact Templeton Robinson (Ballyhackamore)

Contact Templeton Robinson (Ballyhackamore)

3 Bed Semi-Detached House

17 Houston Park

Castlereagh, Belfast, BT5 6AT

offers over £325,000
  • Status For Sale
  • Property Type Semi-Detached
  • Bedrooms 3
  • Receptions 2
  • Heating Gas
  • EPC Rating D63 / C76 -
  • Stamp Duty
    Higher amount applies when purchasing as buy to let or as an additional property
    £6,250 / £22,500*
  • Typical Mortgage
    Click price to use our mortgage calculator
EPC Rating

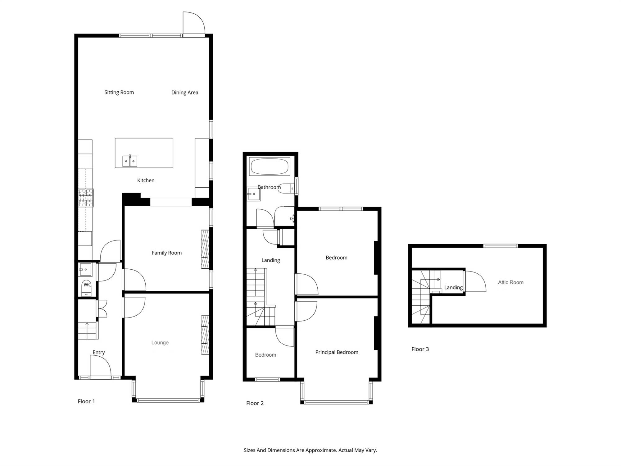
Key Features & Description

Enclosed rear garden in lawn with part covered patio seating area
Paved driveway parking for several cars
Gas central heating/uPVC Double glazing
Ground floor WC
Family bathroom with feature Cast Iron roll top bath
Attic room (potential fourth bedroom subject to necessary consent)
Three well proportioned bedrooms
Living and dining area with bio folding doors to rear garden
Kitchen with range of built in appliances and centre island, open to..
Family room with feature fireplace and stove, open to
Lounge with bay window and feature fireplace
Contemporary finish mixed with period charm
Beautifully presented, extended semi detached home
Description
Sitting on the edge of Orangefield Park, this attractive, extended semi detached home is ideally located just off the Castlereagh Road offering excellent convenience to shops, schools and transport links for commuting.

The property has been modernised throughout with tasteful decor, creating a perfect blend of period charm with modern influences. Of particular note is the wow factor ground floor extension with open plan kitchen/living/dining area and bio folding doors to rear. There is also the potential for a fourth bedroom (subject to necessary approval).

Externally the property benefits from driveway parking and a private and enclosed landscaped rear garden in lawn and timber storage shed.

Rooms

Glazed upvc front door and glazed side panels to...
ENTRANCE HALL: Laminate wood effect floor.
DOWNSTAIRS W.C.: White suite comprising vanity sink unit, low flush WC, tiled floor, part tiled walls.
LOUNGE: 14' 5" X 12' 0" (4.39m X 3.66m) Into bay. Wooden floor, feature fire place with tiled inset and hearth, cornice ceiling.
LIVING ROOM: 11' 11" X 11' 10" (3.63m X 3.61m) Multi fuel burning with slate hearth, open access to...
KITCHEN/LIVING/DINING AREA: 30' 8" X 17' 5" (9.35m X 5.31m) At widest points. Contemporary fitted kitchen with range of high and low level units, 4 ring gas hob, extractor fan, double electric oven, plumbed for American style fridge freezer, central island with 1.5 basin sink, integrated dish washer, solid oak breakfast bar with low level cupboards, Quartz work surface, feature down lights, laminate wood effect floor, recessed skylight, utility cupboard, plumbed for washing machine, low voltage spotlights, open plan to casual living and dining area with aluminium bi folding doors to rear, skylight, low voltage spotlights, laminate wood effect flooring.
LANDING: Storage cupboard with gas boiler.
BEDROOM (1): 14' 4" X 11' 4" (4.37m X 3.45m) Into bay.
BEDROOM (2): 11' 11" X 11' 3" (3.63m X 3.43m) Picture rail.
BEDROOM (3): 6' 11" X 6' 7" (2.11m X 2.01m) Laminate wood effect flooring.
BATHROOM: Modern white suite comprising vanity sink unit, low flush WC, part tiled walls, tiled shower cubicle with electric shower, tiled floor, cast iron rolled top bath.
FIXED STAIRS TO:
ATTIC ROOM: 16' 6" X 10' 7" (5.03m X 3.23m) Storage into eaves, Velux window.
FRONT: Hard landscaped feature garden area with boundary wall, paviour driveway parking.
REAR: Private and enclosed rear garden with lawn and generous pebbled seating area, boundary fencing and patio seating area. Timber shed, tap.

Broadband Speed Availability

Ultrafast

Potential Speeds for 17 Houston Park

Max Download
1800
Mbps
Max Upload
220
Mbps
The speeds indicated represent the maximum estimated fixed-line speeds as predicted by Ofcom. Please note that these are estimates, and actual service availability and speeds may differ.

Property Location

Show Map

Mortgage Calculator

Disclaimer: The following calculations act as a guide only, and are based on a typical repayment mortgage model. Financial decisions should not be made based on these calculations and accuracy is not guaranteed. Always seek professional advice before making any financial decisions.

Directions

Heading towards Belfast on the Castlereagh Road turn right into Houston Park and No. 17 is on the right hand side opposite the park.

Contact Agent

Contact Templeton Robinson (Ballyhackamore)

Contact Templeton Robinson (Ballyhackamore)

Request More Information
Requesting Info about...
17 Houston Park, Castlereagh, Belfast, BT5 6AT 17 Houston Park, Castlereagh, Belfast, BT5 6AT

By registering your interest, you acknowledge our Privacy Policy