Contact Agent

Contact Investa (N.I.) Property Management

Contact Investa (N.I.) Property Management

2 Bed Apartment

20 Castlemews

Leadhill, Belfast, BT6 9RR

offers around £140,000
  • Status Sale Agreed
  • Property Type Apartment
  • Bedrooms 2
  • Receptions 1
  • Bathrooms 1
  • Heating Economy 7
  • Stamp Duty
    Higher amount applies when purchasing as buy to let or as an additional property
    £300 / £7,300*
  • Typical Mortgage
    Click price to use our mortgage calculator

Key Features & Description

Chain Free
Early viewing recommended
Off Street parking
UPVC double glazing
Modern shower-room
Fitted kitchen
Attractive two-bedroom apartment
Spacious living and dining area
Excellent location with easy access to all of Belfast
Panoramic views across Belfast
Description

We are delighted to bring to the market for sale this spacious two-bedroom, chain free, well-presented apartment located in a highly sought after residential area just off the Ballygowan Road, Castlereagh and benefiting from panoramic views across Belfast which can be seen from both the living and kitchen areas. 

 

The apartment will suit a wide range of purchases due to its excellent location, minutes away from all local amenities including Forestside shopping complex and public transport routes taking you directly into Belfast City Centre with Victoria Square and many popular restaurants and bars in the surrounding area.

 

The property has been well presented throughout and benefits from a fully fitted kitchen with built in oven and hob, living and dining area, two spacious bedrooms, shower-room, and ample storage areas.

 

The property also benefits from electric heating and UPVC double glazing.

 

Externally you have access to well-maintained communal areas and car-parking.

 

Investa (N.I.) Property Management are the managing agent for the Management Company and you can contact our office to discuss the current yearly/quarterly management fees.

 

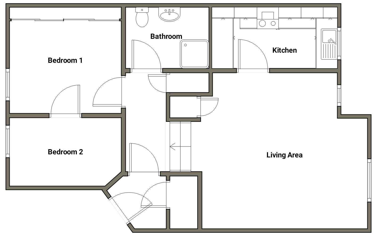
The property comprises of:

 

Entrance Hall

1.4m x 1.2m

Entrance Hall Storage

1.5m x 0.5m

Living Area

6.1m x 4.7m

Living Area Storage

0.6m x 0.5m

Kitchen

3.3m x 1.7m

Main Hall

3m x 0.8m

Main Hall Storage

0.7m x 0.7m

Bedroom 1

3.4m x 3.2m

Bedroom 2

3.1m x 1.9m

Shower-Room

1.7m x 1.7m

 

For further information or to arrange a viewing please contact our office on 02897521283

 

Disclaimer
These particulars, whilst believed to be accurate are set out as a general guideline and do not constitute any part of an offer or contract. Intending Purchasers should not rely on them as statements of representation of fact, but must satisfy themselves by inspection or otherwise as to their accuracy. Please note that we have not tested any apparatus, equipment, fixtures, fittings, or services including central heating and so cannot verify they are in working order or fit for their purpose. Furthermore, Solicitors should confirm moveable items described in the sales particulars and, in fact, included in the sale since circumstances do change during the marketing or negotiations. Although we try to ensure accuracy, if measurements are used in this listing, they may be approximate. Therefore, if intending Purchasers need accurate measurements to order carpeting or to ensure existing furniture will fit, they should take such measurements themselves. Photographs are reproduced general information and it must not be inferred that any item is included for sale with the property.

Property Location

Show Map

Mortgage Calculator

Disclaimer: The following calculations act as a guide only, and are based on a typical repayment mortgage model. Financial decisions should not be made based on these calculations and accuracy is not guaranteed. Always seek professional advice before making any financial decisions.

Contact Agent

Contact Investa (N.I.) Property Management

Contact Investa (N.I.) Property Management

Request More Information
Requesting Info about...
20 Castlemews, Leadhill, Belfast, BT6 9RR 20 Castlemews, Leadhill, Belfast, BT6 9RR

By registering your interest, you acknowledge our Privacy Policy