60M North East Of 63 Fellows Hall Road
Co. Armagh, Killylea, BT60 4LX
- Status For Sale
- Property Type Site
-
Stamp Duty
Higher amount applies when purchasing as buy to let or as an additional property£0 / £6,000*
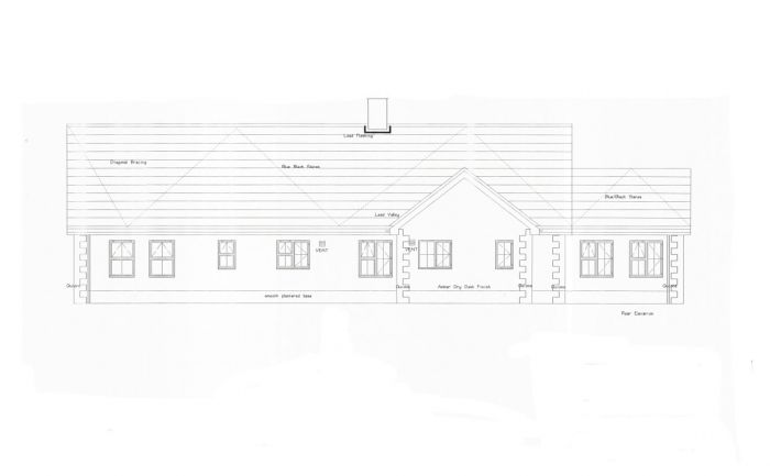
Description
Hewitt Property Agents are delighted to offer to the market this exceptional site with full planning permission at 60M north east of 63 Fellows Hall Road. The residential site lies within a field of circa. 2.7 acres. The planning permission is for a beautiful 3-bedroom bungalow with a detached garage. The foundations are in place for the garage only.
The site is ideally located in the rural countryside in Killylea whilst still being in close commuting distance to Armagh (approx. 6.5 miles), Belfast (approx. 45 miles) and Dublin (only approx. 1 hr 45 mins).
Original Planning application number: O/2005/0461/O
Granted in 2007
Approval of reserved matters: O/2009/0078/RM
Granted in 2009
These details do not constitute any part of an offer or contract. None of the statements contained in the description are to be relied on a statement or representations of fact and any intending purchaser must satisfy themselves by inspection or otherwise as to their correctness. All dimensions are approximate and are taken at the widest points. All maps & plans included are for illustration purposes only.
Property Location
Mortgage Calculator
Contact Agent
Contact Hewitt Property Agents
By registering your interest, you acknowledge our Privacy Policy