Contact Agent
Contact Philip Tweedie & Company (Coleraine)
3 Bed Detached House
352 Henley Hall
Coleraine,
fixed price
£300,000
- Status For Sale
- Property Type Detached
- Bedrooms 3
- Receptions 2
- Bathrooms 2
-
Stamp Duty
Higher amount applies when purchasing as buy to let or as an additional property£5,000 / £20,000*
Description
THE FITZPATRICK - RENDER FINISH WITH SOLAR PANELS
3 BEDROOM DETACHED FAMILY HOME
TOTAL FLOOR AREA 1,253 sq. ft. approx
Characterful, Traditionally constructed homes with block and brick/render finish offering a premium level of insulation and soundproofing
UNIQUELY DESIGNED AND FINISHED TO THE HIGHEST SPECIFICATION...MOVE IN AND ENJOY!
CREATE SPACES THAT TELL A STORY WITH CONTEMPORARY EFFORTLESS FINISHES
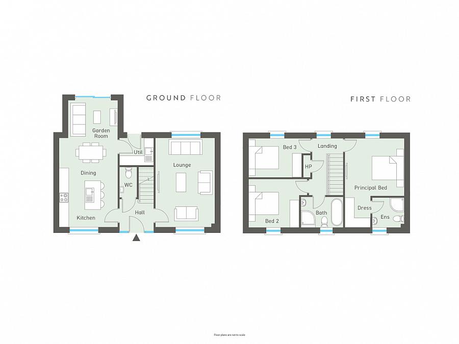
GROUND FLOOR
ENTRANCE HALL WITH SEPARATE WC
LOUNGE
18'4" x 12'2"
KITCHEN/DINING/LIVING AREA
182'5" x 12'0"
GARDEN ROOM
10'2" x 7'9"
UTILITY ROOM
7'1" x 5'8"
FIRST FLOOR
MASTER SUITE
12'2" x 11'10"
Ensuite
6'7" x 6'2"
DRESS ROOM
6'2" x 5'3"
BEDROOM 2
10'5" x 10'0"
BEDROOM 3
12'8" x 8'0"
BATHROOM
8'8" x 6'6"
3 BEDROOM DETACHED FAMILY HOME
TOTAL FLOOR AREA 1,253 sq. ft. approx
Characterful, Traditionally constructed homes with block and brick/render finish offering a premium level of insulation and soundproofing
UNIQUELY DESIGNED AND FINISHED TO THE HIGHEST SPECIFICATION...MOVE IN AND ENJOY!
CREATE SPACES THAT TELL A STORY WITH CONTEMPORARY EFFORTLESS FINISHES
GROUND FLOOR
ENTRANCE HALL WITH SEPARATE WC
LOUNGE
18'4" x 12'2"
KITCHEN/DINING/LIVING AREA
182'5" x 12'0"
GARDEN ROOM
10'2" x 7'9"
UTILITY ROOM
7'1" x 5'8"
FIRST FLOOR
MASTER SUITE
12'2" x 11'10"
Ensuite
6'7" x 6'2"
DRESS ROOM
6'2" x 5'3"
BEDROOM 2
10'5" x 10'0"
BEDROOM 3
12'8" x 8'0"
BATHROOM
8'8" x 6'6"
Virtual Tour
Property Location
Mortgage Calculator
Contact Agent
Contact Philip Tweedie & Company (Coleraine)
Request More Information
Requesting Info about...