Site
Lot 2 Building Site, And Lands Adjacent 76 Ballymorran Road
Killinchy, Comber, BT23 6UA
offers around
£310,000
- Status For Sale
- Property Type Site
-
Stamp Duty
Higher amount applies when purchasing as buy to let or as an additional property£5,500 / £21,000*
Description
A rare opportunity to purchase this quality agricultural holding and 4.724 acres of agricultural lands, situated in one of the most desirable areas in Co. Down, within yards of Strangford Lough and in a designated area of Outstanding Natural Beauty.
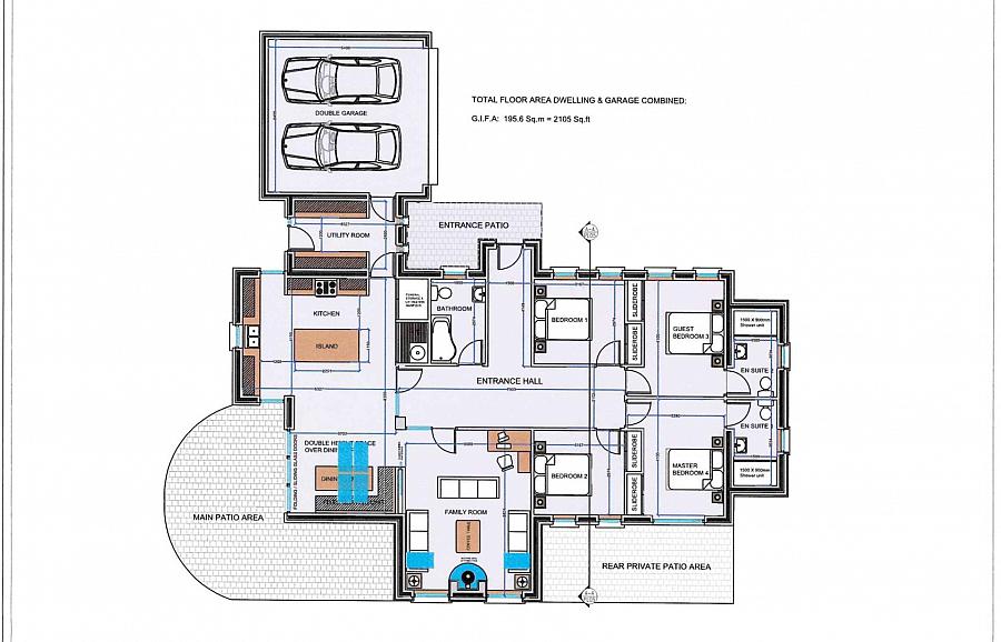
The property has been granted reserved application no LA07/2023/3607/RM for a single storey dwelling and integral garage date 02/09/24 for a period of two years from that date, with total area including garage 2105 sqft.
The property includes an American barn subdivided into 8 stables with tack room and wash bay, and cattle house divided into 7 pens with covered silage passage to front. The lands are subdivided into convenient sized fields, enjoy good frontage to the Ballymorran Road and are intersected by a private hardcore and concrete lane.
Viewing - Strictly by Appointment Only
For Sale as a Whole or in Lots
The property has been granted reserved application no LA07/2023/3607/RM for a single storey dwelling and integral garage date 02/09/24 for a period of two years from that date, with total area including garage 2105 sqft.
The property includes an American barn subdivided into 8 stables with tack room and wash bay, and cattle house divided into 7 pens with covered silage passage to front. The lands are subdivided into convenient sized fields, enjoy good frontage to the Ballymorran Road and are intersected by a private hardcore and concrete lane.
Viewing - Strictly by Appointment Only
For Sale as a Whole or in Lots
Property Location
Mortgage Calculator
Contact Agent
Contact Tim Martin & Co (Comber)
Request More Information
Requesting Info about...
Lot 2 Building Site, And Lands Adjacent 76 Ballymorran Road, Killinchy, Comber, BT23 6UA
By registering your interest, you acknowledge our Privacy Policy
By registering your interest, you acknowledge our Privacy Policy