5 Bed Detached House
41 Whinney Hill
Craigantlet, Holywood, BT18 0HF
price
£850,000
Key Features & Description
Description
41 Whinney Hill is a spacious detached property on a manageable site measuring 1.1 acres. The property has been renovated over the years and is immaculately maintained by the current owners. Located on Whinney Hill, ideally located a short distance from Holywood, East Belfast, Newtownards and Belfast City Centre. It enjoys all the benefits of living in the countryside whilst remaining extremely convenient for everyday life.
The accommodation is laid out mainly over one level with a first floor which was added later. You are greeted by a bright and spacious entrance hall with gallery landing and double sided gas fire to the drawing room. The drawing room has a vaulted ceiling and doors opening out to the wrap around decking area to the front of the property which enjoys views across the surrounding countryside. There is a separate dining room to the front of the house, and a large open plan kitchen, living and dining space to the rear which is open to a spacious family room. The kitchen is fitted with contemporary units and high end integrated appliances, the casual living space has a modern gas fire and the dining space has an attractive outlook to the rear gardens. Furthermore on the ground floor there are four bedrooms, two of which have ensuite shower rooms and a family bathroom. In addition on this level there is a downstairs cloakroom, utility room, large hot press and access to an extensive floored roof space. From the main entrance hall there is a staircase which leads to the first floor gallery landing which can be used as a pleasant reading area, there is a an additional bedroom and ensuite bathroom and a games room / home office over the garage. The integral double garage can be accessed from the entrance hallway and the utility room from the kitchen, the garage also holds the utility facilities.
The property is surrounded by immaculate, landscaped gardens with an array of plant species, water feature, lawns, patio space and an artificial lawn space which is ideal for a children's play area. You approach the property by a sweeping tarmac driveway with ample parking and turning space. Other benefits include oil fired central heating, double glazed windows and a freehold status.
Internal inspection is recommended to appreciate the space this property has to offer.
41 Whinney Hill is a spacious detached property on a manageable site measuring 1.1 acres. The property has been renovated over the years and is immaculately maintained by the current owners. Located on Whinney Hill, ideally located a short distance from Holywood, East Belfast, Newtownards and Belfast City Centre. It enjoys all the benefits of living in the countryside whilst remaining extremely convenient for everyday life.
The accommodation is laid out mainly over one level with a first floor which was added later. You are greeted by a bright and spacious entrance hall with gallery landing and double sided gas fire to the drawing room. The drawing room has a vaulted ceiling and doors opening out to the wrap around decking area to the front of the property which enjoys views across the surrounding countryside. There is a separate dining room to the front of the house, and a large open plan kitchen, living and dining space to the rear which is open to a spacious family room. The kitchen is fitted with contemporary units and high end integrated appliances, the casual living space has a modern gas fire and the dining space has an attractive outlook to the rear gardens. Furthermore on the ground floor there are four bedrooms, two of which have ensuite shower rooms and a family bathroom. In addition on this level there is a downstairs cloakroom, utility room, large hot press and access to an extensive floored roof space. From the main entrance hall there is a staircase which leads to the first floor gallery landing which can be used as a pleasant reading area, there is a an additional bedroom and ensuite bathroom and a games room / home office over the garage. The integral double garage can be accessed from the entrance hallway and the utility room from the kitchen, the garage also holds the utility facilities.
The property is surrounded by immaculate, landscaped gardens with an array of plant species, water feature, lawns, patio space and an artificial lawn space which is ideal for a children's play area. You approach the property by a sweeping tarmac driveway with ample parking and turning space. Other benefits include oil fired central heating, double glazed windows and a freehold status.
Internal inspection is recommended to appreciate the space this property has to offer.
Rooms
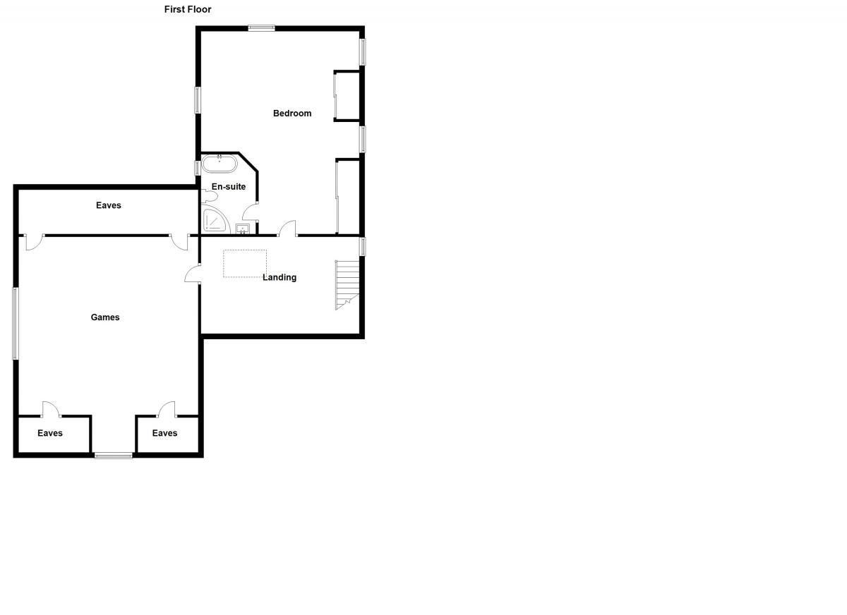
Games Room 23'9" X 22'3" (7.24m X 6.78m)
Attractive outlook to rolling surrounding countryside, built in shelving, drawers, cupboards and desk area, access to eaves storage, recessed lighting.
Ensuite Bathroom 8'12" X 8'0" (2.74m X 2.44m)
Contemporary white suite comprising of low flush WC, free standing roll top claw ball foot bath with mixer taps and hand held shower fitment, wash hand basin with vanity unit below and illuminated mirror above, tallboy storage cupboard, large corner shower with chrome thermostatic controls, tiled floor, fully tiled walls, chrome heated towel rail, recessed lighting.
Bedroom 1 24'4" X 17'3" (7.42m X 5.26m)
Built in sliding wardrobes, recessed lighting.
Gallery Landing 17'5" X 14'0" (5.30m X 4.27m)
Reading area, velux window, recessed lighting.
Bedroom 4 12'11" X 11'2" (3.94m X 3.40m)
Ensuite Shower Room
Contemporary white suite comprising of low flush WC, wash hand basin, large shower unit with Mira instant heat electric shower, tiled floor, fully tiled walls, chrome heated towel rail, recessed lighting.
Bedroom 3 12'11" X 11'1" (3.94m X 3.38m)
Ensuite Shower Room
Contemporary white suite comprising of low flush WC, wash hand basin with vanity below and illuminated mirror above, large shower unit with chrome thermostatic controls, fully tiled walls, tiled floor, chrome heated towel rail, recessed lighting.
Bedroom 2 18'6" X 15'4" (5.64m X 4.67m)
Excellent range of built in wardrobes, drawers and bedside tables.
Bathroom 18'5" X 9'3" (5.61m X 2.82m)
Ornate 'Adamsez' suite comprising of low flush WC, bidet, pedestal wash hand basin, panelled bath with mixer taps and hand held shower fitment, recessed lighting.
Bedroom 5/ Study 18'5" X 6'6" (5.61m X 1.98m)
Built in bookcases, cupboards and desk space.
Family Room 24'2" X 17'2" (7.37m X 5.23m)
Built in display with shelving and drawers, contemporary gas fire with storage drawers beneath, double opening glazed PVC doors to patio and gardens.
Utility Room 10'7" X 6'0" (3.23m X 1.83m)
Fitted with stainless steel sink unit with mixer tap, cloaks space, ceramic tiled floor, recessed lighting, door to integral garage.
Dining Area 17'1" X 12'0" (5.20m X 3.66m)
Attractive outlook to gardens, built in dresser with shelves and drawers, ceramic tiled floor.
Kitchen / Living 36'3" X 12'11" (11.05m X 3.94m)
Contemporary white handleless kitchen with Corrian worktops, excellent range of high and low level units, 1.5 bowl stainless steel sink unit with mixer tap and Quooker hot water tap, integrated dishwasher, 4 ring induction hob with stainless steel extractor hood, integrated oven, integrated combi microwave oven and plate warming drawer, integrated fridge freezer, peninsula unit with breakfast bar dining, living area with contemporary gas fire with storage drawers beneath. Double opening glazed PVC doors to rear patio and gardens, ceramic tiled floor, recessed lighting, open to Dining Area.
Dining Room 18'5" X 12'12" (5.61m X 3.96m)
Corniced ceiling, ceiling rose.
Drawing Room 24'6" X 22'9" (7.47m X 6.93m)
Double sided contemporary gas fire with brick surround, vaulted tongue and groove panelled ceiling, 180 degree view of surrounding countryside, PVC glazed doors which opens onto wrap around decking area.
Hallway 51'9" X 6'7" (15.77m X 2.00m)
Walk in storage cupboard with hot water tank, corniced ceiling, recessed lighting, access to fully floored roofspace via Slingsby ladder.
Integral Double Garage 27'6" X 23'2" (8.38m X 7.06m)
Twin up and over insulated remote controlled doors, fitted units with stainless steel sink unit with mixer taps, plumbed for washing machine, oil fired central heating boiler, beam vacuum system, PVC door to rear, access to utility room
Cloakroom 8'9" X 4'3" (2.67m X 1.30m)
Traditional suite comprising of pedestal wash hand basin and 'Crapper' style WC
Side Hall
Access to integral garage.
Entrance Hall 19'7" X 17'4" (5.97m X 5.28m)
Staircase to first floor with gallery landing, double sided contemporary gas fire with brick surround, vaulted ceiling with velux window.
Entrance Porch 8'9" X 8'8" (2.67m X 2.64m)
Average. Tiled floor, PVC glazed inner door and side panels to entrance hall.
Broadband Speed Availability
Potential Speeds for 41 Whinney Hill
Max Download
10000
Mbps
Max Upload
10000
MbpsThe speeds indicated represent the maximum estimated fixed-line speeds as predicted by Ofcom. Please note that these are estimates, and actual service availability and speeds may differ.
Property Location
Mortgage Calculator
Contact Agent
Contact Simon Brien (Holywood)
Request More Information
Requesting Info about...
41 Whinney Hill, Craigantlet, Holywood, BT18 0HF
By registering your interest, you acknowledge our Privacy Policy
By registering your interest, you acknowledge our Privacy Policy