6 Bed Semi-Detached House
Redholme, 203 Bangor Road
Craigavad, Holywood, BT18 0JG
price
£895,000
Key Features & Description
Description
`Redholme´ is one of Craigavad´s premier period properties with panoramic views across the surrounding mature gardens to Belfast Lough and Antrim Hills. The house is nestled within stunning parkland gardens measuring circa 1 acre, within walking distance of the beautiful North Down coastline walks and Royal Belfast Golf Club.
The property is also within walking distance of Cultra or Seahill railway halts, Holywood town centre is only a short drive away. For the commuter Belfast and Bangor are within 15 minutes´ drive.
The property has been restored in recent years yet retains many of the fine architectural details and features.
The accommodation on the ground floor comprises an impressive reception hall, drawing room with open fire, dining room, living room, kitchen with casual dining area and 2 oven oil fired Aga, and a rear utility/working kitchen. To the side of the property, accessed from the kitchen, there is a conservatory with views and access to the garden and patio areas. There is also a cloakroom with WC, a boiler room and log store.
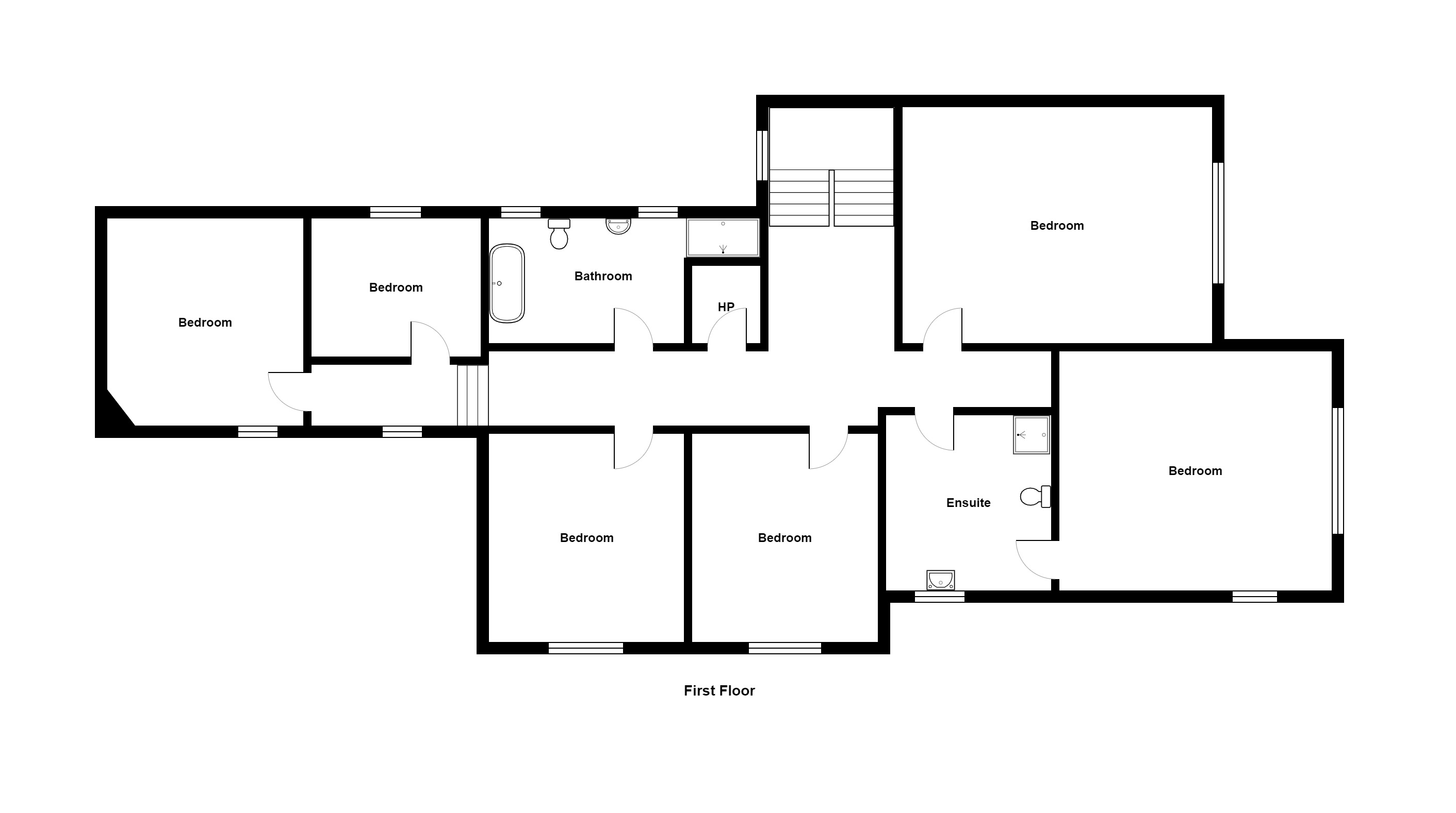
On the first floor there are 6 bedrooms, including master suite that offers dressing room/ensuite shower room and range of fitted furniture with wardrobes and dressing table and additional family bathroom with luxury white suite. Throughout the house the warmth and character are apparent in the spacious accommodation that one would expect from this era with superb views from most rooms throughout the property.
The property further benefits from a detached Coach House offering further accommodation suitable for a number of uses, including home office, gym, au-pair or in-law apartment.
Outside, there are beautiful mature gardens to both the front side and rear. The rear gardens enjoy considerable privacy and benefit from the afternoon and evening sun. The front lawns are shared and they give a prestigious feel as you approach via the sweeping driveway and are surrounded by mature trees.
All in all, a restored period home of exceptional style offering all the comforts and luxuries of modern day living in one of Northern Ireland´s most desirable residential locations.
`Redholme´ is one of Craigavad´s premier period properties with panoramic views across the surrounding mature gardens to Belfast Lough and Antrim Hills. The house is nestled within stunning parkland gardens measuring circa 1 acre, within walking distance of the beautiful North Down coastline walks and Royal Belfast Golf Club.
The property is also within walking distance of Cultra or Seahill railway halts, Holywood town centre is only a short drive away. For the commuter Belfast and Bangor are within 15 minutes´ drive.
The property has been restored in recent years yet retains many of the fine architectural details and features.
The accommodation on the ground floor comprises an impressive reception hall, drawing room with open fire, dining room, living room, kitchen with casual dining area and 2 oven oil fired Aga, and a rear utility/working kitchen. To the side of the property, accessed from the kitchen, there is a conservatory with views and access to the garden and patio areas. There is also a cloakroom with WC, a boiler room and log store.
On the first floor there are 6 bedrooms, including master suite that offers dressing room/ensuite shower room and range of fitted furniture with wardrobes and dressing table and additional family bathroom with luxury white suite. Throughout the house the warmth and character are apparent in the spacious accommodation that one would expect from this era with superb views from most rooms throughout the property.
The property further benefits from a detached Coach House offering further accommodation suitable for a number of uses, including home office, gym, au-pair or in-law apartment.
Outside, there are beautiful mature gardens to both the front side and rear. The rear gardens enjoy considerable privacy and benefit from the afternoon and evening sun. The front lawns are shared and they give a prestigious feel as you approach via the sweeping driveway and are surrounded by mature trees.
All in all, a restored period home of exceptional style offering all the comforts and luxuries of modern day living in one of Northern Ireland´s most desirable residential locations.
Rooms
Living Room 14'3" X 13'1" (4.34m X 4.00m)
Shower Room 10'6" X 3'11" (3.20m X 1.20m)
Fully tiled shower cubicle with thermostatic shower unit, low flush WC, vanity sink unit, stairs to:
First Floor
Office / Bedroom 25'3" X 13'1" (7.70m X 4.00m)
Views across Belfast Lough and surrounding gardens, recessed lighting, range of fitted units with sink unit and mixer taps
Garage/Store Room 10'6" X 9'1" (3.20m X 2.77m)
Roller shutter door. Worcester oil fired boiler, light and power.
Outside
Outside
There are mature gardens to the front of the property laid in rolling lawns, mature trees and shrubs offering a profusion of colour in all seasons.
Sweeping driveway leading to generous parking and turning area to the side of the property.
To the side there is a sheltered patio area with mature screening hedge.
To the rear there is an upper garden area laid in lawns and mature shrubs. This upper garden area also benefits from access to Ballygrainey Road via a private laneway. There may be potential for a building site in this upper rear garden, subject to planning and local authority consent.
Outdoor lighting and water supply
Sweeping driveway leading to generous parking and turning area to the side of the property.
To the side there is a sheltered patio area with mature screening hedge.
To the rear there is an upper garden area laid in lawns and mature shrubs. This upper garden area also benefits from access to Ballygrainey Road via a private laneway. There may be potential for a building site in this upper rear garden, subject to planning and local authority consent.
Outdoor lighting and water supply
Bedroom 6 12'3" X 10'1" (3.73m X 3.07m)
At widest points. Range of fitted furniture including wardrobes with hanging rail and shelving, drawer packs and dressing table, corniced ceiling, access to return attic.
Bedroom 5 10'10" X 8'9" (3.30m X 2.67m)
Corniced ceiling.
Bathroom 12'4" X 8'1" (3.76m X 2.46m)
Luxury white suite comprising: Panelled bath with mixer taps and telephone hand shower, low flush WC, pedestal wash hand basin, walk in shower cubicle with thermostatic shower unit, partially tiled walls, Amtico tiled floor, corniced ceiling, recessed lighting, access to roofspace.
Bedroom 4 13'1" X 12'5" (4.00m X 3.78m)
Corniced ceiling, feature leaded stained glass window.
Bedroom 3 13'1" X 10'5" (4.00m X 3.18m)
Corniced ceiling, range of fitted robes with hanging rail and shelving, feature leaded stained glass window.
Bedroom 2 19'9" X 13'1" (6.02m X 4.00m)
Views across Belfast Lough to the County Antrim shoreline, feature leaded stained glass window, corniced ceiling.
Dressing Room/Ensuite 11'1" X 10'6" (3.38m X 3.20m)
White suite with fully tiled shower cubicle, low flush WC, vanity sink unit with built in storage and further range of fitted furniture including wardrobes with hanging rails and shelving and drawer packs, corniced ceiling, feature leaded stained glass window.
Principal Bedroom 16'11" X 15'2" (5.16m X 4.62m)
Stunning panoramic views across Belfast Lough to the Country Antrim shoreline, corniced ceiling, picture rail, feature leaded stained glass windows, range of fitted robes with hanging rail and shelving. Leading to:
Hotpress
With slatted shelving, lagged copper cylinder, Willis type immersion heater.
Stairs to First Floor
Feature leaded stained glass window, corniced ceiling.
Boiler Room 12'9" X 0'6" (3.89m X 0.150.23)
Light and power, door to rear gardens.
Utility Room 13'11" X 12'7" (4.24m X 3.84m)
Working kitchen with range of built in high and low level units, 4 ring electric hob, integrated electric oven, recess for fridge freezer, plumbed for washing machine, 1.5 drainer sink unit with mixer taps, partially tiled walls, built in shelving, hardwood door to rear gardens, door through to:
Conservatory 13'11" X 11'5" (4.24m X 3.48m)
Double doors opening onto driveway and patio area, ceramic tiled floor.
Kitchen With Casual Dining Area 25'7" X 17'8" (7.80m X 5.38m)
Excellent range of solid wood hand painted high and low level units, plate rack, built in shelving, 1.5 drainer Franke stainless steel sink unit with mixer taps, glazed display cupboard, integrated Bosch dishwasher, recess for American style fridge freezer, granite worktops, partially tiled walls, 2 oven oil fired Aga, wine rack, casual dining space for 8-10 people, Amtico tiled floor, recessed lighting, corniced ceiling, double doors to Conservatory.
Cloakroom / WC 7'8" X 7'7" (2.34m X 2.30m)
Low flush WC, vanity sink unit with built in storage, corniced ceiling, picture rail, ceramic tiled floor.
Living Room 22'1" X 14'10" (6.73m X 4.52m)
Stunning views across Belfast Lough and surrounding gardens, corniced ceiling, picture rail, wired for wall lighting, attractive period fireplace with open fire with gas inset.
Dining Room 16'11" X 11'5" (5.16m X 3.48m)
Feature curved bay with leaded stained glass windows, corniced ceiling, attractive period fireplace with slate hearth and open fire with gas inset.
Drawing Room 24'8" X 14'11" (7.52m X 4.55m)
Views over gardens to Belfast Lough, corniced ceiling, picture rail, attractive period fireplace with slate hearth and open fire with dog grate, feature leaded stained glass windows.
Reception Hall 15'6" X 7'10" (4.72m X 2.40m)
Glazed door and glazed side panels. Feature stained glass fan light. Original ceramic tiled floor, corniced ceiling. Access to generous cloaks space with shelving, coat hooks, tongue and groove panelling.
Entrance Porch 7'4" X 4'8" (2.24m X 1.42m)
Panelled entrance door with glazed side panels and fan light, leaded stained glass window, tiled floor.
Ground Floor
Broadband Speed Availability
Potential Speeds for 203 Bangor Road
Max Download
10000
Mbps
Max Upload
10000
MbpsThe speeds indicated represent the maximum estimated fixed-line speeds as predicted by Ofcom. Please note that these are estimates, and actual service availability and speeds may differ.
Property Location
Mortgage Calculator
Contact Agent
Contact Simon Brien (Holywood)
Request More Information
Requesting Info about...
Redholme, 203 Bangor Road, Craigavad, Holywood, BT18 0JG
By registering your interest, you acknowledge our Privacy Policy
By registering your interest, you acknowledge our Privacy Policy