Commercial
Unit 2 Riverside Shopping Mall Mill Street
Gilford, Craigavon, BT63 6HQ
monthly rental of
£500
- Status For Rent
- Property Type Commercial
- Furnished Unfurnished
Key Features & Description
Ground floor retail unit
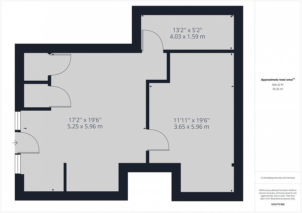
NIA 650 Sq FT
Large area of free parking
Available now
Reception area with storage
Seperate staff kitchen
Separate room with sink
No Vat
Description
DESCRIPTION & LOCATION
The property comprises of ground floor retail unit and extends to approximately 650 Sq ft. The unit has been used previously as a foot clinic and naturally lends itself to continued use as a therapy studio / salon; however the bright, spacious layout of the unit would suit alternative uses. There is an open plan retail area at the front leading onto a large treatment room which also has a sink. There is also a good size kitchen / staff area and 2 storage closets. The unit is finished to a high standard with laminate wooden flooring, recessed spot lights and fitted kitchen units. The unit also benefits from emergency lighting and fire alarm.
There is a large on site car park which all tenants and customers are permitted to use free of charge.
The property occupies a prominent position and is located on Mill Street Gilford, a prime location and main thoroughfare into and out of the Village of Gilford. The corner site is situated at the Banbridge / Tandragee roundabout and can be accessed through the car park off Whinny Hill or via the walkway from Mill Street. The unit benefits from a high level of vehicular and pedestrian footfall and is within close proximity to local bus services.
Neighboring occupiers include Avenue One Face & Body Clinic, The Coffee Cup and Superstars Daycare.
LEASE
Term: Negotiable
Rent: £500 per month (NO VAT)
Repairs & Maintenance: Tenant responsible for internal repair and maintenance, together with payment of a proportionate cost of buildings insurance, cleaning/painting of Mall as required.
RATES
NAV £5,000
Rates payable estimated at £2,818 per annum.
Tenants should contact LPS directly to enquire about discount for small business relief.
ACCOMMODATION
Ground Floor 650 Sq Ft total
includes:
Reception area
Treatment room with sink
Storage
Staff Kitchen
VIEWING ARRANGEMENTS
Viewing by appointment
For further information or to arrange a viewing, please contact Hannath Estate Agents
Tel. 028 38 399911
Email. info@hannath.com
DESCRIPTION & LOCATION
The property comprises of ground floor retail unit and extends to approximately 650 Sq ft. The unit has been used previously as a foot clinic and naturally lends itself to continued use as a therapy studio / salon; however the bright, spacious layout of the unit would suit alternative uses. There is an open plan retail area at the front leading onto a large treatment room which also has a sink. There is also a good size kitchen / staff area and 2 storage closets. The unit is finished to a high standard with laminate wooden flooring, recessed spot lights and fitted kitchen units. The unit also benefits from emergency lighting and fire alarm.
There is a large on site car park which all tenants and customers are permitted to use free of charge.
The property occupies a prominent position and is located on Mill Street Gilford, a prime location and main thoroughfare into and out of the Village of Gilford. The corner site is situated at the Banbridge / Tandragee roundabout and can be accessed through the car park off Whinny Hill or via the walkway from Mill Street. The unit benefits from a high level of vehicular and pedestrian footfall and is within close proximity to local bus services.
Neighboring occupiers include Avenue One Face & Body Clinic, The Coffee Cup and Superstars Daycare.
LEASE
Term: Negotiable
Rent: £500 per month (NO VAT)
Repairs & Maintenance: Tenant responsible for internal repair and maintenance, together with payment of a proportionate cost of buildings insurance, cleaning/painting of Mall as required.
RATES
NAV £5,000
Rates payable estimated at £2,818 per annum.
Tenants should contact LPS directly to enquire about discount for small business relief.
ACCOMMODATION
Ground Floor 650 Sq Ft total
includes:
Reception area
Treatment room with sink
Storage
Staff Kitchen
VIEWING ARRANGEMENTS
Viewing by appointment
For further information or to arrange a viewing, please contact Hannath Estate Agents
Tel. 028 38 399911
Email. info@hannath.com
Virtual Tour
Broadband Speed Availability
Potential Speeds for Unit 2 Riverside Shopping Mall Mill Street
Max Download
1800
Mbps
Max Upload
220
MbpsThe speeds indicated represent the maximum estimated fixed-line speeds as predicted by Ofcom. Please note that these are estimates, and actual service availability and speeds may differ.
Property Location
Contact Agent
Contact Hannath
Request More Information
Requesting Info about...
Unit 2 Riverside Shopping Mall Mill Street, Gilford, Craigavon, BT63 6HQ
By registering your interest, you acknowledge our Privacy Policy
By registering your interest, you acknowledge our Privacy Policy