Contact Agent
Contact Ulster Property Sales (UPS) Forestside
Terrace House
430-432 Woodstock Road
Cregagh, Belfast, BT6 9DR
asking price
£125,000
- Status For Sale
- Property Type Terrace
- Interior Area 1332 sqft
-
Stamp Duty
Higher amount applies when purchasing as buy to let or as an additional property£0 / £6,250*
Key Features & Description
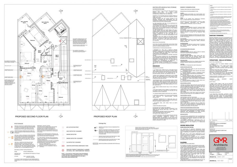
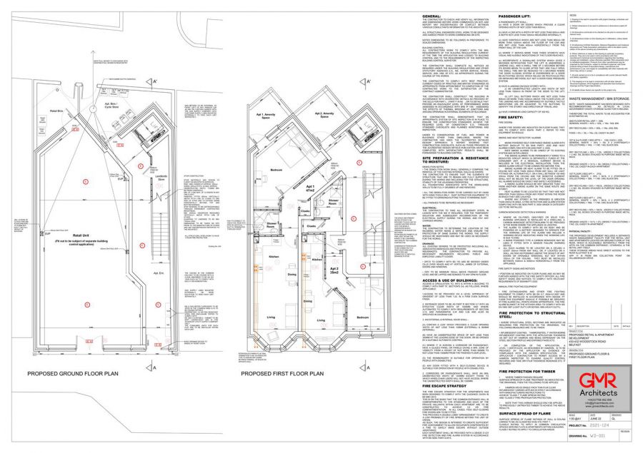
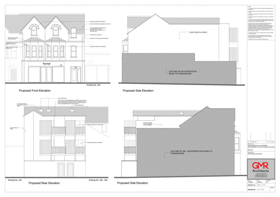
Planning Ref LA04/2021/1701/F
2 x Two Bedroom Apartments
2 x One Bedroom Apartments
1 no Retail Unit
Full Planning Permission Granted
Existing Terrace and Retail Unit
Description
DEVELOPMENT OPPORTUNITY!
Full planning permission is in place for the demolition of 430 & 432 Woodstock Road and the erection of a new 2 storey building to accommodate 1 retail unit, 2 one bedroom apartments and 2 two bedroom apartments with ancillary accommodation, bin store and cycle parking.
A popular location within the Cregagh / Woodstock area with easy access in to the City Centre and surrounded by other retail units and residential homes, making this an excellent opportunity for those wishing to buy to rent or sell.
DEVELOPMENT OPPORTUNITY!
Full planning permission is in place for the demolition of 430 & 432 Woodstock Road and the erection of a new 2 storey building to accommodate 1 retail unit, 2 one bedroom apartments and 2 two bedroom apartments with ancillary accommodation, bin store and cycle parking.
A popular location within the Cregagh / Woodstock area with easy access in to the City Centre and surrounded by other retail units and residential homes, making this an excellent opportunity for those wishing to buy to rent or sell.
Rooms
Property Location
Mortgage Calculator
Contact Agent
Contact Ulster Property Sales (UPS) Forestside
Request More Information
Requesting Info about...
430-432 Woodstock Road, Cregagh, Belfast, BT6 9DR
By registering your interest, you acknowledge our Privacy Policy
By registering your interest, you acknowledge our Privacy Policy