Contact Agent
Contact Templeton Robinson (Lisburn Road)
5 Bed Detached House
9 Church Road
Inch, Crossgar, BT30 9BQ
offers over
£595,000
Key Features & Description
Contemporary Detached Residence Built in 2009 & Designed with an Abundance of Natural Light Throughout
Comfortable Living Room with Open Fire & Dog Grate
Sitting Room & Home Office or Bedroom 6
Open Plan Kitchen, Dining Room & Garden Room with Full Height Glazed Doors to Gardens
5 Bedrooms, Principal Bedroom with Ensuite Shower Room & 2 Further Bathrooms
Oil Fired Central Heating & Hardwood Double Glazed Window Frames
Occupying a Site of approximately 2 Acres with Many Trees to include Oak & Apple Trees, Extensive Area in Lawns Front & Rear with South Facing Patio Sun Terrace
Convenient to Crossgar, Annacloy, Downparick & Only a Short Drive Into Belfast to All the Amenities it has to offer Including Forestside Shopping Complex
Less than a 20 Minute Drive to Strangford Village and all the Eateries and Leisure Facilities it has to offer, Including Bistros, The Cuan, The Lobster Pot and Finnebrogue Woods Close By to Enjoy
Newcastle is Only a 30 Minute Drive Away with Access to Lovely Beaches, The Mourne Mountains and an Array of Cafes, Bars and Restaurants
A Fabulous Family Home Perfectly Complimented by Delightful Surrounding Gardens and a Bus Route Direct to Many Local Schools and Grammar Schools in Belfast
Description
Built in 2009 this most attractive detached residence offers the perfect blend of modern comfort in a peaceful rural setting.
As you step inside you will immediately notice the abundance of natural light that fills every corner of the house. The open concept design of the kitchen and dining room creates a welcoming and airy atmosphere, making this an ideal space for entertaining family and friends. There are five bedrooms, one on the ground floor, an ensuite shower room, attached to the principal bedroom and two further bathrooms.
The gardens extended to around two acres in lawns with a variety of trees including majestic oaks and fruit trees. There are views over surrounding countryside that stretch out towards Finnebrogue.
Built in 2009 this most attractive detached residence offers the perfect blend of modern comfort in a peaceful rural setting.
As you step inside you will immediately notice the abundance of natural light that fills every corner of the house. The open concept design of the kitchen and dining room creates a welcoming and airy atmosphere, making this an ideal space for entertaining family and friends. There are five bedrooms, one on the ground floor, an ensuite shower room, attached to the principal bedroom and two further bathrooms.
The gardens extended to around two acres in lawns with a variety of trees including majestic oaks and fruit trees. There are views over surrounding countryside that stretch out towards Finnebrogue.
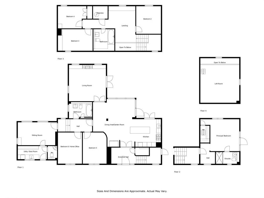
Rooms
COVERED PORCH:
Stone tiles.
Hardwood front door and glazing to . . .
RECEPTION HALL:
Tiled floor, cloaks cupboard. Double doors and glazing to . . .
OPEN PLAN KITCHEN/DINING & GARDEN ROOM: 29' 3" X 20' 8" (8.92m X 6.30m)
(at widest points). Range of high and low level units, marble work surfaces, sink and drainer, Miele five ring gas hob with extractor fan over, pull-down larder cupboard, integrated double ovens, warming drawers, coffee machine, pantry cupboard, American fridge freezer, integrated dishwasher, large island/breakfast bar with units and wooden work surface, mirror splash back, tiled floor, low voltage spotlights, glazed doors to patio. Double doors to . . .
LIVING ROOM: 15' 11" X 15' 7" (4.85m X 4.75m)
Hole in the wall fireplace with dog grate, slate hearth.
INNER HALL:
BATHROOM:
White suite comprising low flush wc, wash hand basin, panelled bath with shower over, part tiled walls, low voltage spotlights, Velux window, extractor fan.
BEDROOM (5): 13' 5" X 10' 4" (4.09m X 3.15m)
(at widest points). Low voltage spotlights.
HOME OFFICE/BEDROOM (6): 12' 10" X 10' 3" (3.91m X 3.12m)
(at widest points). Feature curved wall, low voltage spotlights. Steps to . . .
SITTING ROOM: 16' 0" X 10' 2" (4.88m X 3.10m)
(at widest points). Low voltage spotlights, Velux window, eaves storage.
UTILITY ROOM/BOOT ROOM: 12' 7" X 5' 9" (3.84m X 1.75m)
(at widest points). Units, work surfaces, old Belfast style sink, plumbed for washing machine, space for tumble dryer, cloaks area, ceramic tiled floor, low voltage spotlights, door to front.
CLOAKROOM / WC:
Low flush wc, wash hand basin, tiled floor, low voltage spotlights, extractor fan.
LANDING:
PRINCIPAL BEDROOM: 16' 4" X 13' 9" (4.98m X 4.19m)
(at widest points). Glazed door to side, low voltage spotlights.
DRESSING ROOM:
Built-in wooden dressing table, low voltage spotlights.
ENSUITE SHOWER ROOM:
White suite comprising low flush wc, wash hand basin, wooden shelving, fully tiled shower cubicle, part tiled walls, ceramic tiled floor, extractor fan, low voltage spotlights.
WALK-IN WARDROBE:
Fully fitted with shelves and drawers, access to roofspace with Slingsby ladder to . . .
EXCELLENT STORAGE SPACE: 16' 4" X 13' 4" (4.98m X 4.06m)
Velux window, overlooking garden.
LANDING:
Built-in storage, Velux window, low voltage spotlights, walk-in hotpress.
BEDROOM (2): 11' 5" X 10' 0" (3.48m X 3.05m)
(at widest points). Velux window.
MODERN BATHROOM:
White suite comprising low flush wc, wash hand basin, panelled bath with shower over, part tiled walls, wooden shelving, ceramic tiled floor, heated towel rail, Velux window, low voltage spotlights, extractor fan.
BEDROOM (3): 13' 3" X 9' 3" (4.04m X 2.82m)
(at widest points). Range of built-in wardrobes.
BEDROOM (4): 12' 3" X 9' 3" (3.73m X 2.82m)
(at widest points). Built-in wardrobes and storage, Velux windows.
Gardens extending to 2 acres surrounding the property. Oak trees, apple trees, various specimen trees, extensive lawns with bordered hedging and landscaped beds in bushes. Patio sun terrace to rear, kids play area to rear of garden. Front gardens and extensive parking and turning area for several cars.
Video
Broadband Speed Availability
Potential Speeds for 9 Church Road
Max Download
1000
Mbps
Max Upload
1000
MbpsThe speeds indicated represent the maximum estimated fixed-line speeds as predicted by Ofcom. Please note that these are estimates, and actual service availability and speeds may differ.
Property Location
Mortgage Calculator
Directions
From Belfast take A24 Saintfield Road, at roundabout take 2nd exit for A7 Saintfield Road, after 12 miles turn left onto Crossgar Road then bare right onto The Craig Road then right at Church Road. (If using Sat Nav make sure to input Inch - not Crossgar into directions).
Approx. one hour forty minutes drive to Dublin Airport, 40 minutes to Belfast City Airport and one hour drive to Belfast International Airport.
Approx. one hour forty minutes drive to Dublin Airport, 40 minutes to Belfast City Airport and one hour drive to Belfast International Airport.
Contact Agent
Contact Templeton Robinson (Lisburn Road)
Request More Information
Requesting Info about...
9 Church Road, Inch, Crossgar, BT30 9BQ
By registering your interest, you acknowledge our Privacy Policy
By registering your interest, you acknowledge our Privacy Policy