5 Bed Detached Bungalow
43 Loughview Road
Crumlin, BT29 4RF
offers over
£795,000
Key Features & Description
Commercial Opportunity For Serviced Rental Accommodation
Views Towards And Over Lough Neagh
c.3.0 Acres Of Shore Frontage Land; Rural Aspects
Detached Workshop; Triple Car Port; Large Yard Area
Composite Decking, Resistance Pool & Hot Tub
Double Glazing; Gas Heating; Oil Tank For Aga
Separate One Bedroom Restored Cottage
Modern Fitted Kitchen Open Through To Living Area
Five En Suite Bedrooms; Two+ Reception Rooms
Impressive Detached Family Residence
Description
Stunning detached family residence encompassing spa area, plus separate one bedroom cottage, detached workshop, triple car port and c.3.0 acres of shore frontage land, occupying a prime site nestled on the border of Lough Neagh enjoying quiet, rural surroundings, whilst being located only a short commute from Belfast, surrounding towns, local amenities, and a wide array of excellent schools. The property offers both generous and adaptable family accommodation, and is finished to an exceptional specification throughout.
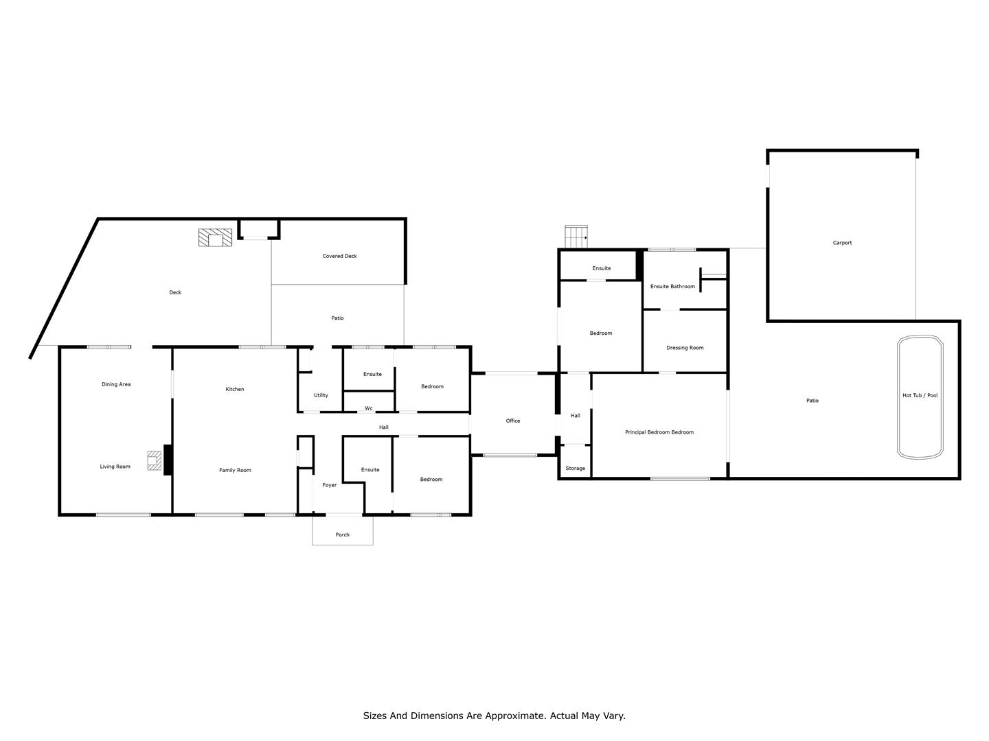
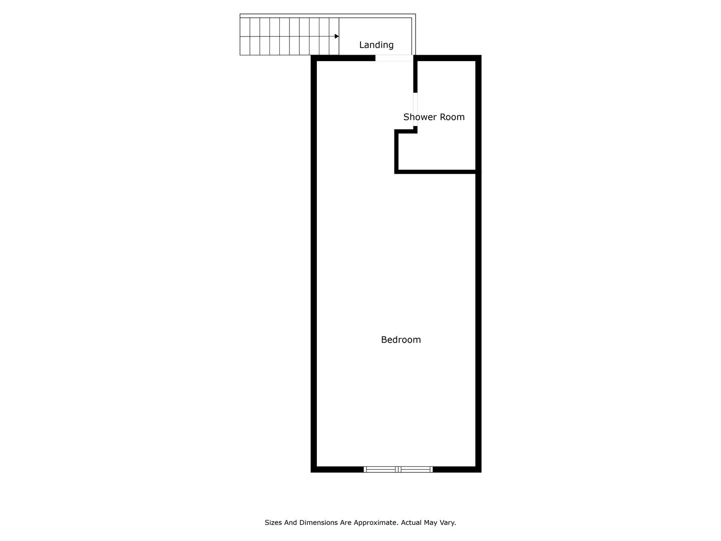
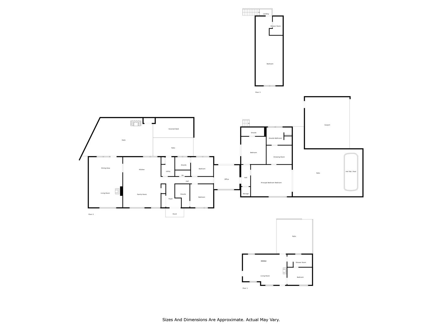
The main family home comprises entrance hall, furnished cloakroom, two separate reception rooms, modern fitted kitchen open through to living area, utility room, and four first floor en suite bedrooms, to include principal with walk in wardrobe/dressing room. Accessed via a linked stairwell, the property offers further accommodation encompassing bedroom/reception and contemporary shower room in `The Loft´.
Situated on the site, a c.400 year old fisherman's cottage, which has been sympathetically restored within recent years, provides an open plan living/kitchen/dining room and bedroom with en suite shower room.
Externally the property benefits from roofed area with composite decking, resistance pool and hot tub, a fully insulated detached workshop currently partitioned into two units, triple car port with tiled roof and belfry clock tower, large yard area finished in concrete, and c.3 acres of separate land located on the opposite side of Loughview Road, bordering the banks of Lough Neagh, finished mainly in grass and mature trees.
Other attributes include double glazing, gas fired central heating system with oil tank for Aga, and potential to utilise the property and its ancillary accommodation for serviced rental accommodation.
Seldom do we come across properties of this ilk; early viewing is therefore highly recommended.
Stunning detached family residence encompassing spa area, plus separate one bedroom cottage, detached workshop, triple car port and c.3.0 acres of shore frontage land, occupying a prime site nestled on the border of Lough Neagh enjoying quiet, rural surroundings, whilst being located only a short commute from Belfast, surrounding towns, local amenities, and a wide array of excellent schools. The property offers both generous and adaptable family accommodation, and is finished to an exceptional specification throughout.
The main family home comprises entrance hall, furnished cloakroom, two separate reception rooms, modern fitted kitchen open through to living area, utility room, and four first floor en suite bedrooms, to include principal with walk in wardrobe/dressing room. Accessed via a linked stairwell, the property offers further accommodation encompassing bedroom/reception and contemporary shower room in `The Loft´.
Situated on the site, a c.400 year old fisherman's cottage, which has been sympathetically restored within recent years, provides an open plan living/kitchen/dining room and bedroom with en suite shower room.
Externally the property benefits from roofed area with composite decking, resistance pool and hot tub, a fully insulated detached workshop currently partitioned into two units, triple car port with tiled roof and belfry clock tower, large yard area finished in concrete, and c.3 acres of separate land located on the opposite side of Loughview Road, bordering the banks of Lough Neagh, finished mainly in grass and mature trees.
Other attributes include double glazing, gas fired central heating system with oil tank for Aga, and potential to utilise the property and its ancillary accommodation for serviced rental accommodation.
Seldom do we come across properties of this ilk; early viewing is therefore highly recommended.
Rooms
EN SUITE SHOWER ROOM
With 'Jack and Jill' access to main living area. White, three piece suite comprising oversized shower enclosure, pedestal wash hand basin and WC. Thermostat controlled mains shower unit with drench shower head. Part tiling to walls. Slate tile floor. Access to service area with gas fired central heating boiler and plumbed for washing machine.
DETACHED WORKSHOP 45'11" X 26'2" (appro (14.00m X 8.00m (appro)
Currently partitioned into two units, with a roller shutter door between.
Fully insulated.
Roller shutter door.
Separate service door.
Power, light and tiled floor.
Fully insulated.
Roller shutter door.
Separate service door.
Power, light and tiled floor.
TRIPLE CAR PORT
With tiled roof and belfry clock tower.
LARGE YARD AREA
Finished in concrete and stone.
c.3 ACRES OF SHORE FRONTAGE LAND
Separate lands located on the opposite side of Loughview Road, directly in front of the main home.
Finished mainly in grass and mature trees.
Finished mainly in grass and mature trees.
IMPORTANT NOTE TO ALL POTENTIAL PURCHASERS
Please note that we have not tested the services or systems in this property. Purchasers should make/commission their own inspections if they feel it is necessary.
BEDROOM 12'2" X 8'11" (3.71m X 2.72m)
Exposed stone feature wall. Slate tile floor. View towards Lough Neagh. Fitted wardrobe unit. Mirror panelled, sliding door leading to:
OPEN PLAN LIVING / DINING / KITCHEN AREA 22'3" X 15'3" (6.80m X 4.65m)
Stable style, PVC double glazed front door, with matching door to gable. Separate PVC double glazed door to front elevation. Vaulted ceiling. Range of fitted and freestanding kitchen storage units, with slate work surface area. Ceramic sink. Slate splashback to sink. Slate tile to floor. Reclaimed brick inglenook style fireplace and chimney, with cast iron, wood burning stove. Exposed stone feature wall. View towards Lough Neagh.
'FISHERMAN'S COTTAGE'
c.400 year old fisherman's cottage, which has been sympathetically restored within recent years.
DELUXE EN SUITE SHOWER ROOM
Contemporary, white, three piece suite comprising panelled shower enclosure, floating vanity unit and WC. Thermostat controlled mains shower unit. Splashback tiling to sink. Towel radiator. Wood laminate floor covering.
'THE LOFT' 34'6" X 13'8" (wps) (10.53m X 4.19m (wps))
External stairwell and PVC double glazed front door . Wood laminate floor covering. Gas fired central heating boiler. PVC double glazed French doors with view towards Lough Neagh.
SPA AREA
Artificial grass.
Roofed area with composite decking, resistance pool and hot tub.
Outdoor shower.
Roofed area with composite decking, resistance pool and hot tub.
Outdoor shower.
EXTERNAL
Electric operated gate leading to, generous sized, private driveway area.
Front garden finished in lawn.
Range of external lighting (timed system, with photocell override).
Fully enclosed, low maintenance, rear garden, finished in artificial grass, paved patio areas.
Partially enclosed bar and seating area.
Partially enclosed BBQ area.
External power points.
External lighting.
PVC soffits, fascia and rainwater goods.
Outside tap.
Front garden finished in lawn.
Range of external lighting (timed system, with photocell override).
Fully enclosed, low maintenance, rear garden, finished in artificial grass, paved patio areas.
Partially enclosed bar and seating area.
Partially enclosed BBQ area.
External power points.
External lighting.
PVC soffits, fascia and rainwater goods.
Outside tap.
DELUXE EN SUITE SHOWER ROOM
Contemporary, white, three piece suite comprising fully tiled shower enclosure, pedestal wash hand basin and WC. Thermostat controlled mains shower unit with drench shower head. Stone splashback to sink. Chrome towel radiator. Natural stone tiled floor.
BEDROOM 4 11'1" X 9'10" (3.39m X 3.02m)
Natural stone tiled floor.
DELUXE EN SUITE SHOWER ROOM
Contemporary, white, three piece suite comprising fully tiled shower enclosure, pedestal wash hand basin and WC. Thermostat controlled shower unit. Stone splashback to sink. Chrome towel radiator. Natural stone tiled floor.
BEDROOM 3 11'8" X 11'6" (3.56m X 3.52m)
View towards Lough Neagh. Natural stone tiled floor.
STUDY 13'1" X 12'5" (4.01m X 3.79m)
Dual aspect feature windows. View towards Lough Neagh. PVC double glazed, sliding patio door to rear garden. Natural stone tiled floor. Glass panelled door leading to hallway.
REAR HALL
Tiled floor. Access to store. Glass panelled door leading to:
DELUXE EN SUITE SHOWER ROOM
Contemporary, white, three piece suite comprising fully tiled shower enclosure, floating vanity unit and concealed cistern WC. Thermostat controlled main shower unit. Splashback tiling to sink. Chrome towel radiator. Tiled floor.
BEDROOM 2 14'3" X 11'11" (4.35m X 3.64m)
PVC double glazed, sliding, patio door to rear garden. Tiled floor.
DELUXE EN SUITE BATHROOM
Contemporary, four piece suite comprising freestanding bath, separate, fully tiled shower cubicle, floating vanity unit and concealed cistern WC. Thermostat controlled mains shower unit with drench shower head. Part tiling to walls. Tiled floor.
DRESSING ROOM / WALK IN WARDROBE 11'10" X 9'8" (3.61m X 2.97m)
Range of fitted wardrobes and storage. Tiled floor.
PRINCIPAL BEDROOM 20'6" X 15'3" (6.25m X 4.65m)
Tiled floor. Dual aspect feature windows. Aluminium, sliding, double glazed patio door to pool area. Part panelling to walls. Fitted storage and bookcase. Concealed access, leading to:
UTILITY ROOM 9'10" X 6'6" (3.02m X 2.00m)
Fitted low level storage units, with contrasting slate work surface. Stainless steel sink unit with draining bay. Plumbed and space for washing machine. Space for tumble dryer. Fitted storage unit in sliding doors. Gas fired central heating boiler. Splashback tiling to sink. Natural stone tiled floor. Composite, triple glazed door to rear garden.
KITCHEN THROUGH LIVING ROOM 25'11" X 19'0" (7.91m X 5.80m)
Feature windows to front elevation, enjoying views of Lough Neagh. Modern fitted kitchen, with range of high and low level storage units with contrasting, quartz topped work surface area. Inlaid, stainless steel sink unit. Oil fired AGA cooker. Integrated dishwasher and microwave, Space for American style fridge freezer. Quartz topped splashback to walls. Stainless steel splashback to AGA. Natural stone tiled floor. Cast iron, wood burning stove to living area.
LOUNGE THROUGH DINING ROOM 25'2" X 16'6" (7.69m X 5.03m)
Feature window to front elevation, enjoying views towards Lough Neagh. Cast iron, wood burning stove on slate hearth, with stone clad chimney. Natural stone tiled floor. Aluminium framed, concertina doors to rear garden.
FURNISHED CLOAKROOM
Contemporary, white, two piece suite comprising semi pedestal wash hand basin and WC. Splashback tiling to sink. Natural stone tiled floor.
ENTRANCE HALL
Composite, double glazed front door with PVC double glazed side screen. Natural stone tiled floor. Fitted storage unit with glass panelled sliding doors. Access to roof space.
ACCOMMODATION
Property Location
Mortgage Calculator
Contact Agent
Contact Colin Graham Residential
Request More Information
Requesting Info about...
43 Loughview Road, Crumlin, BT29 4RF
By registering your interest, you acknowledge our Privacy Policy
By registering your interest, you acknowledge our Privacy Policy