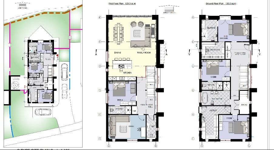
4 Bed Detached House

Site 2 Merchants View

Derry / Londonderry, BT47 6JG

price £750,000
  • Status For Sale
  • Property Type Detached
  • Bedrooms 4
  • Receptions 2
  • Rates
    Rate information is for guidance only and may change as sources are updated.
    N/A
  • Heating Gas
  • Stamp Duty
    Higher amount applies when purchasing as buy to let or as an additional property
    £27,500 / £65,000*
  • Typical Mortgage
    Click price to use our mortgage calculator

Property Financials

  • Price £750,000
  • Rates N/A

Description

Show Home Open Viewing

By appointment only

Luxury Riverside Living – Four Exclusive Detached Homes Overlooking the River Foyle

Built by the renowned McGinnis Group, these four exceptional detached homes redefine modern luxury, offering breathtaking views over the River Foyle and the striking new bridge. Designed with architectural flair, each home boasts bright, spacious interiors where natural light floods through expansive glazing, accentuating the double-height kitchen, dining, and living areas—the true heart of the home.

Every detail has been meticulously considered, from the designer kitchens with premium appliances to the quality tiling and luxury sanitaryware that exude sophistication. These homes blend cutting-edge design with practical elegance, ensuring both comfort and style.

With the added peace of mind of a 10-year NHBC warranty, these outstanding residences present a rare opportunity to own a highly specified, contemporary home in an enviable riverside setting.

Experience the pinnacle of modern living—where luxury meets location.

 

Boat House Specification

Kitchen 

Handless, soft closing doors in a choice of colours   

Boiling Water tap with Flex  

Quality premium stone worktop and splash back  

Franke Sink or equivalent 

Pull out bins 

Wine Cooler 30cm undercounter 

Neff Appliances 

Extractor Hood 

Integrated dishwasher 

Induction hob/ 5 ring gas burner 

Integrated full height fridge  

 

Utility  

Handless soft closing doors 

Bench Seating area with open box shelving 

Raised level washing machine and tumble dryer with laundry drawers underneath 

Stainless steel sink and high neck tap 

Full height freezer 

 

Downstairs Hallway  

Fitted storage and desk at entrance 

Storeroom with double doors under stairs 

 

 

Stairs  

Solid hardwood stairs with glass balustrading 

Master Bathroom  

Contemporary white sanitaryware  

Double vanity unit 

Quality mirror with light  

Shaving point 

Wall mounted toilet 

Towel Rail Radiators 

Tiled skirting board 

 

Master dressing room  

Fitted cupboards, hanging rail, shelving and dressing table 

Luxurious Carpet 

 

Bedrooms 2, 3 &4  

Fitted wardrobe 

 

Family Bathroom 

Freestanding bath with freestanding tap  

Modern single vanity unit 

Half height tiling to behind bath and full height behind vanity unit 

Half height tiling to remaining walls is extra 

Tiled skirting board 

 

Flooring 

A choice of Engineered wood in herringbone pattern to hallways, kitchen, dining and living areas 

High quality tiling to bathrooms and utility room 

A range of luxurious carpets to bedrooms and snug 

 

Additional Information: 

Triple Glazing with a U Value – Average 1.1 W/m2K 

Gas central heating 

Heat recovery ventilation system  

Outside water tap  

Fencing Close boarded boundary fencing to side and rear 

Estate railing to separate driveways 

Bitmac driveway 

P.V. Panels  

EV Car Charger  

Property Location

Show Map

Mortgage Calculator

Disclaimer: The following calculations act as a guide only, and are based on a typical repayment mortgage model. Financial decisions should not be made based on these calculations and accuracy is not guaranteed. Always seek professional advice before making any financial decisions.

Request More Information
Requesting Info about...
Site 2 Merchants View, Derry / Londonderry, BT47 6JG Site 2 Merchants View, Derry / Londonderry, BT47 6JG

By registering your interest, you acknowledge our Privacy Policy