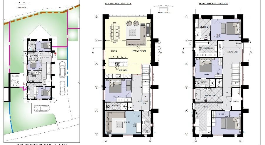
4 Bed Detached House

Site 4 Merchants View

Derry / Londonderry, BT47 6JG

price £750,000
  • Status For Sale
  • Property Type Detached
  • Bedrooms 4
  • Receptions 2
  • Rates
    Rate information is for guidance only and may change as sources are updated.
    N/A
  • Heating Gas
  • Stamp Duty
    Higher amount applies when purchasing as buy to let or as an additional property
    £27,500 / £65,000*
  • Typical Mortgage
    Click price to use our mortgage calculator

Property Financials

  • Price £750,000
  • Rates N/A

Description


Show Home Open Viewing



By appointment only



Luxury Riverside Living – Four Exclusive Detached Homes Overlooking the River Foyle



Built by the renowned McGinnis Group, these four exceptional detached homes redefine modern luxury, offering breathtaking views over the River Foyle and the striking new bridge. Designed with architectural flair, each home boasts bright, spacious interiors where natural light floods through expansive glazing, accentuating the double-height kitchen, dining, and living areas—the true heart of the home.



Every detail has been meticulously considered, from the designer kitchens with premium appliances to the quality tiling and luxury sanitaryware that exude sophistication. These homes blend cutting-edge design with practical elegance, ensuring both comfort and style.



With the added peace of mind of a 10-year NHBC warranty, these outstanding residences present a rare opportunity to own a highly specified, contemporary home in an enviable riverside setting.



Experience the pinnacle of modern living—where luxury meets location.



 



Boat House Specification



Kitchen 



Handless, soft closing doors in a choice of colours   



Boiling Water tap with Flex  



Quality premium stone worktop and splash back  



Franke Sink or equivalent 



Pull out bins 



Wine Cooler 30cm undercounter 



Neff Appliances 



Extractor Hood 



Integrated dishwasher 



Induction hob/ 5 ring gas burner 



Integrated full height fridge  



 



Utility  



Handless soft closing doors 



Bench Seating area with open box shelving 



Raised level washing machine and tumble dryer with laundry drawers underneath 



Stainless steel sink and high neck tap 



Full height freezer 



 



Downstairs Hallway  



Fitted storage and desk at entrance 



Storeroom with double doors under stairs 



 



 



Stairs  



Solid hardwood stairs with glass balustrading 



Master Bathroom  



Contemporary white sanitaryware  



Double vanity unit 



Quality mirror with light  



Shaving point 



Wall mounted toilet 



Towel Rail Radiators 



Tiled skirting board 



 



Master dressing room  



Fitted cupboards, hanging rail, shelving and dressing table 



Luxurious Carpet 



 



Bedrooms 2, 3 &4  



Fitted wardrobe 



 



Family Bathroom 



Freestanding bath with freestanding tap  



Modern single vanity unit 



Half height tiling to behind bath and full height behind vanity unit 



Half height tiling to remaining walls is extra 



Tiled skirting board 



 



Flooring 



A choice of Engineered wood in herringbone pattern to hallways, kitchen, dining and living areas 



High quality tiling to bathrooms and utility room 



A range of luxurious carpets to bedrooms and snug 



 



Additional Information: 



Triple Glazing with a U Value – Average 1.1 W/m2K 



Gas central heating 



Heat recovery ventilation system  



Outside water tap  



Fencing Close boarded boundary fencing to side and rear 



Estate railing to separate driveways 



Bitmac driveway 



P.V. Panels  



EV Car Charger  


Property Location

Show Map

Mortgage Calculator

Disclaimer: The following calculations act as a guide only, and are based on a typical repayment mortgage model. Financial decisions should not be made based on these calculations and accuracy is not guaranteed. Always seek professional advice before making any financial decisions.

Request More Information
Requesting Info about...
Site 4 Merchants View, Derry / Londonderry, BT47 6JG Site 4 Merchants View, Derry / Londonderry, BT47 6JG

By registering your interest, you acknowledge our Privacy Policy