Site
116 Church Hill Road
Derrygonnelly, BT93 6BP
offers around
£39,950
- Status For Sale
- Property Type Site
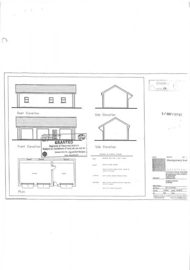
Key Features & Description
Stunning views of Bunnahone Lough and Countryside
C. 0.84 acre
C. 2,050 sq ft proposed bungalow
3 Bedroom/3 Reception room
Detached Garage
Description
Attractive Building Site for Detached 3 Bedroom Bungalow With Garage
Attractive Building Site for Detached 3 Bedroom Bungalow With Garage
Sold with new Certificate of Lawfulness of Proposed Use or Development.
LA10/2021/1329/LDP. Granted 9th December 2021.
Property Location
Mortgage Calculator
Contact Agent
Contact Eadie McFarland & Co
Request More Information
Requesting Info about...
116 Church Hill Road, Derrygonnelly, BT93 6BP
By registering your interest, you acknowledge our Privacy Policy
By registering your interest, you acknowledge our Privacy Policy